顺义楼市内卷出名。红海顺义,可以用惨烈两个字形容。2023年,顺义卖了全北京第二多的新房,6615套。今年上半年,顺义已经卖出去4块地了,区域库存压力进一步加大。
顺义的新房项目,是出了名的卷品质,满配装标、高得房率已经不是什么新鲜事儿,今年开始很多项目也在价格上给出十足的诚意。
想在顺义市场出彩,初始难度值极高,挑战极大。但是从2023年5月19日开盘至今,北京城建·星誉BEIJING连续霸榜区域销冠,创造了属于北京楼市的新纪录。今年9月22日,恰逢星誉BEIJING地块拿地2周年,从当初底价拿地,到如今的市场霸主,星誉BEIJING逆袭成功的经验值得复盘。

1、“提前半步”的布局能力
销冠楼盘的诞生,没有天时地利的神助攻,只有稍显残酷的现实开场。在那个“一地出,抢破头”,开发商靠摇号拿地的疯狂时代,星誉BEIJING这块地最后被土地一级开发北京城建底价拿地。面对艰难开局,星誉BEIJING开发商城建兴顺公司凭借”提前半步”的战略布局和城市运营能力,成功逆袭翻盘,赢得市场。
深耕板块,才能读懂地块和客群,才能出爆款产品。担负城市更新面貌使命的“国匠”城建兴顺,注重城市的可持续发展和包容性增长的诉求,在政府的支持下,深耕顺义十年,投资超400亿元,为城市更新增添色彩。不完全统计,近年来城建兴顺公司工程建设开复工总规模超230万平方米、其中建设保障性住房总面积超190万平方米,已为北京市多个区县超一万户保障房轮候家庭和顺义区城市更新受益百姓圆了安居梦。从棚户区改造、到土地一级开发、产业项目、商业项目等等这些贴近民生的工程开始,然后再来面对住房市场,城建兴顺公司构建起了独特的城市运营模式。
与其他开发商只注重地段不同,城建兴顺公司首先是造场、再造景、再造城,从而创造出更高的区域价值。将对一个区域的深耕做到极致,很多变化自然随之而来。所以,城建兴顺公司拿地很精准,总是比板块价值爆发要早一步,频出爆款,最终实现产品价值和区域价值的双重提升。

2、延迟开盘,尊重客户的操盘哲学
在竞争激烈的北京楼市,很多房企为了抢客户,都尽量将开盘时间前置。在快节奏状态下,北京房企拿地到开盘周期普遍在三到六个月,有的项目更快,甚至不到三个月。这一切都是为了快速让项目变现,但同时也为质量问题埋下了隐患。
明明可以早点入市抢占市场,星誉BEIJING却选择给自己加难度。项目于2022年9月拿地,按照常规操盘逻辑,2023年小阳春入市无疑是一个较好的市场机会。然而,项目团队拒绝了这一市场诱惑。而是耐心等待2个月后,在拿地时隔长达8个月之后,于2023年5月开盘。
在这一漫长的周期中,在主张快周转的地产同行无法理解的情况下,星誉BEIJING团队付出了巨大的努力,1548份细致入微的客户调研问卷,只为洞察客户真实需求,确保产品精益求精,让每位购房者感到“被照顾到”。
在时间雕琢下,星誉BEIJING比任何人都更懂顺义,更懂选择这里的年轻人,这是一种很稀缺的操盘品质。
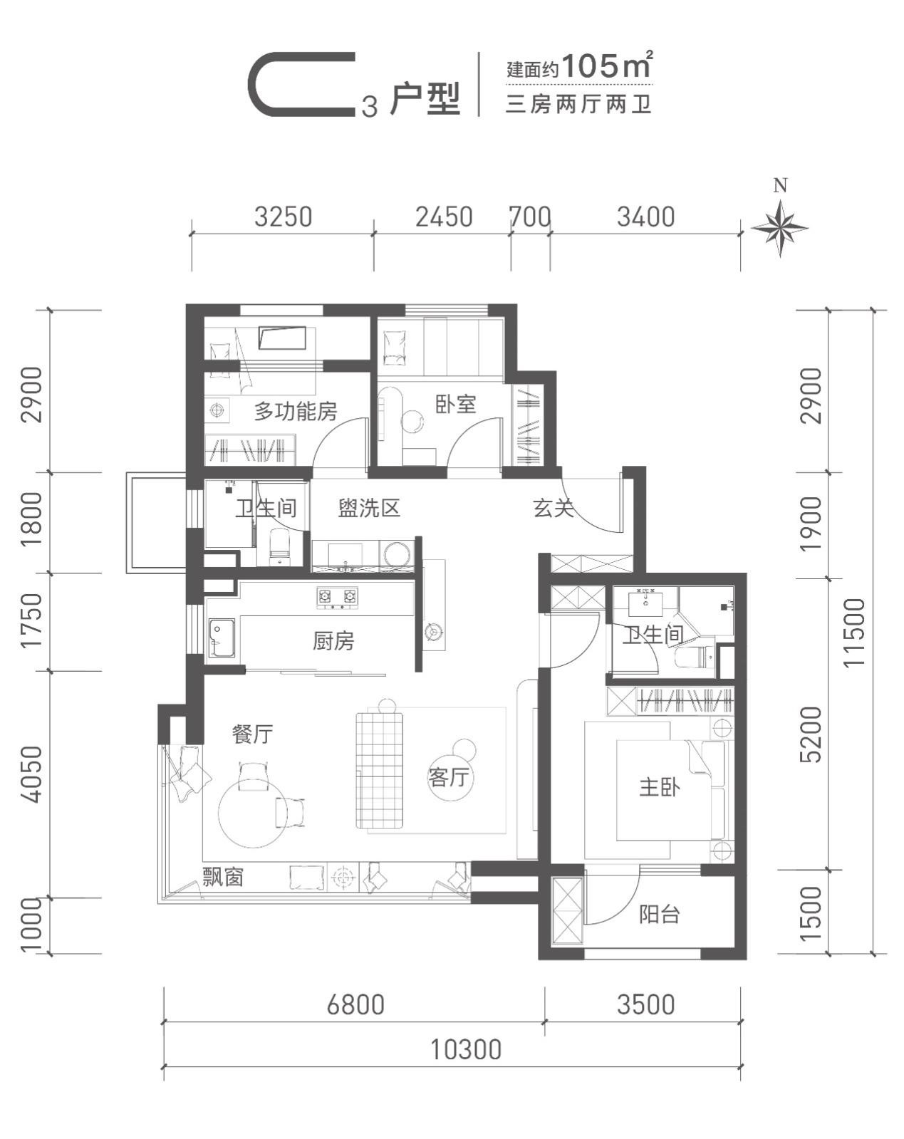
未来交付生活在这里热烈预演。项目特意在售楼处顶上搞了一个大露台,只是为了让买房人能看到自己的家一点点生长起来。赠送部分全部做到室内、提升装标,升级电视背景墙的岩板、卧室的门、主卧背景墙的饰板,让材质的纹理和空间融合度更高。还加送了洗碗机,最大限度的增加了客户入住后的便利性。满格真诚升级之作,105平三居精装样板间的焕新包装,顺义首发270°转角飘窗,再次引领产品创新。所有的匠心归根到底就是充分尊重客户需求。

除了强大的产品创新,新青年特别关注的“职住平衡“也被贴心照顾。星誉BEIJING毗邻炙手可热的新能源产业集群,理想汽车就落户项目周边。同时,项目还坐拥优渥的自然生态资源,周边有仁和公园,3公里内即可到达潮白河沿线,堪称天然的公园地产。商业配套方面,出门即是2.4万平方米的商业综合体“上品+”,1公里范围内有鑫海运通大卖场及规划中的8万平方米大型商业综合体,生活便利性一应俱全。

交通方面,星誉BEIJING未来将享有地铁R4线的便捷通达优势,也是目前顺义在售项目中,唯一享受到地铁R4线红利的项目。这条线路将彻底改善临河板块的交通条件,解决朝阳北项目的“最后一公里”难题。地铁R4线通车后,业主可在1小时内抵达望京、酒仙桥和中关村等产业核心区。目前,R4线已通过二次环评,预计2025年动工,2029年通车。

3、817套真实网签数字
从2023年6月转签以来,星誉BEIJING已经网签817套,在15个月里,累计网签率超过76%月均流速高达近60套。8月网签38套,再次位居顺义普宅成交榜榜首。星誉BEIJING更是创造了北京楼市历史,成为了北京市有网签数据统计以来,顺义区唯一一个蝉联5个季度区域签约销冠的项目!顺销期的星誉BEIJING,一次又一次超过了区域内新开盘集中网签的项目。
回款率才是操盘的最硬核指标。截止目前,星誉BEIJING签约额累计已经达到27.26亿,回款额25.08亿,回款率已经高达94.6%,远超区域竞品。
一个细节是,在新房市场普遍以价换量的情况下,星誉BEIJING不仅创造了去化率奇迹,还惊人的实现了溢价,走出了独立行情。今年星誉BEIJING的成交均价,比去年上涨了约1%,单价不降反涨。
星誉BEIJING不仅去化速度领跑、网签价格还逆势上涨,更是在渠道至上的今天,星誉BEIJING成交客户中,渠道占比仅为34%,这个成绩相当难得。
在顺义的一众板块中,仁和内卷尤为严重,而作为扛鼎者的星誉BEIJING,让市场见证了北京城建在顺义楼市统治量级的存在。

现如今,星誉BEIJING已进入清盘倒计时,错过最后的上车机会,未来或将遗憾难补。
需要提醒的是,星誉BEIJING为庆祝即将进入清盘阶段,狂宠新青年,星誉品牌节盛大启幕,五重新星福利只宠BEIJING星青年。
福利一“购房福利上新”:9月22日-12月31日推出100套特惠房源,购特惠房砸金蛋赢品牌家电豪礼;
福利二“东区车位仓储上新”:9月22日下午3:18东区车位仓储盛大开盘,为星级生活扩容;
福利三“品鉴上新”:媒体工地开放日品鉴星级生活;
福利四“展示上新”:首个6.8m宽厅映照美好生活向往, C3样板间全新亮相;
福利五“感谢上新”:业主工地开放+业主答谢,感恩BEIJING星青年。

展望未来,城建兴顺公司将继续深耕顺义,持续拓展新的项目版图,带来更多高品质作品。
评论