对上海这座超大城市来说,城和乡是这座城市的两个“空间端点”。作为上海市的重要组成部分,宝山从早期的农民新村探索,到如今对乡村振兴示范村的全力打造,始终为“三农”发展注入源源不断的活力,积极探寻大上海乡村空间的新样本。在宝山的城市发展脉络里,乡村空间的演变与重塑同样书写着精彩的篇章。


1958年:社会主义现代化农村探索的起点
1958年,宝山区率先开启了农民新村的探索之路。彼时,为了改善农民的居住条件,让广大农民能够享受到集体生活带来的便利与发展机遇,宝山南部先锋人民公社一批规划有序的农民新村应运而生。这些新村打破了传统农村零散居住的格局,将农民们集中安置在相对规整的居住区域,配套建设了一些基本的公共设施,如简易的供销社、医疗站等。这不仅让农民们的生活更加便捷,也在一定程度上促进了农村生产生活方式的转变,为后来的乡村发展奠定了初步基础。

先锋人民公社农业耕作工区与道路配套图


先锋人民公社农民新村(12个居住点)规划图、先锋人民公社农民新村居民点图

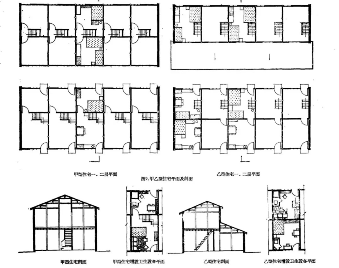
先锋人民公社农民新村房型图
1978年:在改革春风里不断壮大
改革开放之后,罗店镇拟订并实施“农业十年规划”,实行“公里方格”方案,重新规划安排河、路、宅,每250公尺筑一条大明沟,每125公尺开一条机耕路,把公社境内不在规划内的道路、河流、村宅,全部平整入大田。公社从北到南有平行干道5条,有平行河流10条,从东到西有平行干道5条,河流2条,完成了田园格子化的壮举。


罗店义品村委示意图、罗店王家楼村委示意图


罗店毛家弄村委示意图、罗店毛天平村委示意图


罗店四方村委示意图、罗店东南弄村委示意图


罗店光明村委示意图、罗店民众村委示意图


罗店束里桥村委示意图、罗店罗溪村委示意图


罗店和平村委示意图、罗店金星村委示意图

罗店解放村委示意图
原259个自然宅农民,4000多户村民响应国家号召,将原有宅基地从“分散”归并为“集中”,全部拆迁入38个农民新村内。农民新村内有电灯、电话、自来水,有商店及绿化等设施,人均居住面积达25平方米。建设连排农民新村,节约土地40多公顷,为当时土地集约使用做出了突出贡献。1983年6月,上海宝山县罗店公社38个农民新村都装上了公用电话,成为上海郊区农村最先实现村村通电话的公社。

上海郊区农村最先实现村村通电话的公社
21世纪初:“三集中”助推乡村城镇化
21世纪,宝山区以加快转变农村发展方式、推进城乡一体化为主线,聚焦加快农村城镇化进程,保障农民合法权益和集约节约使用土地,展开了“三集中”的探索实践。所谓“三集中”,即工业向园区集中、农业向规模经营集中、农民向城镇集中。这一举措是顺应时代发展需求的大胆尝试。通过引导工业集聚发展,提高了产业的规模效益和竞争力;推动农业规模化经营,提升了农业生产效率和现代化水平;而农民向城镇集中,则进一步改善了农民的居住环境和生活质量,让他们能够享受到更优质的教育、医疗等公共服务资源。2002年,首批7个城镇住宅建设试点之一,上海第一个农民中心村——杨北中心村首期工程建成。新村建筑设计吸收江南传统民居精华,尊重市郊农民喜好等,表现出了海派民居新风格。此后,顾村镇刘行正义村又参与了全市郊区宅基地置换试点项目,取得了宅基地置换的宝贵经验。“三集中”的探索为宝山区的乡村空间优化和经济社会发展带来了新的契机,使得乡村在城镇化的浪潮中实现了有序转型。

杨北中心村村容村貌鸟瞰

生态宜居、乡风文明

提标改造重塑品质,描绘乡村新画卷
未来已来:走向全域乡村振兴的新实践
党的十八大以来,乡村振兴的伟大战略如春风般吹遍祖国大地,宝山区积极响应号召,开启了乡村发展的新篇章。“两镇八村”“五村联动”等一系列举措蓬勃开展,尤其是顾村外环沿线乡村示范项目,成为了宝山乡村振兴的亮点工程。积极开展并推进“沪派江南”特色村居建设工作,持续深化并完善试点实施方案,强化沪派江南水乡特色风貌营造。宝山月浦镇月狮单元以传统养生十二时辰及时令习俗为灵感,对应一年十二个月设计了“月罗十二景”,打造“一月一景致,一景一主题”的民俗活动体验系列。

“两镇八村”“五村联动”全域乡村振兴新篇章

沪派江南营造 宝山区月罗月狮风貌单元愿景图

隐市田园 十二月行纪踏歌






沪派江南 月狮印象
在乡村空间打造方面,“乡村十五分钟社区生活圈”的理念已经得到深入贯彻。以村民的居住点为核心,在慢行十五分钟左右的范围内,规划布局完善的公共服务设施,提供便捷政务服务的党群服务中心,保障村民健康的卫生服务站,为老年人提供贴心关怀的养老服务设施,还有满足日常购物需求的便民超市以及供村民休闲娱乐的公园绿地等。村民们无需奔波劳累,在家门口就能轻松满足日常生活的各种需求,真正实现了生活品质的提升。
在这个过程中,一个崭新的推动机制——“三师联创”,即规划师、建筑师和景观师正在逐步发挥作用。来自多个领域的专业能手带着对乡村的热爱与专业的素养,深入到宝山区的各个乡村角落。他们与村民们促膝长谈,深入了解村民们的生活习惯、需求期望以及当地的风土人情、历史文化。结合乡村的自然地理条件、现有产业基础等实际情况,“三师联创”从村落的整体布局到每一处公共空间的设计,从产业发展的路径规划到生态环境保护的具体措施,熟练运用专业的规划知识,深挖“文化+”激活乡村产业新动能,集中力量推动重点产业项目、重大平台落地,打造具有集成度、显示度的功能空间,精心绘制出一幅幅贴合乡村发展的蓝图。

“沪派江南·乡土行纪”走进宝山区月浦镇月狮村

“三师联创”团队冒雨现场踏勘

从1958年的农民新村探索到如今的全域乡村振兴示范建设,宝山用六十多年的不懈努力,在大上海的乡村空间发展上走出了一条独具特色的道路,为乡村振兴提供了宝贵的实践样本。未来,宝山将继续秉持创新发展的理念,不断完善和优化乡村空间,让乡村成为上海这座繁华都市中一片充满生机与活力的净土,让更多的农民在乡村振兴的浪潮中共享发展成果,过上更加美好的生活。
来源:上海宝山官方微信


评论