在上海南北转型战略纵深推进、吴淞创新城强势崛起的时代浪潮中,宝武(上海)碳中和产业园作为全市首个绿色低碳主题特色产业园,已然成为北上海产业升级的核心阵地。其中,宝地启园北楼作为重磅新品,依托大吴淞规划核心区位,凭借宝武央企硬核实力,以工业遗存焕新+低碳科创赋能的独特优势,打造集办公、研发、展示、商务于一体的现代化产业空间,诚邀科创、绿色低碳、高端商务类企业共启发展新程,抢占北上海产业发展黄金风口。
1
核心区位 抢占规划红利

宝地启园北楼坐落于上海市宝山区友谊路街道同济路666号,身处大吴淞规划与吴淞创新城双重核心板块,发展优势得天独厚。
大吴淞规划定位“三江交汇、上海之门”,雄踞黄浦江、蕰藻浜、长江三大河流交汇处,总规划面积约110平方公里,横跨宝山、静安、杨浦、浦东四区,是上海城市转型的核心战略板块;而吴淞创新城作为上海2035总体规划确定的城市副中心,地处上海北部门户,总面积约26平方公里,位列主城区范围,更是大吴淞规划的核心引擎。
项目所在的特钢1平方公里先行启动区,是宝山重点打造的高品质产业示范区,宝地启园作为启动区标杆项目,不仅坐拥区域顶级配套,更承载着宝山产业转型、绿色发展的核心使命,企业入驻即可同步享受区域政策、产业、配套多重红利,发展前景无限。
2
立体交通 高效通达全城

交通是企业高效运营的核心保障,宝地启园北楼坐拥多维立体交通网,实现全城、长三角快速接驳,全面畅通商务出行与员工通勤。
·地铁零距离:紧邻地铁3号线宝杨路站,出站即达园区,轻松接驳上海全城轨交网络,员工通勤便捷无忧;
·高架高速环伺:紧邻逸仙高架,快速衔接G1503上海绕城高速、S20外环高速,自驾出行四通八达,跨区商务、城际往来高效顺畅;
·高铁便捷:距在建上海宝山高铁站仅4公里,未来建成后将实现长三角快速联动,助力企业布局全国市场。
无论是日常员工通勤、客户商务洽谈,还是跨区域业务拓展,都能尽享便捷交通带来的高效体验,大幅降低企业时间与运营成本。
3
四大优势 赋能企业发展

📌优越区位,价值凸显
地处同济路核心地段,交通路网成熟,商务出行高效便捷。
📌优质空间,灵活适配
规整通透的办公格局,层高舒适、采光充足。空间支持灵活分割、按需组合,小到中小型企业专属办公区,大到企业总部整层入驻,研发实验室、产品展厅、商务会务区,均可完美适配。
📌成熟园区,配套完善
央企团队,运营稳定、环境优质,项目紧邻宝武全产业链优质产业生态集群,坐拥上下游产业资源、头部企业联动、技术共享、人才对接等专属优势,企业入驻即享成熟产业氛围。
📌低碳科创,未来导向
以绿色低碳为发展理念,契合新一代产业园区标准,助力企业高质量、可持续发展。
4
工业焕新 硬核产品实力

宝地启园北楼并非传统新建楼宇,而是由特钢原初轧精整厂房改扩建而成,在保留工业遗存厚重风貌与历史底蕴的基础上,融入现代办公设计理念,打造出独具特色的工业风高端产业空间,兼具颜值与实力,性价比在同类园区中极具优势。
项目匠心修缮、精工匠造,成功获评2023—2024年度上海市金属结构优质工程(金钢奖),品质得到官方权威认可。楼宇外观特色鲜明,高空间格局开阔大气,既保留了老工业基地的独特肌理,又具备现代办公的全功能配置,实现了工业文脉与现代科创的完美融合,成为企业彰显个性、树立品牌形象的绝佳载体。
5
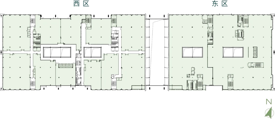
全维参数 硬核配置详情

宝地启园北楼总建筑面积约57000㎡,分为东区、西区两大区域,标准层层高4.5—9m,大堂东区5.5m、西区5m,远超常规写字楼2.8—3.6m的标准层高,各项配置高端完善,全方位满足企业日常办公与发展需求:


6
精准定位 汇聚产业精英
园区聚焦科创办公、绿色低碳、产业聚集三大核心定位,重点吸纳科创研发、绿色低碳、高端商务、产业总部类企业入驻,打造上下游协同、资源共享的高端产业集群。依托宝武产业资源与园区运营优势,为入驻企业提供产业对接、政策咨询、商务服务等全方位赋能,助力企业快速发展,做大做强。
来源:上海宝山官方微信


评论