UP君曾经多次报道成都市政府要提供人才公寓,光是这个消息就足够让人垂涎三尺了,最近有UPER向我们曝光了一些高新区的人才公寓效果图和户型图,UP君整理出来公布给大家,要不是事先知道这些是人才公寓,UP君还以为另一个麓湖诞生了,之美之霸气,令人吃惊。哎呀,多希望自己是人才啊,最不济也该是D类啊!

先 来 一 波 亮 瞎 眼 的 效 果 图
是 不 是 有 麓 湖 的 既 视 感



再 来 另 一 个 风 格 的
依 然 现 代 感 十 足







人才公寓毕竟是拿来住的,无论外貌颜值有多高,户型怎么样,我们还是要关心一下的。
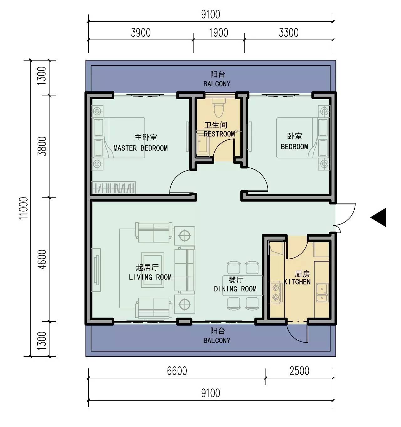
系列一:居家实用版

从楼层平面图来看,一个单元仅有一种户型,共有6套套一60平米,户型都是一样的,说句实在话,市面上很多套一都能做出套二、套三来,这样的尺度还是相当不错的。客厅3.4米开间,卧室3.2米开间,厨房面积超过6平米,卫生间近4个平米。除了观景阳台,还有生活阳台,生活不要太方便哦。

这个套一,1梯4户的配置,还行,从户型面积来看更为阔绰,这分明就是豪宅范儿啊。有了玄关,厨房是开放式的,客厅双面采光,所以厨房可以封闭起来哦。卫生间也是超大,而阳台更是联通了客厅和卧室,长达6.6米。另一个70平米的户型,直接是多了一个书房,其实作为次卧也是可以的。

1梯3户的配置,是板塔结构,左右是很稀缺的板式结构啊,南北通透,走廊也是敞开式的外廊,不仅采光通风优良,还有风景可看,好棒。虽然是套二,做的可是两个卫生间,均可作为套房,还有能采光的储藏室。中间的户型虽没有储藏室,但是生活阳台长达3.6米,也是亮点。

1梯2户的纯板式结构,这是市面上豪宅才有的配置啊,南北通透,采光通风棒棒哒。这个户型准确的说应该是套四的户型,因为书房真是不小。客厅餐厅相连,是现阶段最流行的横厅设计,开间达到了6.6米。厨房是相当方正的U型结构,很好用。
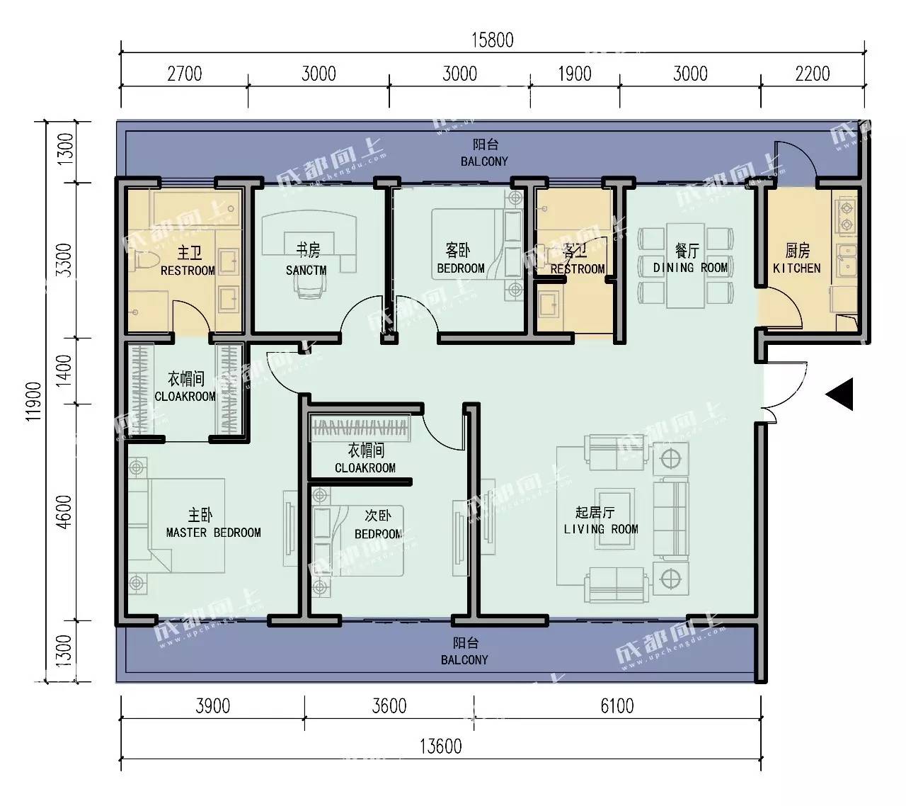
系列二:豪华升级版
再来看升级版的一波户型图,除了套一,其他户型均为市面少见的南北通透户型,最令人的羡慕的是,两侧都有超长阳台,无论从景观效果还是实用性来说,都相当不错。

套一户型,58平米(未扣除阳台只算半面积),类似酒店公寓的方正结构。明厨明卫,开间尺度宜人,而且阳台联通了厨房、起居室和卧室,达到9.5米,套一能这么奢华,也是少见。

套二户型100平米(未扣除阳台只算半面积),这尺度真的很奢侈啊,完全是国外的标准。起居室和餐厅依然是横厅设计,双阳台设计,拉通9.1米,再说一句,很舒适,采光通风简直不要太好啊。

套三户型实得133平米(未扣除阳台只算半面积),两个卫生间和厨房应该是赠送的面积,除了起居室和餐厅依然是横厅设计,双阳台设计,拉通达到了12.5米外,这个户型还有不小的衣帽间。

套三户型实得172平米(未扣除阳台只算半面积),仍然是赠送了两个卫生间和厨房,豪气冲天,起居室开间达到了6.1米,甚至次卧都有衣帽间,双阳台设计,后阳台拉通达到了15.8米,干湿分区和动静分区做得很优秀。

成都市房管局已将人才安居工程建设用地优先纳入年度土地供应计划重点保障。人才公寓和产业新城(工业园区)配套住房应按照产城一体理念和城市综合社区建设要求,优化项目选址布局,完善各项功能配套和公共服务设施,精心组织,确保项目品质。
据了解,为了能真正留住人才,成都高新区将推出人才公寓建筑面积超过百万平米以上。网友爆料,高新南区目前有两个点位,一个在大源,一个在新川,位置巴适哦。

▲ 仅供参考,以官方实际公布为准
这个点位,估计大家都看着眼红吧,位于天府五街上,天府软件园四期边,炙手可热的大源板块,配套日趋成熟,商务氛围浓郁。

▲ 仅供参考,以官方实际公布为准
这个点位,UP君觉得好面熟,位于新川板块,东寺旁,难道是UP君上次介绍的首批地铁公司开发的地铁上盖物业,详情请戳 成都地铁将效仿港铁进军房地产,开发商们瑟瑟发抖吧

▲ 仅供参考,以官方实际公布为准
当然高新西区也有点位。位于龙湖时代天街南面,清水河北岸,与电子科大清水河校区相邻,学术氛围浓郁,环境宜人。
UP君在成都市公共资源交易服务中心网站上查询到,目前已有多个人才公寓启动建设,主要集中在高新东区,从地图看,共有6个点位,都围绕在三岔湖周围,自然环境相当棒。


▲ 仅供参考,以官方实际公布为准

8月7日成都市城乡房产管理局印发《 关于创新要素供给培育产业生态提升国家中心城市产业能级的人才安居工程的实施细则 》,提出:符合《成都市急需紧缺人才和高端人才目录》中A、B、C、D类标准的人才,可申请租住由政府提供的人才公寓。租期为5年,租金标准由各区(市)县政府(管委会)根据人才和项目情况,按照市场租金的一定比例确定。租住由政府提供的人才公寓满5年后可申请按入住时的市场价格购买,购房后5年内不得出售。
A类:国内外顶尖人才。主要包括:诺贝尔奖、图灵奖、菲尔兹奖获得者;国家最高科学技术奖获得者;中国科学院院士;中国工程院院士;中国社会科学院学部委员、荣誉学部委员;国家“万人计划”杰出人才人选;相当于上述层次的顶尖人才。
B类:国家级领军人才。主要包括:国家有突出贡献的中青年专家;中国青年科技奖获得者;享受国务院政府特殊津贴的专家;国家“万人计划”中除杰出人才之外的人选、国家“千人计划”人选、百千万人才工程国家级人选;“长江学者奖励计划”教授;国家杰出青年基金项目完成人;国家自然科学奖、国家技术发明奖、国家科学技术进步奖一等奖及以上获得者或项目主要完成人;中国工艺美术大师;国家级非物质文化遗产传承人;中华技能大奖获得者;省科学技术杰出贡献奖获得者;相当于上述层次的领军人才。
C类:地方级领军人才。主要包括:省青年科技奖获得者;省有突出贡献的中青年专家;省“千人计划”人选;“成都人才计划”人选;享受四川省或成都市政府特殊津贴人员;国家自然科学奖、国家技术发明奖、国家科学技术进步奖二等奖获得者或项目主要完成人,省自然科学奖、社会科学优秀成果奖、技术发明奖、科学技术进步奖一等奖及以上获得者或项目主要完成人;四川省学术与技术带头人;省级工艺美术大师;全国技术能手;国家级技能大师工作室领衔人;省级非物质文化遗产传承人;“成都发展卓越人才奖”获得者;相当于上述层次的领军人才。
D类:其他高级人才。主要包括:具有正高级(若相关行业领域不设正高级层次的须为其高级)专业技术职务任职资格的专业技术人才;取得研究生及以上学历且获得相应学位的国内外高校毕业生(国外高校取得的学历及学位必须经国家教育主管部门认证通过);省或市级技能大师工作室领衔人;市级工艺美术大师;具有高级技师职业资格证书;具有高级社会工作师职业资格证书;其它按相关规定享受高层次人才政策的人才。
安居面积标准
人才公寓建设面积标准60-120平方米,《 目录 》中A、B类人才安居面积不超过120平方米,C类人才安居面积不超过90平方米,D类人才安居面积不超过60平方米。
据了解,成都高新区已成为海内外高层次人才的聚集地。截至今年上半年,成都高新区已聚集各类人才总数达40.3万,“柔性”引进诺奖得主5人,聚集院士13人,国家 “ 千人计划 ” 105人、四川省 “ 千人计划 ” 281人。

准 入 条 件
(一)符合《 成都市急需紧缺人才和高端人才目录 》中A、B、C、D类标准并经人社部门认定;
(二)与本市用人单位签订劳动合同并缴纳社会保险;
(三)在本市无自有住房且未在本市享受过其他购房优惠政策。
申 请 流 程
各类人才通过人才安居信息平台在线注册登记,填写相关信息,注册成功后对照准入条件提出人才安居申请,并提交身份证、用人单位营业执照或统一社会信用代码(组织机构代码)证书、用人单位出具的《成都市人才安居申请表》、劳动合同以及符合《成都市急需紧缺人才和高端人才目录》或产业高技能人才的相关证明材料(学历、职称、职业资格等证书及获课题、成果奖等证明材料)等。
各类人才也可持上述申请材料至所辖区(市)县房管部门申请,由区(市)县房管部门将其信息录入人才安居信息平台。
审 核 流 程
区(市)县人社部门对符合《 成都市急需紧缺人才和高端人才目录 》的人才资格和产业高技能人才资格进行认定并确定人才类别,以及对申请人的劳动合同、社会保险缴纳情况进行审核。区(市)县经信部门对产业新城(工业园区)企业进行认定。区(市)县组织部门对人才享受购房优惠政策进行审查。区(市)县房管部门对人才自有住房情况进行审查。
资 格 公 示
经审核通过的人才名单及相关情况由人才安居信息平台向社会进行为期7天的公示,公示无异议后,由所辖区(市)县房管部门确认人才安居资格。
市 场 租 金 标 准
人才公寓、产业新城(工业园区)配套住房市场租金标准由房源业主单位参考同区域、同品质商品住房的市场租金确定。租住人才公寓和产业新城(工业园区)配套住房的租金与市场租金的差额部分由人才所属区(市)县财政自行承担。
出 售 价 格
人才公寓出售价格为人才入住时的市场价格。由房源业主单位参考同区域、同品质商品住房市场价格确定,并在房屋租赁合同中予以明确。
房 源 购 买
租住由政府提供的人才公寓满5年后,经审核仍符合人才公寓准入条件且绩效评价合格的,可申请购买所租住的人才公寓。申请购买有效期为租住期满5年之日起6个月内。到期未提出购买申请的,应退出人才公寓或按市场租金继续租赁。
退 出 管 理
申请人在租住人才公寓或产业新城(工业园区)配套住房期间,有下列情况之一的,应收回所租住房:
(一)人才认定文件被撤销的,或经考评不符合继续享受人才安居政策的;
(二)触犯法律并被刑事处罚的;
(三)擅自将住房转租、转借他人或改变使用用途的;
(四)累计6个月未缴纳租金或相关费用的;
(五)无正当理由,累计6个月以上未实际居住的;
(六)不再符合本细则规定的申请条件的;
(七)婚前夫妻双方均以个人名义租住人才公寓或产业新城(工业园区)配套住房的,婚后应退出其中一套;
(八)存在其他违反相关政策规定行为的。
特 别 提 示
购 房 后 6 个 月 内 需 退 租
申请人在租住人才公寓或产业新城(工业园区)配套住房期间在本市购买住房,不再符合相应人才安居准入条件的,应立即退出所租住房或按照市场租金标准缴纳租金过渡,但过渡期最长不超过6个月。
来源:成都向上


评论