前阵子,您一定没少被关于大头儿子家族,或是陆依萍母女多有钱的帖子刷屏。但是你们也许不知道,在众多家族中还隐藏着更有钱更有权的红色家族,那就是《我爱我家》中的一家子。什么,你说没瞧出来?那这就给您细细道来。
一. 居住条件
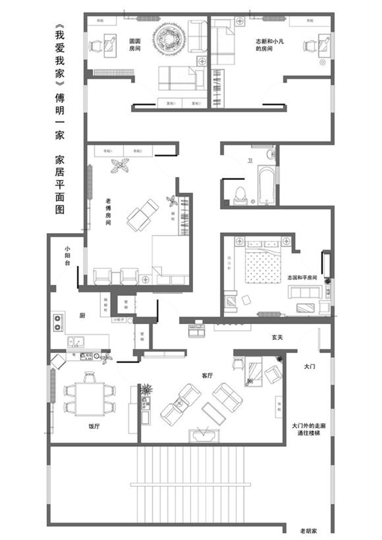
我爱我家第46集《生活之友》透露了老傅家的地址:杨柳北里十八号202室。根据各个角度的拍摄外景推测,外景地在南礼士路一带的西便门外大街10号院国务院宿舍。这地方位于寸土寸金的北京二环。
从外观看是苏式建筑,特点是屋顶高
而且这套国务院宿舍面积也不小
一个可容纳7人的大客厅兼书房
一个可让8人同时用餐不显拥挤的厨房
傅老的房间
大儿子贾志国和和平夫妇的房间,带双人沙发茶几,两米宽双人床
圆圆和保姆一个房间,带书桌
志新和小凡一屋,应该是有双人床,小凡平时住在大学里,回来后志新在客厅搭床。所以加上傅老的房间应该一共四房一厅,虽然号称50平米,但是能够容纳7人居住还不显得拥挤,100平米至少的。根据现在的二手房市价6.8万/平,傅明老人的房子现在至少值680万。
还有第73集中,提起贾志国的单位有分房名额,不过在剧里贾志国最后并有没有拿到房,但不代表以后也不会有。
二. “红色”家庭背景
《我爱我家》中的核心人物傅明老人,原名贾敬贤,退休前是厅局级副职。 根据贾志国的一句:“建党的时候,他们12个人在船上开会,是不是您在门口给放的哨啊?”可以推断出傅明老人在建国时应该有过一份功劳。根据网友们的推 测,有一种说法比较靠谱。傅明老人应该是北京铁路局的,因为一般只有搞基建的部门才有总工程师,总工程师的级别才会比傅明老人高。还有,那个年代做生意倒 腾东西能弄到车皮最重要,所以傅明老人初恋女友找他要的应该是车皮的批文。还有,圆圆被绑架那集提到傅明老人之前的一个同事后来被下放到边疆去了,这条也 符合,铁路系统庞大,从一个城市调到另一个城市的事情也很多。还有最重要的就是《我爱我家》导演英达貌似有铁路情节。所以猜测傅明老人的设定应该是北京铁路局副局长。
傅明老人大儿子贾志国,国家机关工作人员,副处级机关干部在职,知识分子。青年时上山下乡,回来后考上大学,经历了中国改革巨变的时代。
在113集里面,因为深得领导喜欢,大概在93年40岁不到被提拔为副处长。就像他说的,“处级不带长放屁不带响。”可见升职后带来了可见的权力。
三.生活水平
就剧中提到的食物有:炸馒头片,大虾,喔喔佳佳奶糖,红烧肉,炒土豆丝,炒疙瘩,红烧带鱼,油条、饺子,软炸里脊,八喜冰淇淋,蟹肉泥,红茶,绿茶,花茶, 咖啡,橘汁儿,矿泉水,鲍鱼,锅巴,咳嗽糖浆,豆浆,香油,牛奶,冬瓜丸子汤,小笼包,打卤面,贝克啤酒,泰国饭,印尼饭,老边饺子,嘟嘟牌方便面,香蕉 布丁,橘子布丁,通心面,炸虾仁,莲子粥,咖啡奶油多士茶。从伙食上来看,品种多样,是想吃什么就能吃上什么。
还有橱柜上的放音机、客厅电视机、写字台上的电话机,片中提到的BP机、录音机、月球车、放音机、电脑。1994年都是属于家庭大件。第85集贾志新为了中 奖花了1万块钱买了电脑,结果没有中奖就想以9500元转给隔壁邻居胡局长。94年500元相当于普通家庭一个月的收入。
第104集里家人为圆圆上中学的事想办法。准备给贾圆圆老师送的礼。
老傅想利用自己的威望做圆圆想上的重点中学171中学的义务辅导员,让校领导卖一个面子让圆圆上重点中学。志国想到利用自己副处级的职权帮学校办点事儿让圆 圆上171中学。最后大家想到捐资助学,这种性质的捐款至少要两万,和平夫妻俩的小金库和老傅可以一起负担这笔钱。再加上和平走穴失败被扣下来那集,全家 人几乎用了所有积蓄(3-5万)才搞定那事,能推测出贾家是当时的万元户。放在今天想捐资助学上重点中学,不捐个一栋楼或者1、2千万不能算捐资助学。所 以推测出贾家相当于现在家有存款几千万元的家庭。
在贾圆圆要当广告导演的那一集,图里为她的同学想要上广告贿赂她的,全是进口零食。可见她的同学也都是和她家庭条件差不多的。
其他家庭开销方面,第1集《发挥余热》里透露,贾小凡大学生每个月零花钱100块,圆圆小学生每天零花钱1块。供一个小女孩上小学,一个成年人上大学,一个 男成年人无业在家3年多,一个半歇业的人民艺术家,还能再雇一个小保姆。不过,保姆费应该有补贴。小学生和大学生学费应该算公费。贾志国是公务员,每月大 约1200,和平唱大鼓每月700,傅老每月500。每月大概有2000元收入,《我爱我家》是94年上演,94年一家收入能达到2000元已经很不错 了。
最后,大家一定对客厅里挂的那副“老骥伏枥,志在千里”书法记忆犹新。这幅书法出自著名书法家舒同的弟子王秉新,中国书协会员,其作品多次被国家收藏,作品流传到美国、德国、日本、新加坡、澳大利亚、香港等地。他的早期精品现在拍卖价格可到10万。
结论:
相比于大头儿子只是一个普通的“富三代”,我们的圆圆可是根正红苗的“红三代”。当然,现在,饰演圆圆的关凌已经有了自己的幸福家庭了。祝福上述所有人吧。


评论