4月1日,江宁区人民政府公布了金茂青龙山新城G66地块项目规划设计方案。该地块是在去年12月28日,被宁波昀茂置业有限公司(金茂分公司)摘得,总价7.3亿,楼面地价12057元/㎡。

根据规划项目将打造6栋住宅,其中1#、2#、3#、7#、8#为26层高,6#为25层高,4#、5#为物业用房。现规划设计方案总建筑面积约8.1 万平方米,其中地上建筑面积约 6 万平方米,地下建筑面积约 2.1 万平方米,主要内容为高层住宅和配套。该项目将有禹洲和金茂联合开发。


该项目位于上坊片区天靖路以南、环镇东路以西,用地面积为24217.46 平方米。根据规划条件,该地块规划用地性质为住宅用地,相关指标为: 1.0<容积率≤2.5,建筑高度≤80 米,建筑密度≤18%,绿地率≥35%。

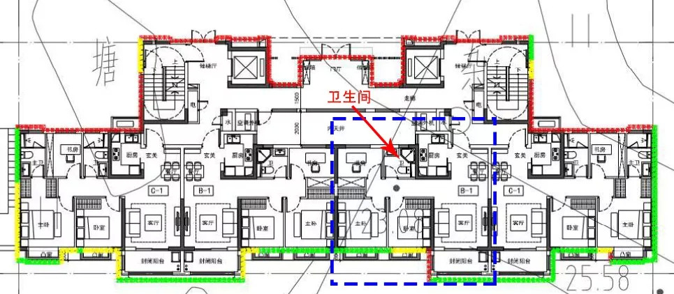
从项目的规划图中,大致可以看出该项目后期将主要打造两种户型房源,即3房2厅1卫和3房2厅2卫。
三房两厅一卫↓↓↓↓↓


三房两厅一卫↓↓↓↓↓

金茂接连落子青龙山
金茂对青龙山可谓是“情有独钟”,已陆续在青龙山落下5子,几乎占据了青龙山的“半壁江山”,除了已经售罄的东城金茂悦,目前还有东城金茂悦Ⅱ期和江宁金茂悦两个楼盘在售,其中东城金茂悦Ⅱ期预计将于今年清盘,随后销售团队转移至金茂G66项目,最快今年年底入市。江宁金茂悦在上个月中旬刚刚加推完,近期预计还会有加推计划。
此外金茂在青龙山的另一幅地块——金茂青龙山新城G52也于上月中旬公布了项目规划设计方案,该地块共规划6栋住宅楼,其中1、2号楼25层,3、4号楼24层,5、6号楼20层,另配建有1处社区中心,2座配电房,南侧规划有1座幼儿园。G52地块将由招商和金茂共同打造。

青龙山吸引多家房企进驻
当然,在青龙山布局不只有金茂,还有中南,朗诗、融侨、深业以及金地等多家房企。中南目前在青龙山的项目为中南上悦城,项目在上月中旬迎来首开,并在首开当天全部售罄,可以说是区域内销售情况最好的一家了,项目近期又有加推计划,户型面积87㎡、115㎡,共计120套房源,前期均价25600元/㎡。

朗诗目前在青龙山落有两子,一个是朗诗玲珑郡项目,该项目在上月下旬迎来首开,目前仍有房源在售,面积117、124㎡,销许均价25600元/㎡。另一个则是朗诗青龙山G22地块,该地块在2017年7月7日,经过48轮竞拍,被武汉朗华(朗诗)以13.4亿拿下,楼面地价17319元/㎡,未来现房销售。尽管被拍下已有将近2年的时间,但项目的规划设计方案一直都还未公布,上市时间也未可知。

融侨在青龙山有两个项目,一为融侨悦城,二为融侨观澜,前者早已售罄,目前房源正迎来交付,后者在去年11月初迎来首开,此后又在今年1月加推,两次开盘结果去化情况一般,项目目前仍有房源在售,面积98、122、135㎡,销许均价约25600元/㎡。

深业在青龙山的项目为深业青麓上居,前身是青龙山新城G72地块,该地块在2017年12月27日,经过22轮竞价,被深业摘得,总价10.6亿,最终楼面价13980元/㎡,目前该地块规划设计方案还未出炉,上市时间待定。
金地算是青龙山新城的“新人”了,它在去年12月底进驻青龙山,2018年12月27日,金地、金茂、新力三家联合摘得青龙山新城G60地块,总价10.9亿,楼面地价12303元/㎡,无需现房销售。
青龙山目前在售房源很多,未来可售房源也有充足储备,虽然产品具有很大的同质性,但区域限价25600元/㎡,这个价格对于很多刚需者来说无疑也是很大的利好,而且青龙山新城未来在交通、教育、商业等方面的规划还算完善,具有一定升值潜力,在此置业或许也是一个不错的选择。




评论