文|黎玨伶

近两年,深圳豪宅项目的开盘,几乎都是“活久见”系列。2018年5月30日,双玺·时光道开盘,700人抢167套房源,“5000万蹲”引热议;6月底,华润城润府三期推出741套住宅,6776人诚意登记,众人冒雨排队看房;今年2月,深圳湾瑞府启动线上选房,8000万元一套的大平层秒光。
豪宅的抢手直接刺激成交量上涨,深圳中原研究中心数据显示,2018年,1000万元以内豪宅成交套数为1676套,同比上升239.3%;1000-2000万元豪宅成交2016套,同比上升1.26%。
春节过后,伴随着楼市“小阳春”的到来,多个豪宅项目开始有所动作。4月11日,半岛城邦四期开始认筹,20日正式开盘。4月13日,红树湾壹号·宽玺将限价入市。海境界二期也计划在4月下旬开放样板间,5月开盘。华侨城新天鹅堡三期的户型图流出,一改往期主推大户型的风格,推出123平方米的三房。这些项目的开盘之日是否还会延续去年的火热行情,一切还有待市场的见证。
坐拥一线海景的红树湾壹号·宽玺
位置:福田区沙嘴路与金地一路交汇处
户型:178-242平方米3-4房
价格:8-10万元
总户数:住宅252户
简介:
由绿景中国(0095.HK)开发的绿景红树湾壹号总建筑面积约30万平方米,由4栋超高层建筑组成,是集住宅、商业、酒店、写字楼、公寓于一体的综合体。2018年10月,项目率先推出C、D栋83-167平方米的3-5房,均价约8.8万元/平方米。如今再次推出B栋“楼王”单位——宽玺,计划在4月13日现房入市,价格区间为8-10万元/平方米。

绿景红树湾壹号坐落在福田大金沙片区,距离7号线上沙站约600米,地铁一站可抵达车公庙商圈。自身配建约3万平方米佐阾商业,可以满足基本生活需求。项目划分在绿洲小学和上沙中学的学区范围内,距离最近的金地工业区旧改还将规划一所九年一贯制中小学。

图片来源:绿景红树湾壹号
宽玺最大的亮点在于靠近红树林自然保护区,南面可以看到一线无遮挡海景。但目前项目周边集中了大量农民房,环境较为杂乱。随着京基、金地、中洲等开发商进驻参与城市更新,相信未来片区面貌能够得到改善。
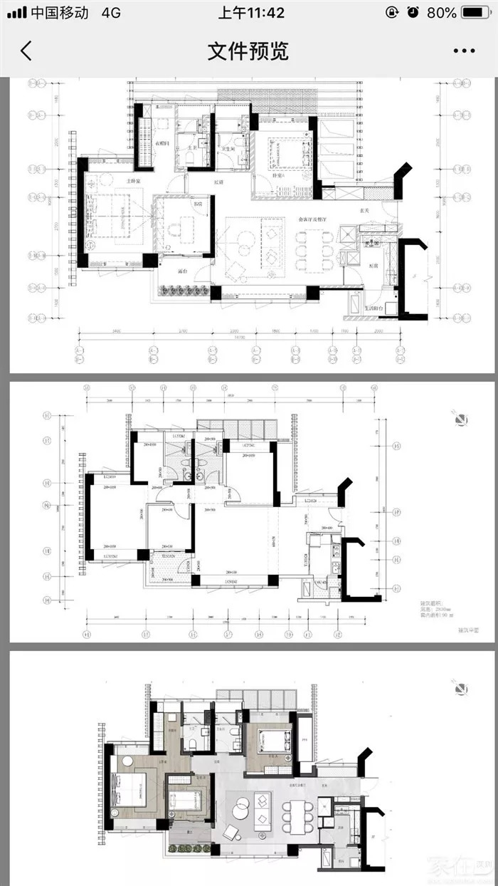
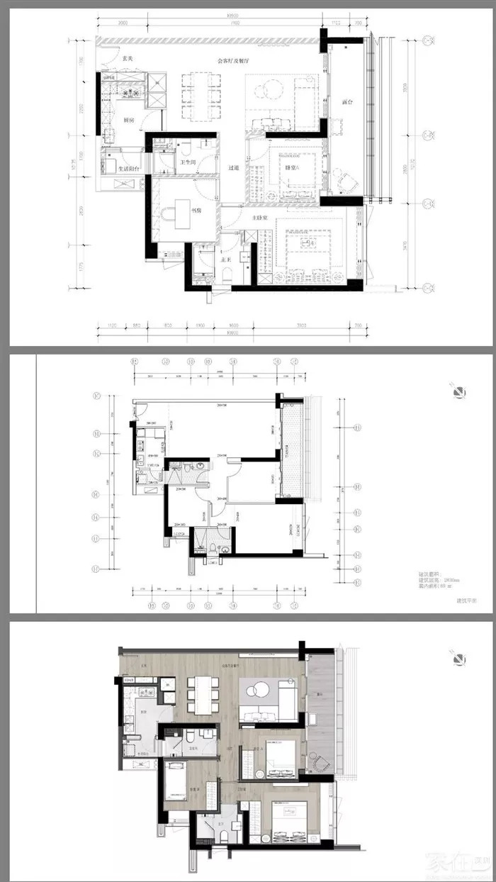
宽玺为纯板式结构,3单元两梯两户,户型包括172-176平方米3+1房、179平方米3+1房、202平方米4房、242平方米4房,使用率一般,预计今年6月毛坯交房。值得注意的是,该项目容积率较高,为8.59。总体而言,该项目更适合刚需改善型群体。
地铁上盖物业海境界二期
位置:南山区招商东路与后海滨路交汇处
户型:140平方米的2房,190平方米的4房
价格:约12万元
总户数:住宅298户
简介:
同样是看海景,近期可以选择的豪宅项目还有海境界二期,预计4月下旬开放样板间,5月开盘。现场销售称,价格预计12万元/平方米左右,但只有三十层以上的高楼层才能看到海景。

该项目位于南山后海片区,规划有4栋高层建筑塔楼、裙楼和一所幼儿园。其中,A、B两栋为45层高的住宅,C、D栋分别为写字楼和公寓。后海是深圳规模较大的豪宅片区,集中了后海雅园、恒裕滨城、后海公馆等多个豪宅项目,居住环境纯粹且安静。区域内二手房的价格大多超过10万元/平方米,其中恒裕滨城二期的均价最高,深圳贝壳找房网显示高达21.12万元/平方米。

海境界二期为2号线湾厦站地铁口上盖物业,未来将与D出口无缝接驳。项目自带约6万平方米的商业,目前已确定引进家居品牌红星美凯龙。此外,还可以共享宝能太古城、海岸城、深圳湾万象城、海上世界等商业配套。教育方面,小学和初中划分在育才四小和育才三中的学区范围内。
具体到产品上,海境界二期的住宅分布在2栋4个单元,每个单元2梯2户,户型为140平方米的3房和190平方米的4房,南北通透,使用率约70%,预计2022年上半年带装修交楼。
老豪宅片区的新天鹅堡
位置:南山区华侨城侨香路与香山东路的交汇处
户型:117平方米、123平方米的2房
价格:约12万元
总户数:住宅1116户
简介:
新天鹅堡三期,备案名为天鹅湖花园(三期),是由央企华侨城集团开发的又一豪宅项目。该项目地处深圳中心地段华侨城片区,紧邻2号线侨城北站,交通便利,环境优美。不仅坐拥天鹅湖湖景资源,还可以享受欢乐谷、燕晗山郊野公园、何香凝美术馆、华侨城创意文化园等休闲配套,居住舒适度高。

项目占地面积约4.03万平方米,总建筑面积约29.91万平方米,容积率4.44。其中,商业部分的建筑面积约为4.33万平方米,建成后,地下三层及地面三层均是商业。四期一共有4座住宅,A、B座最高51层,C、D座最高52层,拥有117平方米3房和123平方米3房面积段,分为横厅和竖厅两种,每层6户。

新天鹅堡三期
不过,据现场销售介绍,117平方米的产品只有少量房源,且只分布在避难层,除了少一个阳台,其他都和123平方米户型一样。从新天鹅堡三期技术经济指标表中可以看出,四期所有户型的套内建筑面积都小于90平方米,也就是说,大部分户型的使用率约73%。
新天鹅堡在2016年推出一期315套房源,均价约13.95万元/平方米;随后在2017年推出二期474套房源,均价约11.68万元/平方米。参考前两期及周边其他楼盘的价格,有网友推测,三期的价格也将在10-13万元/平方米之间。在以大户型为主的华侨城片区,新天鹅堡三期123平方米的面积段可以说是片区内较为稀缺的产品,但算下来一套房总价至少千万元,也只有土豪们才能买得起了。


户型图,图片来源:家在深圳



评论