正在阅读:

电影《蒂凡尼的早餐》里的公寓楼刚刚以740万美元卖出

扫一扫下载界面新闻APP

电影《蒂凡尼的早餐》里的公寓楼刚刚以740万美元卖出

据《纽约观察家报》报道,在电影《蒂凡尼的早餐》中作为霍莉·戈莱特丽(HollyGolightly,奥黛丽·赫本饰)公寓楼正脸出镜的美丽上东区别墅以740万美元的的价格售出。

电影《蒂凡尼的早餐》里的公寓楼刚刚以740万美元卖出

据《纽约观察家报》报道,在电影《蒂凡尼的早餐》中作为霍莉·戈莱特丽(Holly Golightly,奥黛丽·赫本饰)公寓楼正脸出镜的美丽上东区别墅以740万美元的的价格售出。

这间别墅上一次易主是在2012年,前买美林证券经纪人Peter E. Bacanovic(因其在Martha Stewart内幕交易丑闻中的角色入狱5个月)将它以600万美元左右的价格出售给一家塞浦路斯有限责任公司。

别墅新主人的身份同样以一家公司的名义被保护起来。依据《纽约观察家》的报道,在去年,这栋为2个家庭设计配置的房子最初以1000万美元的价格被列入榜单

这别墅楼看起来眼熟吗?

作为Holly Golightly(奥黛丽·赫本饰)的家,它在电影《蒂凡尼的早餐》中出演主要角色。

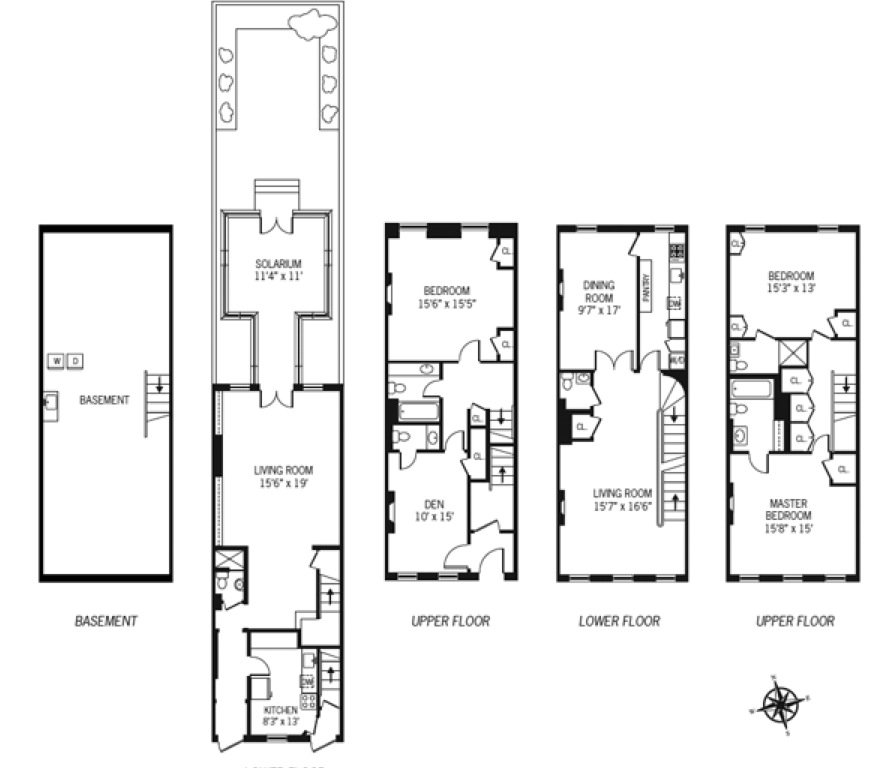
这栋楼目前被划分为2处独立的复式公寓,共有10间屋子。

它拥有约3200平方英尺(约300平方米)的生活空间。

四间卧室。

顶层有一间豪华的玻璃阳光房。

书房里全部是红木家具,还有一个烧炭的壁炉。

在陈列的照片中有几张是关于奥黛丽·赫本的。

下面是平面布置图。

 

翻译:高明

本文为转载内容,授权事宜请联系原著作权人。

评论

暂无评论哦,快来评价一下吧!

下载界面新闻

微信公众号

微博

电影《蒂凡尼的早餐》里的公寓楼刚刚以740万美元卖出

据《纽约观察家报》报道,在电影《蒂凡尼的早餐》中作为霍莉·戈莱特丽(HollyGolightly,奥黛丽·赫本饰)公寓楼正脸出镜的美丽上东区别墅以740万美元的的价格售出。

电影《蒂凡尼的早餐》里的公寓楼刚刚以740万美元卖出

据《纽约观察家报》报道,在电影《蒂凡尼的早餐》中作为霍莉·戈莱特丽(Holly Golightly,奥黛丽·赫本饰)公寓楼正脸出镜的美丽上东区别墅以740万美元的的价格售出。

这间别墅上一次易主是在2012年,前买美林证券经纪人Peter E. Bacanovic(因其在Martha Stewart内幕交易丑闻中的角色入狱5个月)将它以600万美元左右的价格出售给一家塞浦路斯有限责任公司。

别墅新主人的身份同样以一家公司的名义被保护起来。依据《纽约观察家》的报道,在去年,这栋为2个家庭设计配置的房子最初以1000万美元的价格被列入榜单

这别墅楼看起来眼熟吗?

作为Holly Golightly(奥黛丽·赫本饰)的家,它在电影《蒂凡尼的早餐》中出演主要角色。

这栋楼目前被划分为2处独立的复式公寓,共有10间屋子。

它拥有约3200平方英尺(约300平方米)的生活空间。

四间卧室。

顶层有一间豪华的玻璃阳光房。

书房里全部是红木家具,还有一个烧炭的壁炉。

在陈列的照片中有几张是关于奥黛丽·赫本的。

下面是平面布置图。

 

翻译:高明

本文为转载内容,授权事宜请联系原著作权人。