昆明房价又涨了!
由于“黑天鹅”事件的影响,昆明房价经过了一季度的“蛰伏期”。4月开始,又恢复了上涨态势,且涨幅位居全国第三。这意味着,无论是刚需还是刚改,买房的门槛都在逐渐变高。
在此背景下,相较于主城四区,呈贡尚处于价格洼地,且在大学城、市政府、地铁、高铁以及各项城市配套规划红利的加持下,区域价值愈发凸显。其广阔的发展前景,吸引了蓝光、新城、中交、招商、融创、远洋等诸多品牌房企入驻,打造了众多高品质楼盘。
这其中,位于白药街与兴园路交叉口(云南大学旁)的光明璟宸项目,板式高层住宅均价仅在1万/㎡左右,是昆明难得的低价盘。
此外,项目周边还有云师大附中附小、师大附中附小等多所优质教育资源环绕,无疑成为了呈贡区域性价比最高的项目之一。下面,小编就为大家详细解读光明璟宸是如何成为呈贡“性价比之王”?
【区位篇】
从区域来看,光明璟宸位于白药街与兴园路交叉口(云南大学旁),项目五公里范围内汇集了博大路、彩云南路、致远路、梁王路等多条城市主干道,形成了“六纵六横”立体交通路网。
从项目出发,10分钟车程即可抵达昆明南站,15分钟车程即可到达七彩云南第壹城、置信银河广场、呈贡吾悦广场(建设中)、呈贡万达广场(建设中)等繁华商圈。40分钟车程即可抵达长水国际机场和昆明主城核心区。四通八达的交通路网,保障了光明璟宸业主可迅达昆明各区。
公共交通方面,项目距离地铁1号线大学城站约2公里,周边还有兴园路口(学苑路)、万青路口(学苑路)、学苑路口(万青路)等十余个公交站点,z107路、z26路、223路、c86路等多条公交路线途径此地,出行便捷。
综合来看,光明璟宸位于大学城中心位置-雨花片区,所处区域内汇集了云南大学等9所省属重点高校及众多成熟高端小区,区域居住氛围浓厚,舒适度高。光明璟宸住宅为纯板式设计,其1万/㎡左右的均价尚处区域价格洼地,是市面上难得的高性价比品质大盘。
【配套篇】
商业配套方面,项目自身规划有2100㎡的大型生鲜超市,周边还有前卫营缤纷世界、聚贤街商业广场、雨花商业广场、第七街区、涌鑫哈佛中心、七彩云南第壹城、置信银河广场、实力花千坊等大型商业综合体,可为全方位满足业主吃喝玩乐购一站式消费服务。
教育配套方面,项目毗邻云南大学、云南师范大学等9所省属重点高校,还有云南大学附属中小学及幼儿园、西南联大研究院附属学校(小学、初中、高中)及云师大附中、附小等优质教育资源环绕在侧。此外,项目自带一所18班幼儿园,未来还规划了一所小学,光明璟宸可谓是名副其实的“书香世家”。
医疗配套方面,项目所处片区内共规划有9所综合医院,其中,昆明医科大学第一附属医院(呈贡医院)、延安医院(呈贡医院)、昆明市中医医院(呈贡医院)三家三级甲等医院及呈贡区人民医院均已开放接诊,可为业主及其家人的健康保驾护航。
生态资源配套方面,捞鱼河湿地公园、大渔公园、春融公园、春城公园、洛龙公园等公园环伺,未来这里将规划有6大公园,可形成广阔的城市“绿肺”,百万方负氧离子环绕周围,可为区域居民打造优氧空间。
光明璟宸位居呈贡城央,在尽享繁华商业、便捷交通、优质教育及医疗的同时,还可坐享城市生态公园,可谓兼得都市繁华与自然静谧。
【规划篇】
光明璟宸占地约164亩,将分两期进行开发。其中,一期共规划有14栋高层住宅,地块容积率为3.5,建筑密度为16.6%,绿地率为40.6%,最大楼间距约318米,总户数为3527户,车位4610个,车位配比为1:1.31。
项目整体建筑和园林采用的是新中式风格,整体分为五大区域,出入口区,中心景观区,运动休闲区,宅间组团区。社区内规划有儿童游乐区、老年活动区、社区环形塑胶跑道等,可满足业主在社区生活的不同需求。
【产品服务篇】
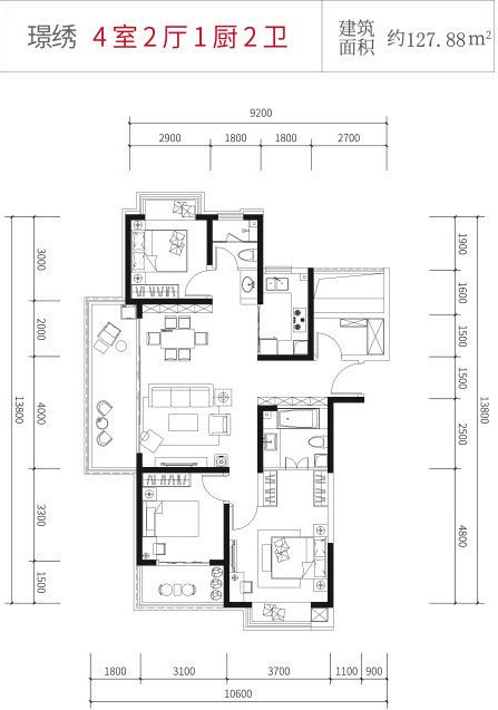
光明璟宸住宅均为板式高层,为2梯4户和3梯8户(一栋)设计。针对不同客户的需求,项目设计有建面约95-127㎡的三至四房产品,多开间朝南设计,且均设计有6-7.1米超大景观阳台,视野开阔,采光度极好。
其中,105㎡璟玥户型,为三室两厅一厨两卫设计,南北通透,动静分区,功能区布局合理。客厅和主卧均朝南,并连通景观阳台,可尽享阳光美景;户型设计有双卫,且均有明窗通风,可保障空气流通,雅洁清新,乐享优越生活。独立阳光厨房设计,让油烟噪音远离起居空间。

建面约127㎡的璟琇户型,则为四室两厅一厨两卫设计,端户三面采光,通透大气;约6米阔绰横厅,配享大界面景观阳台,将最大化容纳社区景致。主卧次卧均设计有大飘窗,为居住空间精心勾勒出最大的风景画面,体验享受与实用的双重乐趣。主卧带有独立卫生间、衣帽间,保证私密性的同时,彰显主人奢华生活。

【品牌篇】
光明璟宸,是光明地产入滇首作。
光明地产成立于1988年,是光明食品集团旗下上市地产开发企业,具有资深的房地产开发资质,是中国房地产百强企业。
截至目前,其开发的项目遍及全国项目遍及全国十余个省市,累计开发各类住宅、商业办公面积6000多万㎡,连续多年名列中国房地产百强企业。
【工程篇】
目前,光明璟宸工程主体施工正有序推进。项目最高建至地上19层左右,预计将于2022年交房。

据了解,光明璟宸现7号楼载誉加推中,建面约95-127㎡,价格10200元/㎡。更多信息请详询:0871-63963366。
注:以上内容在时间上存在一定滞后性,准确的动态详情,以项目方最新公开披露的信息为准。


评论