2020年
7月20日
星期一
27-33℃ 阴
//////////
01
因赣深铁路建设需要,布吉海鲜市场25日起全面关停
因涉及国家铁路重大工程项目——赣深铁路笋岗动走线建设征拆工作,服务深圳市民23年的布吉海鲜批发市场将结束其使命。
据了解,深圳水产批发的重要市场布吉海鲜批发市场将于2020年7月25日24时起正式全面关停,从7月18日启动逐步关停,现经营户安置到重新启用的布吉农批中心临时交易区继续经营,市民可前往临时市场采购。
赣深铁路是连接江西省赣州市与广东省深圳市的高速铁路,其笋岗动走线从布吉海鲜批发市场穿过,项目建设需收回市场土地约3300平方米、拆除地上建筑物3.6万平方米。
今年4月、6月,罗湖区先后发布了布吉海鲜批发市场片区房屋征收提示及决定书。
截至昨日(7月19日),在布吉海鲜批发市场514户经营户中,508户已抽签选择临时安置档位、安置率达98.83%,435户已搬迁至布吉农批中心临时交易区、搬迁率达84.63%。
02
央行今日公布最新LPR,连续3月维持不变
今天上午,央行公布最新的LPR情况,1年期LPR为3.85%,5年期以上LPR为4.65%。连续第3个月维持相同利率不变。
易居研究院智库中心研究总监严跃表示,进此次利率数据和上一次发布保持持平,充分说明当前利率政策的导向,即总体上以消化上半年较为宽松的政策为主。虽然利率没有调整,但总体上下半年以保持低息为导向。
03
渔人码头旧改效果惊艳亮相!华侨城又一豪宅综合体,10月开展?
据家在深圳论坛网友爆料,华侨城深圳湾新玺名苑今年10月份可能开展示中心,但目前工程还处于前期阶段,10月入市或有难度。
据了解,项目以商业物业为主导,没有规划住宅产品。此前有媒体爆料称,该项目的公寓产品面积段为建面175-260-350-435-786平米。
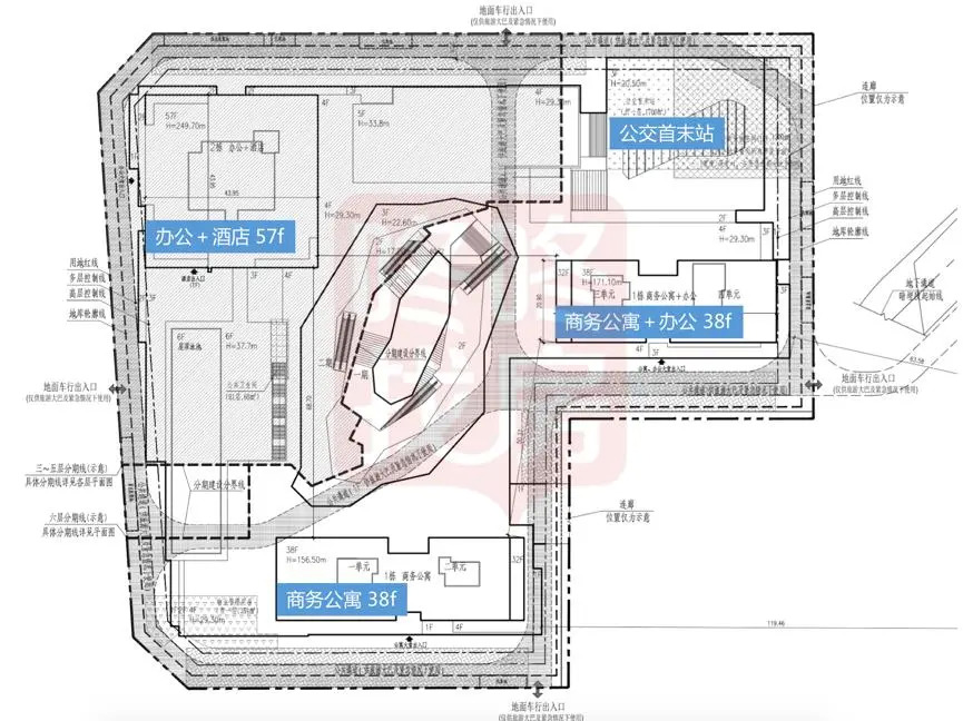
蛇口渔人码头变身28.8万平米商业综合体
深圳湾新玺名苑原为备受关注的蛇口渔人码头城市更新项目,又名为蛇口街道西岸更新单元。项目位于蛇口街道南端,临近地铁2号线东角头站。

深圳湾新玺名苑分为两期开发,主要由三栋高层建筑组成。
其中:一期为两栋38层的商务公寓+办公综合楼,2栋公寓面朝深圳湾,是又一海景豪宅;
二期为1栋57层的办公及酒店综合楼。

根据规划,项目到2022年完工,最终将建成集滨海休闲、精品酒店、特色商业、办公、公寓于一体的滨海商业综合体。
具体规划指标上看,项目整体建设用地面积约2.5万平米,总建筑面积约28.8万平米。建设内容包括写字楼、酒店、商务公寓、地上及地下商业、海洋主题馆、公交首末站、公共厕所及地下停车场,以及24小时开放空间。
(内容整合自:深圳特区报、中国人民银行、楼市爆料)
界面楼谈 扫描二维码,一起买房吧!



评论