文 | 奇鲸
黄金周小长假似乎给楼市泼了一盆凉水,“银十”的热度似乎没有想象中的壮观场面。
但真实情况真的是这样吗?根据深圳住建局公布的2020年深圳住宅和公寓供应四季度计划入市的项目情况可知,年内深圳计划入市的住宅和商务公寓项目共64个,预计供应房源面积为300.78万平方米,35881套。
而这64个新盘的分布的区域,要数宝安和光明房源最多:
稳步开拓的宝安将有13个新盘年内计划入市,总套数7824套,住宅产品有6265套;
热门打新片区光明年内还有8个项目准备入市。总套数4966套,其中4120套是住宅。
近日,界面楼谈一行来到搭乘新开通的6号线来到光明,探访在计划入市名单中的“佳兆业云峰汇花园”和“宏发万悦山名庭”,为大家带来项目的最新进度情况。
沙盘已备好 开展在望
9月的光明楼市确实很“光明”,前有电建洺悦府483套住宅产品开盘日光,后有金融街二期与民轩揽翠台去化率稳步达到100%。
一切即在意料之外又在想象之中,毕竟在光明的二手房挂牌价早早已超过6万元/平方米的时候,还有均价不超过6万的新房,权衡之下新房无论如何都“很香”。
趁着光明的热度高涨,界面楼谈也再次踏足这个新区踩盘。第一站到达的便是佳兆业云峰汇花园。
作为佳兆业在光明的首秀,项目位于光明大街与竹华路的交汇处,距离6号线光明大街站直线距离仅450米,属于地铁口物业。
当天界面楼谈一行搭乘地铁从福田站出发,花费近一个小时来到光明大街。
佳兆业云峰汇花园的营销中心和工地未连在一起,而是单独设置在新地中央20楼。从A站口出站后,便能看见贴在墙柱上的写有“云峰汇营销中心”的指路牌以及宣传道旗。
来到营销中心所在大楼,一楼右侧为佳兆业设置了一个小型展台,上面摆放了项目沙盘,由于还未拆封,未见全貌。
界面楼谈到达20楼后,却被项目销售拦在门外,并告知营销中心暂未对外开放,具体开放时间需要等待官方公众号公布,楼盘资料也并未对外提供。
不过,从大门往里看,营销中心人员已配备齐全,相信开放时间也不会太远。
营销中心未看成,我们折返来到楼盘工地。
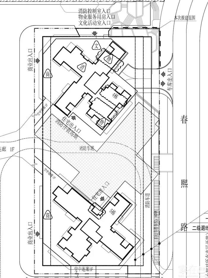
佳兆业云峰汇花园原为三井银包厂城市更新项目,拆除用地面积约3.9万平方米,开发建设用地面积约2.9万平方米,计容建面约13.9万平方米。
其中,住宅8.34万平方米,保障性住房1.92万平方米,商业、办公及酒店4.71万平方米,配建一所9班幼儿园,公共配套设施8320平方米。
项目整体分为四个地块开发,01地块为商业用地,02、03、04地块为二类居住用地。
我们到达目的地,工人正在施工作业中,大门时不时进出几辆大卡车。据工作人员透露,项目开两个地块,目前已出地面。
工地周边分布多个城市更新项目,更新方向以住宅为主,如绿地新都会、星河天地二期、伶伦提可乐旧工业区项目、民轩揽翠台等,周边聚集多个工业园区,市政基础设施还未完善,待旧改完成后,周边面貌将得得到提升。
教育配套方面,项目03地块配建一所幼儿园,按照目前的划分,项目小学划分在东周小学的学区范围内,而初中学则划分在光明中学的学区范围内。
紧挨主干道 周边多学校
从云峰汇云会馆出来后,沿着光明大道向南步行10分钟后,便达到宏发万悦山名庭项目工地。
该项目位于光明大道与华夏路交叉口东南侧,在6号线光明大街站与凤凰城站之间。
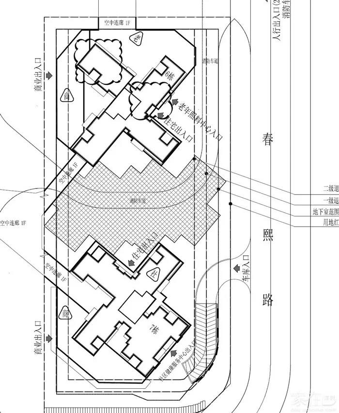
宏发万悦山的前身是万丈坡城市更新项目,总建面约25万平方米,如今分为4个地块,分两期开发,是集住宅、商业、写字楼于一体综合体。
其中01、02、03地块构成项目一期工程,建有7栋塔楼,二期为04地块,有4栋塔楼组成。
而此次在待入市名单中的住宅项目宏发万悦山名庭位于02地块,由四栋塔楼组成,分别是4栋、5栋、6栋和7栋。
4栋和5栋:
占地面积达4251.96平方米,计容总建面为2.2万平方米,其中住宅1.82万平方米,商业占2100平方米,总套数为175套,户型套内建筑小于90平方米的占147套;
6栋和7栋:
占地面积为4595.07平方米,计容总建面达2.44万平方米,其中住宅占2.08万平方米,商业为1200平方米,总套数达211套,户型套内建筑小于90平方米的占203套。
由此可知一期的万悦山名庭共386套房源,户型套内建筑小于90平方米共350套,主推建面87-139平方米的住宅。
目前,项目出地面大约10层左右,工地内也在加紧施工。
据项目保安介绍,营销中心已经建好,但目前尚未对外开放,具体时间需要等待官方通知。
从项目离开后,界面楼谈在周边走了一圈,发现万悦山项目与晨光食品饮料公司仅隔着一条华夏路。不过,周边还有怡景小区、美景花园以及国泰花园等小区,住宅较为集中。
综合来看,项目临近光明新区行政中心,周边有新城公园、玖龙台集中式商业、文体艺术中心等配套,整体区位和环境尚可。
而且项目毗邻地铁6号线和光明大道,未来出行不论是搭乘地铁或者自驾都比较方便,但由于太靠近主干道,未来或受噪音干扰。
除了交通外,项目周边还有多学校,与东周小学、深圳市光明中学以及深圳实验学校(光明部)直线距离不超过700米,未来教育问题能得到妥善解决。
目前,光明各个片区都在紧锣密鼓的实施基础建设,而光明大街附近旧改较多,并且比较集中。未来等到所有旧改项目建成后,片区迎来新的面貌,光明发展值得期待。
界面楼谈 扫描二维码,一起买房吧!



评论