
本周六(10月31日),南京河西南滨江豪宅融创滨江ONE正式公开售楼处,预计很快将迎来首开,引得许多富豪都前往参观了解。
而与此同时,同样备受富豪们关注的城中两大千万级豪宅金陵玖园和越城天地中心也即将首开,验资1000万起步!
南京的高端市场终于又要上新了!
01
放风价对标中国府!滨江ONE最快月底首开!
紧邻葛洲坝南京中国府的融创滨江ONE终于公开了售楼处。有意向的买房人无需预约,可直接前往项目售楼处进行参观。


滨江ONE前身即河西南G11地块。
今年4月30日,G11地块经过108轮竞拍后,被融创以40.1亿竞得,楼面价40260元/㎡,成为河西南第二大高价地。距离不远的万科G10地块(万科翡翠滨江)楼面价也达到了40196元/㎡。2幅地块均在4月30日的土拍中成功出让,并称为河西南“双子星”。
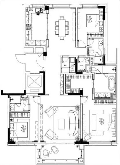
据悉,融创滨江ONE共规划9栋高层,层高29/30/31F,户型分布也已确定。项目最快在本月底首开1、6、8号楼,房源建筑面积为142、193、242㎡。放风价对标葛洲坝南京中国府,预计6万/㎡左右,是否有精装包还未可知,大概率首付8成。
户型参考:





据悉最小户型142㎡首开仅58套,项目预计在近期公开193㎡和242㎡的样板间,不过具体的精装标准还未公布。
融创滨江ONE项目紧邻葛洲坝南京中国府,周边还有保利大剧院、南京国际博览中心、青奥双子塔等地标建筑。
未来项目附近还覆盖正荣财富中心、金地中心、文旅商综合体华侨城欢乐滨江等多个综合体项目,配套十分优越。
02
验资1500万!金陵玖园正在申领销许!
城中已久未有豪宅入市,近日才传来武定门豪宅中冶锦绣珑湾将要首开的消息,这边玄武门豪宅金陵玖园也即将开局。

据最新消息,城中豪宅盘金陵玖园销许正在申领当中,预计验资1500万,首付未定(以实际销许为准)。项目主力户型200、330、440、515、600㎡,此前放风价6.5万-7万/㎡,总价1000万以上!
金陵玖园即城中G38地块,于2019年7月3日被银城竞得,成交总价25.1亿,成交楼面价25510元/㎡。

规划显示,项目拟建12栋5-7层住宅,1栋社区中心,1所小学以及若干商业配套。
其中配建的一所小学用地面积约9370㎡ ,建筑高度≤18米。将拟建1栋3、4层的教学楼以及操场,此前传言有望挂牌中央路小学或者北京东路小学分校(具体以官方公布为准)。

项目目前正在火热施工中,售楼处跟样板间已经建成,尚未公开。
此前曾有消息传言,金陵玖园项目将打造主城豪宅,最小户型200㎡,主力户型为350㎡。网络上曾流传着项目200㎡户型图,为3室4卫2厅,三开间朝南,南北通透,每个卧室都带有独卫。(最终以开发商公布为准)

金陵玖园位于城中板块玄武区玄武门街道中央路,紧邻玄武湖,位于1号线新模范马路和玄武门地铁站之间,相距不过800米,对面就是金茂广场,地理位置十分优越。
03
总价2500万起!中华门豪宅终于要来了!
时隔三年有余,越城天地中心终将迎来首开!

2017年2月15日,越城天地中心(中华门G98地块)经过395轮竞价,最终被招商以总价98.1亿拿下,达到最高限价,需现房销售,也是目前南京的总价地王项目。
据最新消息,中华门豪宅越城天地即将迎来首开,主力面积500㎡,总价2500万起售,下周开始样板间公开,验资1000万。

据悉,项目由招商蛇口、香港置地、碧桂园三家房企开发,总投资约160亿元。整个项目集住宅、酒店、商业、公园、博物馆等业态于一体,打造约60万方的城市中心低密建筑群落,将打造顶级豪宅作品。其中住宅包括600套左右新中式合院别墅,建筑面积约420-1100㎡,主力户型为420㎡、480㎡。

越城天地中心坐落秦淮水岸、明城墙下,附近有秦淮河、中华门、报恩寺、夫子庙、等历史文化建筑;并且周边交通商业都很便利,配套相当醇熟。
南京高端改善市场正全面开花,豪宅房价不断被刷新,成交量和供应量与往年相比也呈现出井喷之势。
距离2020年结束还有整两个月,还有多少高端项目正蓄势待发,值得市场期待。



评论