对于想要置业江北核心区的买房人,要注意了。
日前,江北新区官方网站官宣,江北核心区隧道口的启迪水木规划有变,快来一起了解一下吧。

01
此次调整的地块位于江北核心区隧道口,该项目是南京启迪智能科技城投资建设有限公司建设的启迪城项目。
项目地处南京浦口区顶山街道,北至镇南河路,南至浦口大道,西至浦滨路,其中D分区规划用地面积约52725.51 平方米。规划用地性质为 R2 二类居住用地,1.01 ≤ 容积率≤ 3.0,绿地率≥ 35%,60 ≤建筑高度≤ 120 米,建筑密度≤ 20%。

总建筑面积约232022.37 平方米,其中地上建筑面积约158176.23 平方米,地下建筑面积约73846.14 平方米。主要建设内容为高层住宅、配套用房、商业、配电房、地下车库及其他配套设施。
本项目于2020年03月24 日领取建设工程规划许可证 (证号:建字第 320111202010108 号)。
因甲方要求调整D-1#栋三十二层平面户型,调整后D-1#地上建筑面积增加1.77㎡,地上建筑面积调整为16497.01㎡,满足规范要求。
具体调整内容如下:
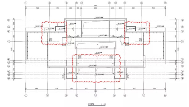
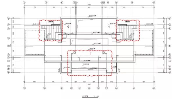
因甲方要求做如下修改:三十二层平面户型修改,原设计两 H 户型合并修改为一 J 户型,并相应调整机房层、屋顶层平面及立剖面。
三十二层平面户型修改,原设计两 H 户型合并修改为一 J 户型。
D-1#楼三十二层平面调整前

D-1#楼三十二层平面调整后

根据三十二层平面修改,相应调整机房层平面。
D-1#楼机房层平面调整前

D-1#楼机房层平面调整

根据三十二层平面修改,相应调整屋顶层平面。
D-1#楼屋顶层平面调整前

D-1#楼屋顶层平面调整后

根据三十二层平面修改,相应调整东立面。

因三十二层平面户型修改,相应调整南立面。

因三十二层平面户型修改,相应调整西立面。

因三十二层平面户型修改,相应调整北立面。

因三十二层平面户型修改,相应调整 1-1 剖面。

因三十二层平面户型修改,相应调整 2-2 剖面。

02
启迪水木滨江,位于江北核心区镇南河路横江大道交叉口,也是中央商务区与江北核心区双区叠加的热门项目。

旁边有雅居乐滨江国际、正荣润江城等热门楼盘。

启迪水木滨江仅剩余D1、D2、D6号楼共3栋楼待加推,面积98、130、160㎡,前期开盘均价31134-32187元/㎡,首付8成起,前期房源已售罄。


建筑面积约98㎡:三室两厅一卫
客厅、主卧、次卧三房朝南,户型方正;L型厨房,操作便捷。

建筑面积约130㎡:三室两厅两卫户型
客厅、主卧、次卧三房朝南,户型方正,采光好;客卫干湿分离,主卧带独立卫浴,隐私性更好。

在精装打造上,项目地暖、新风、中央空调三大件齐配,其中地暖为德系威能、博世或菲斯曼品牌交付;新风系统为兰舍或百朗品牌交付,中央空调为国产海尔、美的或海信品牌交付;此外,项目还采用了方太、科勒等品牌。
样板间图片一览:





03
除了启迪水木滨江外,江北核心区今年的上市量将呈现井喷状态。
其中不乏比较热门的楼盘,也是关注人数较多的。

中交G12:
江北核心区重要地块中交G12地块传来重要消息,项目或将打造大平层产品,160㎡起步。
此次,核心区中交G12地块的部分户型疑似曝光(具体以开发商公布为准),从曝光的户型来看,妥妥的大平层,大横厅,这也意味着江北真正的临江大平层终于要来了。

从已公布的户型来看,此次公布的户型面积倒是不清楚,可能是160㎡,或者是180㎡,具体以开发商公布为准。
曝光的户型为四室两厅两卫,双向阳台,基本每个功能区都有飘窗,其中主卧是套房设计,带有独立衣帽间、卫生间。
在功能分区来看,基本和时下流行的大平层户型一致,带有独立玄关,飘窗的设置可以俯瞰江景。
双向阳台的设计,更加注重品质生活,尤其是家政阳台的设置,极大程度提高了居住品质。
扬子江金茂悦C4地块:
扬子江金茂悦剩余C4地块4栋楼待加推,短期内暂无上市计划。
江畔都会上城:
江畔都会上城仅剩10号楼最后1栋住宅,加推时间待定,户型建筑面积为89、129㎡,推完即收官。

长江时代1314、长江时代1516:
长江时代1314、长江时代1516是由招商、保利、电建、新希望、颐居联合开发,共打造约2300套房源,主力户型建筑面积105、130㎡。

作为江北核心区首批“双限”楼盘,长江时代1314、长江时代1516的毛坯限价30750元/㎡,加上基础装修包及精装包,未来预计价格在3.4万/㎡左右。

通宇林景润园:
项目前身为江北核心区G10地块,位于南京市浦口区顶山街道,在2019年9月12日,经过了37轮竞拍后,被通宇以总价13.8亿拿下,楼面地价为22273元/㎡。

项目拟建总建筑面积约90000平方米,其中地上建筑面积约62000平方米,地下建筑面积约28000平方米。

通宇林景润园共规划了9栋18层高层住宅,层高2.95米,前后平均楼间距为43米。主要建设内容为高层住宅,配套用房,地下车库及其他配套设施。

可以预见的是,今年核心区新房市场将呈现井喷状态,精装升级包或将成核心区新盘常态。
新房市场供应量非常充足,未来还将有江畔都会上城、花语熙岸府、扬子江金茂悦、中交G12等。
评论