今天(1月30日),南京楼市又出新鲜事,一起来看看吧。
1、刚刚,江北核心区纯新盘长江时代四胞胎项目公开户型,建筑面积约105㎡、128㎡,预计明天(1月31日)正式公开售楼处。
2、今天(1月30日),溧水重磅新盘保利里城溧水G40地块正式公布案名,案名为礼樾江山,项目将于近期公开城市展厅,地点为丽水海乐城。
今天(1月30日),江北核心区纯新盘长江时代四胞胎项目,即为长江时代1314、长江时代1516项目户型正式公开,户型建筑面积约105㎡、128㎡。
值得注意的是,长江时代1314将和长江时代1516共用一个售楼处,项目预计明天(1月31日)正式公开售楼处。
至于大家都最为关心的价格方面,作为“双限”地块,长江时代1314、长江时代1516项目毛坯限价30750元/㎡,全装修+升级装修包,预计在3.4万/㎡左右,预计将于3月开盘。
首付方面,大概率5-8成首付,具体以开发商公布为准。项目不挖地下室,这就意味着每层价差不大。
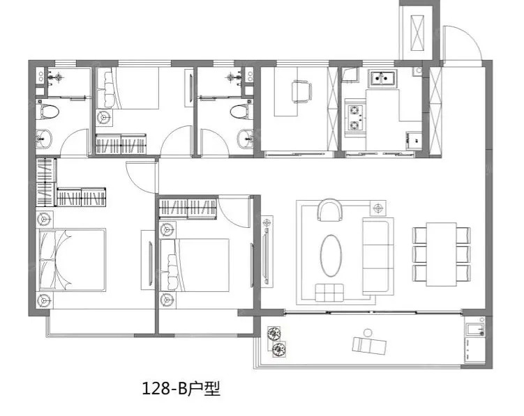
户型图如下:
从此次公开的户型不难看出,江北核心区的住宅逐步迈向改善时代,长江时代1314、长江时代1516的户型也是如此,其中,建筑面积约128㎡的户型更是迎合时下年轻人的喜好,横厅户型,三开间朝南,且都是双阳台,妥妥的改善户型。
建筑面积约105㎡,该户型打造三房两厅两卫。
主卧套房、餐客厅一体化、南向双阳台设计、三开间朝南,开间近10米,采光很好。
建筑面积约128㎡,该户型为四房两厅两卫。
采用南向双阳台设计,客餐厅采用了6.6米大横厅设计,南向两个卧室均有大飘窗,保证房间的采光、空气流通。
长江时代1314、长江时代1516是由招商、保利、电建、新希望、颐居联合开发,共打造约1900套房源。
招商G13备案名为雍澜悦府、电建G14备案名为雍澜和府,新希望G15备案名为宸光府,保利G16备案名为琨玉府。
招商G13地块成交楼面价23290元/㎡:拟建7栋24-26层的高层住宅,毛坯销售最高限价30750元/㎡。

电建G14地块成交楼面价23324元/㎡:拟建6栋26层的高层住宅;宅及商业、配套用房、地下车库及其他配套设施,毛坯销售最高限价30750元/㎡。
新希望G15地块成交楼面价21397元/㎡:拟建5栋21-23层的高层住宅;地块毛坯最高销售均价都是30750元/㎡,全装修标准将不高于32750元/㎡。
保利G16地块成交楼面价21506元/㎡:6栋23-24层的高层住宅。地块毛坯最高销售均价都是30750元/㎡,全装修标准将不高于32750元/㎡。
可以预见的是,今年江北核心区新房市场将呈现井喷状态,精装升级包或将成核心区新盘常态。
新房市场供应量非常充足,未来还将有江畔都会上城、启迪水木滨江、花语熙岸府、大华核心区G11地块、中北盛业核心区G03地块等。

今天(1月30日),溧水重磅新盘保利里城溧水G40地块正式公布案名,案名为礼樾江山。
礼樾江山位于溧水区永阳街道,秦淮大道以东、水建路以南、仪凤北路以西、中山东路以北。
总用地面积约43232.5平方米,总建筑面积约127949平方米,其中地上建筑面积约95111.5平方米,地下建筑面积约32837.5平方米,容积率约2.2,建筑高度约52.15米,建筑密度约18%,绿地率约31.2%。
设计由高层住宅、低层商业及社区配套组成。
根据规划显示,礼樾江山拟建13幢高层住宅,除了1#为16F之外,其余12幢住宅均为17F。
项目自带商业,2#为其商业、党群和养老用房,在小区中部有面积2214.78㎡的公共绿地。在13#和12#的中间拟建物业、消控、快递用房。
礼樾江山由保利里城和碧桂园两家房企联合开发,碧桂园操盘。
从周边配套上来看,礼樾江山紧邻地铁S7号线中山湖站、顾家欧亚达商业广场、溧水区实验小学中山东路校区、秦淮源公园等配套。
目前,该地块已经开始动工,并且,项目预计将在近期公开位于海乐城的展点,4月公开示范区,同样也是暂定于4月首开。


评论