
今日,紫东热盘深业青珑上府终于迎来大收官!位于江北核心区的天宸江樾&天宸云筑今日也公开了售楼处和样板间。除此之外,颐和源璟预计7月加推,G26、G36地块迎新进展,规划设计方案批前公示发布,河西青奥村也即将推出最后一栋G栋,感兴趣的小伙伴可以关注一下!
1、深业青珑上府摇号结果出炉
紫东热盘深业青珑上府摇号结果出炉,卖完即收官。今天(7月5日)上午7点签到,8点18分开盘。开盘地点在中央路201号南京威斯汀大酒店9楼宴会厅。1、3、5、9号楼是项目的收官楼栋。共209套房源,其中对人才优先供应房源63套,无住房家庭保障房源数63套。
6月16日,紫东核心区深业青珑上府领取项目1、3、5、9#号楼,户型建筑面积98、127、142㎡。精装交付,销许均价区间28383-31569元/㎡。整体均价29970元/㎡。预计今年11月交付。首付依然5成,验资150万。
本次项目加推的户型建筑面约98㎡、127㎡、142㎡,除建面约98㎡户型是三房外,其他两种户型均是四房。

户型特点:建面约98㎡的三室两厅两卫户型,对于刚需群体非常友好,总价相对较低,属于项目购买最低门槛。
该户型全明设计,主卧为套房设计;主卧跟南向侧卧均自带飘窗,居住舒适性强;南北双阳台+双卫设计;餐客厅一体,空间灵活;U型厨房,动线合理。

户型特点:从前期去化看,建面约127㎡属于项目的明星户型,在改善客群口碑非常好,四房设计适合四代同堂家庭,同样也非常适合作为马上到来的三胎家庭的入门款!
该户型大开间短进深设计,南向双开间阳台,约270°广角瞰景视野;四开间朝南,即便是二胎出生,也能拥有阳光房。主人、儿童、老人都拥有拥有各自独立的空间和活动区域,互不干扰,私密安静。

户型特点:作为项目的至尊户型,建面约142㎡的四室两厅两卫对于即将到来的三胎家庭,空间体验感跟居住舒适度,几乎堪称完美!
该户型不仅仅是建面约127㎡的户型放大版,其拥有超大的北向阳台,该阳台与餐厅客厅以及南向超广角阳台相连接,整个室内采光、通风无惧,属于正在的南北通透型;也因于此,整个户型的空间感跟视觉感受优越。这在目前的楼市产品排行中,该户型确实名列前茅,属于佼佼者!
此外,与市面上盛行的“升级精装包”不同的是,项目不但没有推出升级精装包,甚至精装交付的标准也很高!首先自带中央空调、地暖和新风系统三大件,并且品牌选用方面基本都采用摩恩、科勒、格力、菲斯曼等国内外知名品牌。
根据南京网上房地产显示,该项目自去年12月首开入市,共计只领取过三次项目销许,当时项目首开首付比例要求3成,无验资要求;此后本月初项目二次开盘就已将首付比例提升至5成,并且验资150万。
看到开盘盛况后,不经感叹有实景现房跟优质学区的buff加持,依旧很香!
2、天宸江樾&天宸云筑公开售楼处、样板间
今天,江北核心区的天宸江樾、天宸云筑两家楼盘公开售楼处、样板间。天宸江樾预计本月首开1-4号楼,户型建面约101、127、135㎡,天宸云筑预计本月首开1-3号楼,户型建面约112、127、142㎡,两个项目均为带装修交付,放风价3.6万/平(包含升级包2000元/平左右),暂定验资200万,首付8成起。
天宸云筑在新浦路与万寿路交汇处,项目整体规划了6栋18-26层高层住宅,户型建面约112、127、142㎡三种。

户型一览:



天宸江樾在天浦路与迎江路交汇处,共规划打造3栋21层和5栋23层的高层住宅,该小区中间会打造一个约7000㎡的中央花园,而户型面积段较小些,分101、127、135㎡三种。

户型一览图:



需要注意的是,两项目虽然使用同一个售楼处,但是两项目具体的楼盘位置并不在一起。

3、颐和源璟7月即将加推
颐和源璟预计7月加推B10# 、B07#两栋,加推房源建筑面积为115、125、143、162㎡,前期销许均价为56566元/㎡,精装升级包3000元/㎡,物业为绿城物业。

根据规划,项目共建15栋30-32层住宅,户型115-188㎡,共计约1476套住宅。定位为河西中部高端改善豪宅,打造的是颐居建设最高端的“颐和源”系产品,从外立面来看,石材+铝板+幕墙材质,很有质感。

项目内还建有约2000㎡的地下会所,包含无边泳池、健身房、瑜伽室等。项目还自带一栋7层社区中心,后期能满足客户的多种生活需求。
值得注意的是,项目周边是南师附中新城小学本部、新城初中本部、金陵中学河西分校、建邺高中和南京高等职业技术学校,教育资源丰富。周边产业众多,有南京新城科技园、紫金科技等。
此外,项目周边还在建地铁7号线梦都大街东站(直线距离约100米),周边金鹰、华采等商场聚集,还有奥体中心、保利大剧院、江苏大剧院、明基医院等生活配套,十分便利。
户型一览:



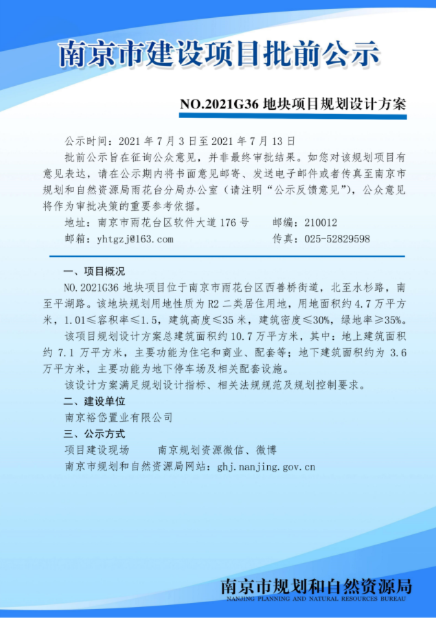
4、G36地块规划设计方案批前公示发布
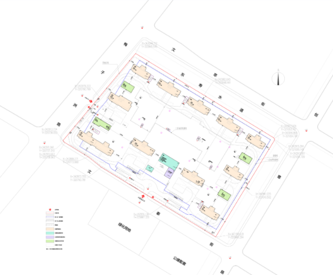
南京规划局近日发布万科岱山新城G36地块规划设计方案批前公示,项目规划用地面积约4.7万方,容积率≤1.5,建筑高度≤35m,建筑密度≤30%,绿地率≥35%。
项目地上主要建设14栋11层住宅及商业等配套服务用房,地下主要建设地下车库及其它配套用房。项目毛坯房限价30000元/㎡,加上升级装修包等因素,未来上市价预计将达3.4万/㎡。
5月20日,经过36轮报价,两桥G36地块拍至最高限价,待摇号,总价16.4亿元,成交楼面价23117元/㎡,未来毛坯房销售限价30000元/㎡;刷新了河西南岸的最高地价!后经5月22日摇号,被万科拿下!

和万科G36地块一路之隔的是改善盘绿城云栖玫瑰园,在售户型建筑面积约128-175㎡低密度住宅和165-400㎡叠院,整体均价约33000-35000元/㎡。
5、G26项目地块设计方案公示
南京规资局近日发布了No.2021G26地块规划设计方案批前公示,该项目规划打造11栋31-31F高层住宅及相关配套设施。
该地块是双限地块首次落地江心洲,于2021年5月20日经过10轮竞价,由招商、南通瑞城竞得,成交总价379000万元,楼面地价30247元/㎡,未来毛坯限价40783元/㎡。
该项目位于生态科技岛南部,西隔绿地至梅子洲路,北隔绿地水系至文萃街,东隔绿地水系至创意路,南至文泰路,用地面积为44750.21平方米,容积率1.0<容积率≤2.8,60≤建筑高度H≤100(m),建筑密度≤20%,绿地率≥35%。
据规划,该项目总建筑面积约16.88万平方米,其中:地上建筑面积约12.53万平方米,主要功能为住宅及配套设施;地下建筑面积约4.35万平方米,主要功能为机动车库、非机动车库及配套辅助设施。
6、河西青奥村即将推出最后一栋
河西神盘青奥村下半年即将推出最后一栋G栋,共52套房源,全部为301㎡的五房户型,项目前期开盘均价3.7万/㎡(含装修),首付3成起,人才和普通人都可以买。
青奥村位于河西新城滨江沿岸,毗邻南京青奥中心,附近配套有保利大剧院、江苏大剧院,紧靠青奥村小学、河西儿童医院、河西国际医院等,学区暂时为致远外小乐山路小学和致远初中代招。

项目建筑外立面采用米白色真石漆+玻璃幕墙等,颜值高。
旁边就是南京豪宅葛洲坝中国府,精装均价6.4万/㎡。附近还有万科、融创两大豪宅,精装均价5.85万/㎡。

想要了解更多楼市资讯,探讨楼市最新动态,欢迎关注微信号:ssjzyw



评论