
本周五,本站刚刚统计过今年南京主城“520”首批“两集中”供地土拍中出让的地块,共计44幅地块,已有28幅地块规划出炉。
7月30日,又一楼盘也公布了规划方案,即今年南京土拍中最火爆的正方新城龙光G44地块。
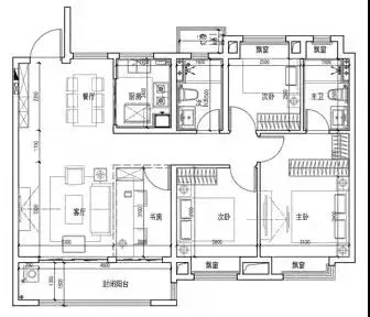
01、正方新城G44规划出炉,拟建9栋25-27F住宅
7月30日,江宁区人民政府官网上公布了龙光正方新城G44地块的规划设计方案,值得注意的是,该地块于今年520南京“两集中”供地土拍中产生,拿地仅两个多月,节奏不可谓不快。
龙光正方新城G44地块位于江宁区双龙大道以北、新前路以西。该地块位于东善桥集镇中心区中部的生活配套组团,毗邻正方大道、将军大道等城市主干道,距离地铁S1号线正方中路站仅百米,交通路网发达。
正方新城龙光G44地块用地面积为36859.93平方米,1.0<容积率≤2.5,建筑高度≤80m,建筑密度≤20%,绿地率≥30%;项目总建筑面积约13.3万平方米,其中地上建筑面积约9.2万平方米,地下建筑面积约4.1万平方米。
根据规划,项目共打造9栋高层,其中1栋25层、1栋27层、7栋26层。将由龙光和杭州滨江联合开发,龙光操盘,从效果图来看是妥妥的杭派产品风格,颜值在线!
该项目于今年5月20日的土地集中出让中触顶摇号,最终由龙光竞得,成交总价12.3亿,成交楼面价13348元/㎡,最高毛坯限价2.42万/㎡。
按照目前江宁市场的情况,项目预计后期将配备2000元/㎡的基础精装包+1500元/㎡左右的升级精装包,未来上市的价格预计在2.8万元/㎡。
而目前正方新城内新房的价格大约在2.2-2.3万元/㎡之间,这意味着未来该项目的入市,将捅破正方新城的房价天花板。
02、区域配置迭新中,未来可期
作为江宁新兴改善板块上秦淮的下一站,正方新城与其共享产业配套,相较于江宁滨江、禄口、横溪等板块,区位优势还是较为明显的。
首先,产业方面,区域内大面积的科研用地。
作为首批国家级软件园区、中国最大规模软件产业园之一的江苏软件园,目前,园区内已有中兴、微软、腾讯、IBM、HP、动力工厂、哈工大云圣、迈瑞医疗等,还有腾讯华东云计算基地、中国电信(南京)物联网运营和创新中心两个百亿重量级产业在建。
交通方面:
正方新城占据三横四纵两线优势。三横:绕越高速、正方中路、银杏湖大道,可快速通达全城。四纵:机场高速、将军大道、牛首大道、宁丹大道,连通南京南站、禄口机场等。
两线:板块内有地铁S1号线、周边还有规划中的公交换乘总站,而且周边还有南京绕越高速、正方中路等快速连接主城。另外,未来地铁5号线的南延线(预计2023年建成)将直接延伸到正方新城软件园,区域出行便捷度再升级。
教育方面:
区域内有银城幼儿园、以及在建的拉萨路小学江宁分校,拉小分校已开学, G44地块东侧规划小学、国际中学等配套设施,计划将包括地块在内的整个片区打造为“未来社区”。
区域内还有吉山软件园幼儿园,未来三江学院新校区将搬迁到江苏软件园片区,未来学校的信息技术、计算机专业还可以直接院地合作,孵化技术,有利于人才发展,产业升级。
医疗方面:
医疗配套上主要以社区卫生服务站为主,缺乏大型的综合性医院。
商业方面:
目前正方新城板块商业只有部分社区底商,仅能满足业主日常生活需求。但此前出炉的正方中路地铁站规划中提到未来S1号线正方中路站将建成大型换乘中心,将规划商业、酒店、住宅、超市、办公、学校、公园等综合配套,非常值得期待。
新房市场:
目前区域内除了龙光G44外,还有上宸云际、山语春风、德信星宸、联发云启、荣盛隽峰雅苑在售。
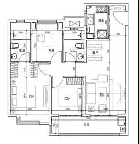
上宸云际
项目前身是旭辉G03地块,紧邻龙光G44项目,周边区位条件基本一致。
该项目早已于6月4日公布了规划方案。根据规划显示,项目拟建9栋25-27F住宅及商业、社区养老活动用房等配套。据悉,项目将由旭辉和新城联合开发,新城操盘,预计三季度上市。
上宸云际打造三大户型,分别为89㎡三房两厅一卫、约100㎡三房两厅两卫、约120㎡四房两厅两卫,都是双阳台户型。
该地块在今年2月的土拍中被旭辉摇号拿下,成交总价15.3亿元,成交楼面价13200元/㎡,未来毛坯限价24100元/㎡。
预计全装修限价2.61万/㎡,再加上精装包,预计均价在2.8万/㎡左右,具体价格要开盘才知道。目前项目已在景枫公开城市展厅,项目正在建设中,预计下月公开售楼处及样板间,最快9月开盘!
目前区域内还有山语春风、德信星宸、联发云启、荣盛隽峰雅苑在售。
山语春风目前在售带装修房源,主要位于1、2#,户型建面约79、89㎡,销许均价约21000元/㎡。
德信星宸目前主力在售2、12、20号楼,户型建面约89㎡、107、125㎡,基础装修价格约21752元/㎡,升级包1000元/㎡。
联发云启目前在售2-10、13号楼房源,精装交付,户型建筑面积约98、110、125㎡,销许均价约23540元/㎡,拟交付时间为2023年3月底。
荣盛隽峰雅苑目前在售少量低密多层一楼和顶跃房源,户型建面约115、130、150、178㎡,现房销售,均价约22969元/㎡。
放眼整个南京楼市,随着板块热度的上升,曾经作为刚需首选之一的江北板块也已不再是刚需“上车”首选。
而另一刚需重地的江宁板块,去年九龙湖就已上涨至4万/㎡;上秦淮也已至3.6万/㎡,甚至已经新房市场即将断供;随着新方山理念的提出,区域也已涨至3万/㎡;百家湖作为江宁核心,也早已“高攀不起”......
刚需客群只能将目光看向更远的禄口、横溪、湖熟、滨江以及正方新城板块。
相较其他几个板块,正方新城可谓是性价比最高的,价格近年来一直稳定在2.3万/㎡,并且区域没有致命的短板,板块目前虽然缺少大型商业综合体跟三甲综合性医院,但是凭借优越的交通条件,开车10分钟,便可直达上秦淮砂之船、将军大道、九龙湖,共享区域内的优质资源。
并且今年以来,正方新城区域的市场关注度跟热度都在迅速爆升!从今年区域内出让的两次地块土拍便可窥探一二。
首先是今年2月,正方新城G03地块经过57秒26轮报价直接触顶,后被旭辉摇中;接着5月20日土拍中,正方新城G44被78家房企争夺,热度甚至超过同批出让的河西地块,这也是南京首批“双集中”中签率最低地块,最终被龙光幸运拿下。
一直以来,土拍热度都是楼市板块热度的风向标,众多房企的争夺,无疑是对于区域内前景的看重和认可。
未来随着这两个纯新项目的入市,正方新城这片沉寂了四年之久的新房市场,又将掀起怎样的波澜,界面楼市将持续关注。
想要了解更多楼市资讯,探讨楼市最新动态,欢迎关注微信号:ssjzyw



评论