近期,疫情好转,楼市恢复,各大楼盘也不断传出新动态。前几日,位于江心洲的G26项目规划有变。除此之外,新玄武板块内即将上市的几家热盘预计首付也将提高到6-8成。
Part 1
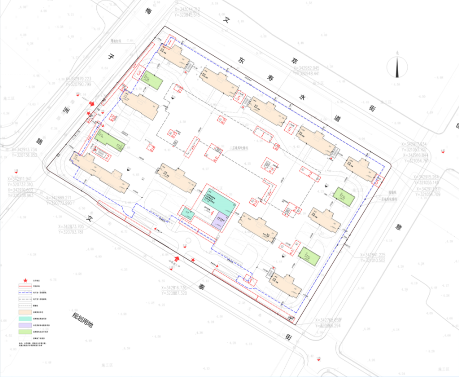
近日,南京规划与自然资源局官网公示了一则规划更变的公示《NO.2021G26地块项目规划许可变更批前公示》。
此次调整的地块位于江心洲,于2021年5月20日经过10轮竞价,由招商、南通瑞城竞得,成交总价379000万元,楼面地价30247元/㎡,未来毛坯限价40783元/㎡。
该项目规划打造11栋31-31F高层住宅及相关配套设施。于2021年7月取得建筑工程规划许可证(建字第320105202100188号)。

根据施工图、人防、消防等审查要求,现对该项目规划设计方案及表达进行深化调整,具体如下:
(1)地下车库外轮廓、小区西侧及南侧围墙线型、西侧门卫尺寸及位置优化调整,小区出入口东侧围墙外增加地面共享单车停车区域;
(2)出地面风井、楼梯、坡道尺寸及位置优化调整,局部新增出地面风井和楼梯;
(3)小区西侧配电站1附近增加垃圾收集点,地库东侧坡道附近新增地下垃圾房;
(4)4#楼建筑高度、功能分布优化调整;
(5)9#楼与10#楼之间、10#楼与11#楼之间山墙间距调整,6#楼退让西侧红线距离、12#楼退让东侧红线距离调整。
变更调整后各项规划指标均符合法律法规要求。
变更前总平面图:

变更后总平面图:

该项目位于生态科技岛南部,西隔绿地至梅子洲路,北隔绿地水系至文萃街,东隔绿地水系至创意路,南至文泰路,用地面积为44750.21平方米,容积率1.0<容积率≤2.8,60≤建筑高度H≤100(m),建筑密度≤20%,绿地率≥35%。

据规划,该项目总建筑面积约16.88万平方米,其中:地上建筑面积约12.53万平方米,主要功能为住宅及配套设施;地下建筑面积约4.35万平方米,主要功能为机动车库、非机动车库及配套辅助设施。


目前,该项目周边只有仁恒江湾世纪、璞境两家新盘在售。
仁恒江湾世纪售楼处于8月18日正式恢复接待,售楼处需要提前预约,持48小时核酸检测才能参观。项目将在三季度加推80套精装房源,建筑面积约300-400㎡。

璞境将在三季度加推最后2栋楼,即2、3#楼,共约200套精装房源,户型建筑面积约143㎡、166㎡。预计首付8成,验资500万起,前期均价49987元/㎡,另加3500元/㎡的升级装修包可选。

Part 2
据置业顾问消息称,紫金悦峯已经正式恢复接待,预计近期加推3、6、8、12号楼,共计308套房源,户型建筑面积段约87-143平,精装修交付,首付不低于6成。
此前,该项目一共开盘2次,5月14日,紫金悦峯首开,共3003组买房人报名,整体中签率约7%。据悉,开盘仅约2小时,首开房源便全部售罄。首开房源为A地块11号楼和C地块2号楼,户型建筑面积约81、87、119、121、133㎡,共计235套房源,销许均价43748-45860元/㎡,首付4成。
6月10日,紫金悦峯开盘,本次开盘共2457组买房人报名,综合中签率10.2%,开盘当天售罄。加推房源为A地块13号楼和C地块1、4号楼,户型建筑面积约87、104、119、121、129㎡,共计250套房源,销许均价43748-45966元/㎡,首付4成。
前两次开盘首付均为4成,而接下来即将到来的第三次开盘,即收官,首付提高到6成,将一次性加推剩余房源。

同在新玄武板块内近期加推的楼盘中,玄武宝龙城的首付门槛也提高了。
玄武宝龙城预计近期加推6、8号楼,预计首付8成(具体以最终开盘通知为准),户型建筑面积约109㎡,共176套房源。此前,玄武玄武宝龙城一共有2次开盘,首付一直在涨!首开4成,第一次加推6成,而近期的加推直接涨到8成!
5月8日,玄武宝龙城在香格里拉酒店首开,3003组买房人抢215套房,整体中签率约7.2%,开盘约两小时售罄。开盘房源为D1、3、4号楼,户型建筑面积约109、139㎡,共计215套房源,销许均价44063-45398元/㎡,首付4成,两梯两户,拟交付时间为2023年10月31日。
5月29日,玄武宝龙城开盘,2657组购房者参与报名摇号,整体中签率约9.3%,距离首开不到3个星期,而这次的首付直接提高到6成,开盘当天售罄!开盘房源为2、5、7号楼,户型建筑面积约109、139㎡,共计248套房源,销许均价44209-44429元/㎡,两梯两户,拟交付时间为2023年12月31日。

再看板块内二手房市场,据链家网显示,板块内二手房均价最高的是中海玄武公馆,均价为57608元/㎡。

根据近几次的成交记录可以看出,最近一次的成交单价突破6万/㎡,而4月份的一次成交也近6万/㎡。

近两年,新玄武凭借坐拥主城优越区位,交通便捷,商业、学校一应俱全,成为不少家庭置业首选的板块之一。
根据规划,“新玄武”片区内拥有1340亩可供深度开发的土地储备,将建设210万平方米的商业综合体、140万平方米的中高端住宅和60万平方米的科技研发载体。总规划建设用地60多幅,总建设体量达430万平方米。
教育资源:
名校资源加持,如前期的中海玄武公馆、星河天赋、玄武映,靠着双学区的加持,项目十分火爆,这个双学区就是南师附小分校、科利华中学分校。
商业资源:
目前,板块内有常发广场、万谷慧生活广场,未来还将有和昌魔法森林(配建商业)、宝龙城等大型商业配套。
交通配套:
目前,板块周边有地铁1、3号线,项目附近还有在建的地铁6号线(预计2024年通车)、9号线(预计2023年通车),共四条地铁线路环绕,交通方便。

产业配套:
目前,已经有铁北创新孵化集群、电子城国际数码港、中德商务中心、科技之窗总部经济产业园、律政产业园等一大批高端产业项目先后入驻。

由此,政策的扶持、完善的配套,尤其是双地铁+双学区的加持,使得板块内的二手房市场屡创新高,但只苦于板块内新房供货量实在是少。
除了上面提到的紫金悦峯和玄武宝龙城即将加推外,目前板块内还有即将首开的复地明日之城和待上市的招商G24两大纯新盘蓄势待发!
招商G24:2021年5月20日,经过158轮竞拍(未触顶),招商以总价889000万元拿下新玄武G24地块,未来新房毛坯限价43555元/㎡。
复地明日之城预计近期首开6-9号楼,户型建筑面积约125、140、169㎡,放风价4.6-4.7万/平,首付基本确定8成(具体以开盘最终通知为准),两梯两户。

想要了解更多楼市资讯,探讨楼市最新动态,欢迎关注微信号:ssjzyw
评论