
今天,南京又有多家纯新盘案名曝光!
其中,新城三大新盘集中亮相!其汇通路G46地块案名定为铭著风华,大校场G27地块案名定为翡丽铂湾,仙林湖G43地块案名定为云樾观山;据最新消息,雨花人居森林华侨城路劲G41地块案名预计暂定铂玥江南;紧邻大悦城的银城G53综合体项目,也将于明日迎来5个城市展点的开放,并且该项目案名也已公布,定为“金陵星图”!
与此同时,江宁人民政府官网又批复了三家纯新盘的案名!分别是龙光正方新城G44地块、中南城东G83地块以及华宇淳化G49地块!
据本站不完全统计,近期南京共计有23家纯新盘案名公布!
1、新城三盘联动,案名公布
今日,新城南京三盘联动,案名齐公布,分别是汇通路G46地块、大校场G27地块以及仙林湖G43地块!
铭著风华(汇通路G46地块)
8月30日,江宁区人民政府刚公示了项目的备案名为“铭著风华嘉苑”。
今年5月21日,G46地块经过44轮竞价,以总价19.9亿元被新城竞得,楼面价22595元/㎡,未来该地块毛坯限价28500元/㎡。根据规划条件,项目拟建11栋住宅,在项目东侧规划有商业街。据悉,项目户型面积段为97-135㎡,由新城操盘,预计最快年内上市。
翡丽铂湾(大校场G27地块)
7月底,南京市规划和资源局官网公示了深圳振业&新城G27地块的规划设计方案。
根据规划,项目拟建5栋18-19层住宅楼及商业等相关配套辅助设施。
今年5月,经过5轮报价,大校场G27地块经过5轮报价拍至最高限价,待摇号,总价24.9亿元,最终被深圳振业竞得,成交楼面价约34600元/㎡,未来毛坯房销售限价45000元/㎡。值得注意的是,该项目是深圳振业是首进南京落下的第一子,随后该项目确认将与新城联合开发,新城操盘。
云樾观山(仙林湖G43地块)
8月初,项目的规划设计方案出炉!并且根据当时的消息,项目预计四季度上市,10月公开售楼处。
根据规划,项目将打造12栋8-11层的小高层跟7栋17-20层的高层产品。该项目周边的环境条件优越,小区内部的景观轴线与外部的自然山体有机结合,是目前仙林湖不可多得的优质地块。
今年5月南京首场集中土拍中,仙林湖G43地块,经过摇号,被新城以总价38.1亿元竞得,成交楼面价25543元/㎡,未来毛坯房限价33800元/㎡。
值得注意的是,这是新城在新城香悦澜山、新城璞樾和山后再次回归仙林湖。据悉,G43地块由新城、路劲、联发联合开发,预计最快四季度上市。
G43地块毛坯限价33800元/㎡,考虑到基础装修+升级装修因素,预计均价或将达到38000元/㎡左右。根据链家网显示,目前仙林湖板块的二手房最高的当属高科荣境,房价最高已达49183元/㎡。
仙林湖近几年新房稀缺,但今年9月份仙林湖将再出让一幅宅地——NO.2021G80地块。
该地块挂牌起始价227000万元,最高限价260000万元,起拍楼面价为19543元/㎡,最高楼面限价22383元/㎡,毛坯限价34000元/㎡,需配建租赁住房面积≥5510平方米,开发资质要求二级及以上,不得合作开发。
2、金陵星图
根据融创南京官方视频号显示,银城&融创浦口城南中心G53综合体项目的案名定位“金陵星图”!并且明日(9月10日),项目将开放位于瑞斯丽酒店、河西万达、白马生活广场、新城市广场、金盛田广场的5大城市文化展厅!
G53地块于今年5月被银城以42亿底价直接拿下,成交楼面价6068元/㎡,未来毛坯限价28000元/㎡。据悉,项目住宅产品部分将由银城和融创分别操盘,其中融创负责的部分住宅预计四季度上市,银城操盘的部分项目预计明年上市。
7月底,项目规划方案出炉!根据规划,项目分B、D、F、 K(地下)、L(地下)五个分区,其中住宅产品共规划16栋25-26层高层产品,户型面积段为85、110、140㎡,精装修交付,价格预计3.25-3.4万/㎡,首付比例也放风为6成,具体以开发商最终通知为准。
根据地块出让条件,该项目除了建设住宅外,项目未来将规划建设办公、公寓、商务型酒店、商业超市、演艺中心场馆、图书馆、科技馆、市民中心及规划馆等多种业态。
而与金陵星图一河之隔的天悦锦麟项目(大悦城&新希望G52地块),也刚于上周公布了项目案名已经临时城市展厅。
对于浦口城南中心而言,金陵星图跟天悦锦麟项目均是今年的重磅项目,因为未来浦口城南中心的重磅商业中心就在于此!
自浦口城南中心板块亮相以来,区域内先后有6个项目,包括之前的弘阳望江悦府、正荣润棠府、滨江嘉品、星河时代,以及金陵星图和天悦锦麟项目。
新房价格上,在金陵星图和天悦锦麟两大项目之前,弘阳望江悦府、正荣润棠府、滨江嘉品、星河时代房价集中在2.9-3.1万/㎡左右;
首付比例上,早期的首付均是3成,这一度曾是与核心区竞争的价格优势;今年6月,星河时代和滨江嘉品开盘,要求5成首付,7月正荣润棠府开盘要求5成首付,如今金陵星图和天悦锦麟放风6成首付,可见上车门槛越来越高!
目前,板块内弘阳望江悦府、正荣润棠府和滨江嘉品都是尾盘在售,星河时代预计9月加推。
望江悦府即将清盘,目前还有少量底跃在售,全装修销许均价23282-30388元/㎡,户型建筑面积约148-249㎡,带装修交付,另有升级装修包可选。
正荣润棠府在售少量底跃房源,全装修销许均价29477-30323元/㎡,具体一房一价,另有2500元/㎡升级装修包,户型建筑面积约175-245㎡。
滨江嘉品即将清盘,目前仅剩少量底跃在售,全装修销许均价29570-30313元/㎡(可加1300-1400元/㎡装修包),具体一房一价,户型建筑面积约157-227㎡,带装修交付。
星河时代预计9月加推4号楼,共116套房源,户型建筑面积约89、108㎡,全装修销许均价29366元/㎡,另有2165元/㎡升级装修包可选。
随着2大综合体项目的亮相,城南中心将迎来新房源供应,缓解板块”房荒“,但同时,城南中心的房价、首付或将进一步提高。
3、玖华府
根据江宁人民政府显示,龙光正方新城G44地块案名定为“玖华府”!
7月30日,项目规划设计方案出炉!根据规划,项目共打造9栋高层,其中1栋25层、1栋27层、7栋26层。将由龙光和杭州滨江联合开发,龙光操盘,从效果图来看是妥妥的杭派产品风格,颜值在线!
该项目于今年5月20日的土地集中出让中触顶摇号,最终由龙光竞得,成交总价12.3亿,成交楼面价13348元/㎡,最高毛坯限价2.42万/㎡。
按照目前江宁市场的情况,项目预计后期将配备2000元/㎡的基础精装包+1500元/㎡左右的升级精装包,未来上市的价格预计在2.8万元/㎡。而目前正方新城内新房的价格大约在2.2-2.3万元/㎡之间,这意味着未来G44入市将捅破正方新城的房价天花板。
目前区域内在售项目有山语春风、德信星宸、联发云启、荣盛隽峰雅苑在售,以及与G44紧邻的纯新盘-上宸云际项目。
上宸云际
项目前身是旭辉G03地块,紧邻龙光G44项目,周边区位条件基本一致。该项目早已于6月4日公布了规划方案。根据规划显示,项目拟建9栋25-27F住宅及商业、社区养老活动用房等配套。据悉,项目将由旭辉和新城联合开发,新城操盘,预计三季度上市。
上宸云际打造三大户型,分别为89㎡三房两厅一卫、约100㎡三房两厅两卫、约120㎡四房两厅两卫,都是双阳台户型。
该地块在今年2月的土拍中被旭辉摇号拿下,成交总价15.3亿元,成交楼面价13200元/㎡,未来毛坯限价24100元/㎡,预计全装修限价2.61万/㎡。
目前项目已在景枫负一楼公开城市展厅,预计9月公开售楼处,9-10月会首开入市!
山语春风
目前在售带装修房源,主要位于1、2#,户型建面约79、89㎡,销许均价约21000元/㎡。
德信星宸
目前主力在售2、12、20号楼,户型建面约89㎡、107、125㎡,基础装修价格约21752元/㎡,升级包1000元/㎡。
联发云启
目前在售2-10、13号楼房源,精装交付,户型建筑面积约98、110、125㎡,销许均价约23540元/㎡,拟交付时间为2023年3月底。
荣盛隽峰雅苑
目前在售少量低密多层一楼和顶跃房源,户型建面约115、130、150、178㎡,现房销售,均价约22969元/㎡。
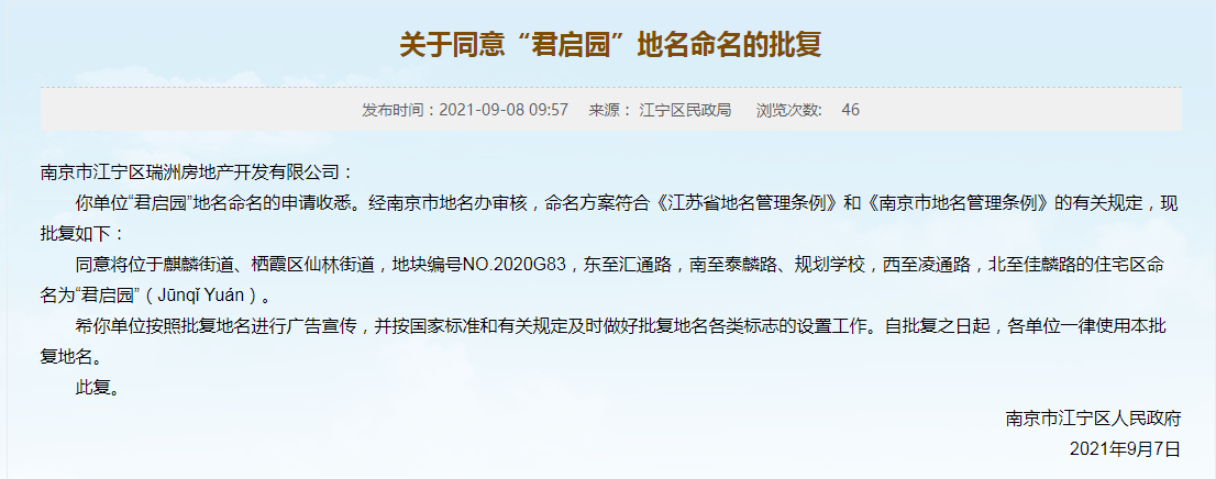
4、君启园
根据江宁人民政府显示,中南汇通路G83地块案名定为“君启园”!
其实作为2020年拿地的项目,很多楼盘都已进展神速,但中南G83项目的开发历程实属曲折。
今年1月初,项目开始进入土地平整阶段,但随后在地块的西北角挖出古墓,还有传言是“南朝宋武帝刘裕的墓”,导致项目的开发中断;中间还曾传出中南要退地的消息,不过后期又开始施工。
直至8月26日,中南汇通路G83项目的规划方案终于出来了!根据规划条件,分为A、B、C三个分区,总用地面积35246.77平方米。根据规划方案显示,项目将拟建8栋17F住宅、3栋20F住宅、一栋3F商业。
2020年11月,中南通过摇号拿下仙林G83地块,成交总价13.2亿元,成交楼面价约18867元/㎡,毛坯限价27500元/㎡。
中南G83为商住混合地块,后期将打造住宅、酒店式公寓以及商业。根据此前消息,项目由中南、银城和绿都联合开发,银城负责建筑和装修部分,采取银城物业。
项目预计10月份首开,一次性推出约500套房源,主力户型面积约99㎡、117㎡和130㎡,含精装包均价预计在3.5万/㎡左右(以销许公示为准)。此外,据置业顾问消息,项目首付比例将在5-8成,具体还没确定,买房人可以据此准备资金了。
目前汇通路,除了中南G83外,还有在售的正荣润岚府以及纯新项目新城G46地块、万科G47地块,此外根据昨日南京土地市场网挂出的第二批次集中供地详情中,汇通路还将迎来一幅宅地的出让!
麒麟NO.2021G91地块,东至经二路,南至纬七路,西至现状,北至纬五路。起拍总价183000万元,最高限价229000万元,最高毛坯限价28500元/㎡
该地块位于正荣润岚府周边,距离铭著风华(新城G46)、紫辰光年花园(万科G47)以及中南G83项目都很近,周边区位配置基本一致,目前汇通路片区内,随着复地大鱼VLLA收官、正荣润岚府仅剩少量底跃在售外,几乎陷入房荒的状态,但未来这四家纯新盘项目的入市,将在一定程度上缓解房荒。
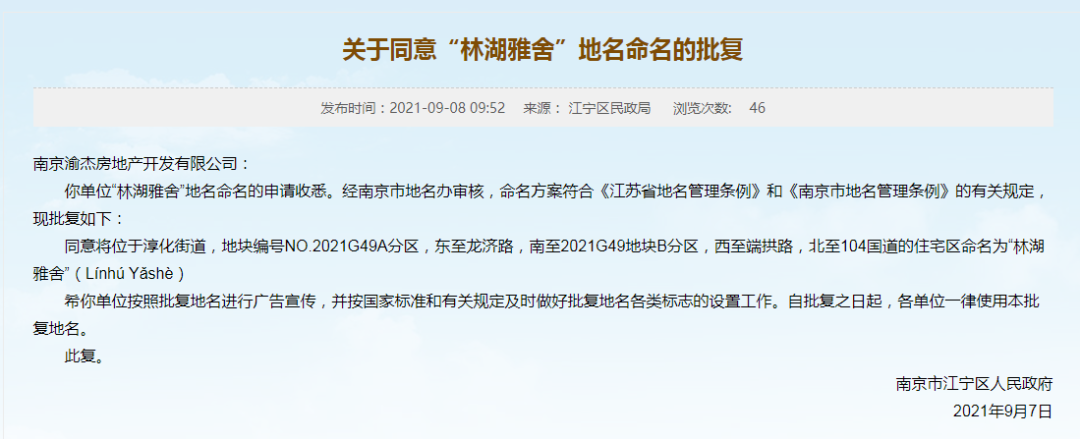
5、林湖雅舍
根据江宁人民政府显示,华宇淳化G49地块住宅区案名定为“林湖雅舍”!
今年7月中旬,江宁人民政府官网曾发布了华宇淳化G49地块A分区的规划设计方案。据规划显示,项目将拟建10栋小高层住宅以及4栋相关配套设施。
今年5月份,淳化G49地块经2轮竞价后,被华宇以总价7.5亿元竞得,成交楼面价10472元/㎡,毛坯限价24300元/㎡。
华宇淳化G49地块位于淳化新城,紧邻104国道,交通十分便捷,东侧紧邻梅龙湖,北侧为青龙山,自然景观视野十分开阔。项目周边人居氛围成熟,区域市场成熟,但区域还是2016-2017年有着多幅宅地出让,此后区域内的热度就明显降低,直至今年淳化G49地块的出让!目前区域内仅有保利伴湖院、保利金地湖光晨樾在售(实景现房)。
保利伴湖院
项目在售1-6号楼毛坯现房,户型建筑面积约88、105、120、125㎡,同时在售建面约127-230㎡的跃层,整体销许均价约22316元/㎡。
项目前身是淳化保利G05地块,根据规划,项目打造6栋低密小高层花园洋房,共333户,户型建筑面积约86-127㎡。
保利金地湖光晨樾
保利金地湖光晨樾主力在售8-9、13-15、21、32号楼房源,销许均价约23420元/㎡,户型建筑面积约90、105、115㎡,现房毛坯交付。
项目前身是金地&保利拿下淳化G21地块,整个项目设有16栋洋房(不包含人才房),16幢6层的叠加别墅,共计1042户,打造低密花园洋房墅区。
想要了解更多楼市资讯,探讨楼市最新动态,欢迎关注微信号:ssjzyw



评论