在中国古建筑中,有很多有意义的装饰元素拥有丰富的文化内涵,美的动人心魄,从而被许多现代建筑纳入设计中,与繁华都市建筑相辉映,形成新的艺术美学人居风格。
新希望•锦麟天玺(推广名)便是其一。
于高新繁华处造境 让隐奢生活进阶
作为入驻西安的第一个项目,新希望地产构建现代主义简约风格的诗画居所,以锦麟系+大师造的升级之作,采用中国建筑传统元素,于古都西安高新CID繁华区域构筑出新希望地产2021年的灯塔级作品——新希望•锦麟天玺(推广名)。
城市品质大宅都是居于闹市,而隐于繁华。
新希望•锦麟天玺(推广名)所处的高新CID中央创新区,根据《西安高新区中央创新区发展规划》显示,该区域作为高新区比肩科技金融区的核心发展区域,正在成为西安城市的超级新中心,区域配套建设理念、规划功能极具前瞻性。
因此,项目周边的丰富配套实力亦着实强劲——门口即是地铁6号线仁村站,周边多条轨道交通串联全城;约3公里范围内有两所幼儿园、三所小学、三所中学(具体学区划分及入学政策以相关部门要求为准,不作承诺),优质教育环伺;已经动工并加速兑现的“未来之瞳”,集科创研发、新兴产业、高端办公、星级酒店等功能为一体,带来多元产业资源;与项目仅一路之隔,便是占地面积约340亩的大仁遗址公园(在建),未来之瞳450亩湿地公园(规划)等多重丰富景观资源……坐落城市优质资源聚集的大中心,退去外界繁华,归隐于自家大宅中,于园区山林间偷得浮生半日闲,舒适体悟亦无需与他人言。
众所周知,从2020年初,高新CID中央创新区板块土拍屡屡破万,进驻区域的一线品牌房企几乎全部定下了“高端产品”的基调。但在寸土寸金的高新CID中央创新区板块,愿意用大量水系造景、打造大面积生活娱乐空间的却是寥寥无几。
新希望•锦麟天玺(推广名)总占地约178亩,规划总建筑面积约47.26万方,是高新区万元地价项目中,真正的高新改善大盘。因此,项目坚持品质不为成本让步的产品打造理念,在园区打造了上千余平的山水景观中轴,并沿着整条山水景观中轴,超配约超20000余㎡的园林式生活馆,内设健康慢跑道。还为业主打造约1300㎡的下沉式会所,约1800㎡的架空层空间。如此尽心配比设计,在同区域内乃至西安主城区均非常少见。
并且,在产品细节的锻造上,新希望•锦麟天玺(推广名)亦是匠心处处——高端品质小区级别越高,入户品质越好,所以项目的单元入户门厅立面采用局部石材打造,盛迎居者归家;还在锦麟系标准层的设计中采用提取的宋锦中纬锦的工艺手法,让整个立面线条横向贯通,简洁流畅;并携取代表身份和尊贵的重檐庑殿顶的屋檐比例,打造了建筑顶部造型——华冠,优雅与庄严并具,尽显品质华宅。
回溯悠长的历史长河,三进归家,是千年传承的礼序规制,是尊崇身份的彰显,更是“礼”的典型表现,归家礼仪也因此盛行千年。
新希望•锦麟天玺(推广名)社区内部以“一轴三园四进归家”规划设计营造出酒店式度假体验的景观园林享受,并以隐奢作为设计内核,将山水景观、下沉会所等布局自然融入社区“礼制”设计,在园区自西门入口开始,东西向结合四重归家景观院落——寻谧、忘忧、见山、凝水,延续“三进礼序”,将文化与艺术蕴含在建筑的格局之中。一重院落一重景,散步闲聊皆有不同美景相伴;随意落座,目及所处亦如瑶台阆苑,水木清华。
匠心空间的无尽想象 带来安静流动的生活诗
时代,需要一处据守繁华之地,安放人们对隐世大宅的向往。而此类建筑最大的精工特点,便是将对人居建筑的思考沉淀到社区规划的细节中,并通过其提供的生活构想空间便能知晓一二,比如会所、园区设计等内部配套。
新希望•锦麟天玺(推广名)社区自带约1300㎡的下沉式会所,书香会客厅、标准化设计的高级健身区,让居者告别家庭健身的枯燥和外出健身娱乐的不方便。
同时,还打造了标准四季观景恒温泳池,将泳池与下沉式中庭景观相融合,在游泳健身的同时可以欣赏室外的四季园林景观,身体和心灵肆意遨游。如此的采光设计和打造手法,只有在星级酒店泳池才经常见到。
而新希望•锦麟天玺(推广名)从人居角度设计的空间理念还不止于此。沿着山水景观中轴往东,社区内部设计的超万平的园林式生活会馆,在一片郁郁葱葱之间,以多重社交场景让居者们既可以品茗、泼墨、也可日常锻炼、嬉戏,自如切换。
归回到建筑产品本身,在限价环境下,新希望•锦麟天玺(推广名)同样坚持高标准精装交付,选用高品质品牌,如高仪、马可波罗、百朗、日立或同档次其他品牌(以双方签署的买卖合同约定为准)。从空间规划到品牌甄选,全面升级空间的美感与舒适感,最大限度实现品质大宅的精工匠造,让生活呈现精致与美好。并且,小区内部部分产品南向推窗还可鸟瞰约340亩大仁遗址公园(在建),风光无限。
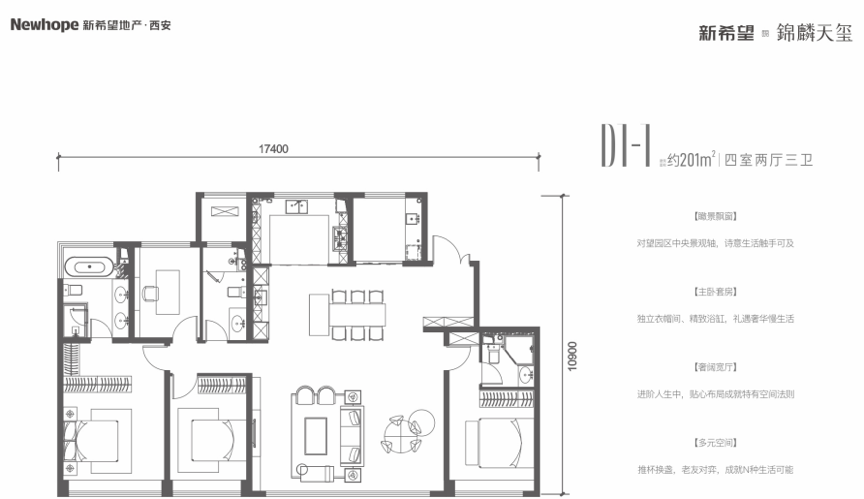
项目面市后,建筑面积约163㎡、201㎡户型备受西安高端改善人群追捧,亮点十足。
其中的建筑面积约201㎡大平层产品,拥有总面积约55㎡的餐客奢阔空间,超大双面采光面和生活空间,坐看窗外四季盛景;中西厨房设计延生多重美味,配以高端品牌的双开门冰箱、蒸烤一体机、净水器、洗碗机等家电,兑现品质生活;双套房设计,主卧套房预留步入式衣帽空间,尽情展现私属场域的尺度观。
建筑面积约163㎡大平层产品,采用独立三套房设计,分离独立卫浴,让生活空间清晰而不失连接;U型厨房带来流畅生活动线,美食在温馨空间里从容诞生;还拥有约14.6m南向面宽,以及北向独立生活阳台,与建筑面积约201㎡产品一样采用客餐厨LDK一体化设计,让居住空间开放舒适。
品质大宅的硬件铸造处处皆是匠心,在软性服务上也是业界佼佼者。新希望物业国家一级物业资质,历经二十多年发展,新希望服务以“每天,让幸福发生”为使命,形成“1+4+4”绿色生活服务体系,为业主的生活保驾护航,持续获得多方好评。
身处科技繁华之间,文脉气息、山水意境依然萦绕满怀,新希望•锦麟天玺(推广名)隐奢大宅为居者锻造吾心安处,共话万物相生。
十一黄金周,国庆长假如约而至,新希望·锦麟天玺(推广名)也将开启一整个假期的精彩:美妆风尚大典,超级希望英雄系列盲盒集卡体验,更有iphone13锦鲤抽奖……共赴国庆美好!
当前建筑面积约163㎡、201㎡大宅热销中,静待君阅!
温馨提示:本公众平台发布内容(包括文字、图片、影音等素材)部分来源于网络,如涉及版权争议需要交涉,请直接联系原作者。本平台客服查核属实后,将于24小时内删除消息,不承担任何法律责任。
1、本资料为要约邀请,不作为要约或承诺;买卖双方的权利义务以双方签订的《商品房买卖合同》及其补充协议、附件等书面文件为准;
2、相关宣传内容不排除因政府相关规划、规定及出卖人分期规划、未能控制等原因发生变化;本资料所发布内容为2021年09月29日前的信息,出卖人将不定期对宣传材料进行修改,敬请留意最新资料。
来源:推广
最新更新时间:09/29 14:39


评论