文 | 丸子君
11月16日,位于福田新洲的富通上舍,完成了意向登记客户摇号的环节。
实际上,富通上舍摇号的意义并不大。
冻资8人,对应65套住宅房源,每人选8套都还有剩余,况且所有房源都是约115平方米的户型设计,购房者能挑选的不过是楼层和朝向。
而同样在福田,距离富通上舍约2公里外的位置,另一个新盘也在酝酿着准备入市,那就是湾尚庭玺家园、湾尚骏玺家园项目。
虽说项目整体条件比富通上舍更好,但综合来看,也同样是食之无味的“鸡肋盘”。
1.靠近城中村、主干道
在2018年,福田区城市更新局发布了《福田区福田街道水围村城市更新单元规划》,这而个旧改项目,正是庭玺家园、骏玺家园的前身。
当时的01-01地块,是如今的骏玺家园,02-01地块成为了庭玺家园,剩下的02-02地块则将建成水围承翰商务大厦。
目前,两个住宅地块都已出地面数层。
庭玺家园占地1.13万平方米,总建面11.26万平方米,容积率6.4,车位611个,由41层的A、B栋住宅和1.5万平方米商业组成,共计374户。

周围是云顶翠峰、绿洲国际学校和商务大厦,距离皇岗公园更近,居住氛围要较好。
但同时,项目直面福强路,很难避免噪音和扬尘问题。并且,距离地铁较远,到福民站、福田口岸站需步行12分钟左右。
骏玺家园占地面积0.68万平方米,总建面6.24万平方米,容积率5.96,车位315个,由商品房、保障房、1所幼儿园和2500平方米的商业组成。
项目包含了41层的1栋A单元商品住宅、B单元保障房,共321户,其中171套商品房,150套保障房。

对比来看,骏玺家园距离地铁站更近,到福民站的步行时间仅5分钟,并且无主干道的干扰。
但同时,项目毗邻水围城中村,居住氛围不够成熟,并且内部公共区域较小。
2.户型设计缺点明显
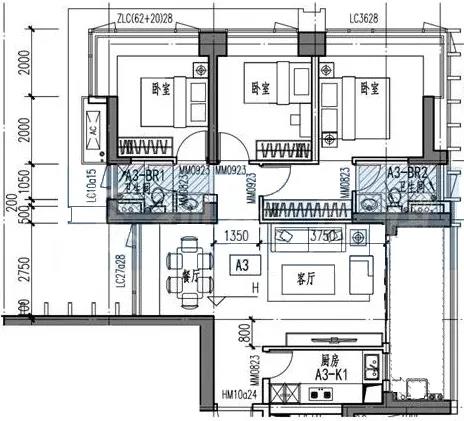
目前,外界传闻先推售的庭玺家园,户型图也已经曝光,为122-128平方米的3-4房户型。
122平方米的户型设计为3房2厅2卫。优点是阳台开阔、主卧L型飘窗;缺点是餐厅位置狭窄,厨房进出不便,客厅和餐厅的进深不统一,显得公共区域不够开阔。
123平方米同样设计为3房2厅2卫,优点是公共区和休闲区区分明显,动静分明,并且主卧设有L型飘窗;缺点是厨房位置较为尴尬,与餐厅相隔较远,并且入户区空间较窄,很难设置鞋柜。
124平方米的4房2厅1卫户型,优点是卧室多,缺点是卫生间少,小卧室面积过于狭窄。
128平方米4房2厅2卫户型,优点是房间面积较为科学,缺点是预留的餐厅位置尴尬,直接阻挡了正门到客厅的动线。
综合来看,湾尚庭玺家园的户型设计虽各有优缺点,但部分户型缺点会给居住生活带来不便,使得整体的户型印象大打折扣。
3.福田还有好盘吗?
就深圳住建局公布的四季度预售商品房项目名单,福田区有8个项目。
那么,除了已经日光的深业中城、超级网红盘海德园外,福田还有好盘吗?
在10月底入市的加福华尔登府邸,因为是超过60层的独栋住宅楼,号称“深圳第一住宅高楼”,被购房者诟病密度过高,推售462套,仅获148批客户认筹。
这两天将开盘的富通上舍,则因为楼层过矮,仅20层,将被40-60层的三栋高层遮挡,并且距离地铁较远,同样被“嫌弃”,推售65套,仅8人认筹。
而佳兆业航运红树湾,虽然高层可看海,但位于交通不便的保税区,已酝酿许久,未见入市。
在上沙的中洲滨海华府,被城中村半包围,周边生活气氛一般。不过自带16万平方米的商业,并且配套的上沙小学及中学也划归红岭教育集团管理,也算是利好消息。
而当中位置最好的,大概就只有泰安名苑。项目紧靠会展中心和COCO Park,城市建设和配套较为完善,并且已很久没有新盘入市。
在福田区的新盘,无论周边环境如何,备案价多能在“9字头”以上。
但由于城市开发建设较早,老旧二手房不少,加上南山的崛起,目前除香蜜湖、百花外,大部分片区的二手房价格并不太高,打新空间不明显。因此,一旦新盘位置不佳,可能就会陷入竞争力弱、意向客户少的尴尬局面。
就目前待入市的几个新盘来看,或许只有泰安名苑最具热盘潜质。


评论