
距离2021年结束仅剩十余天,不少楼盘纷纷都想在年底前抢先开盘入市,纯新项目售楼处、样板间扎堆公开,地块规划接连出炉,好不热闹!
1、江北正核纯新盘晴翠府于今日公开建面约143㎡样板间,预计本月下旬首开约400套房源,项目共打造建面约112㎡、127㎡、129㎡、143㎡、165㎡多种户型,毛坯限价35000元/㎡。
2、汇通路纯新盘中南君启于今日公开项目售楼处艺术馆,项目主力户型建面为99㎡、117㎡、130㎡,毛坯限价27500元/㎡,但项目今年预计没有上市计划。
3、南部新城“四叶草”之一的翡丽铂湾,预计将于本月15号(周三)公开售楼处及样板间,并且预计马上入市。
4、昨日,位于江北直管区的华昌金沙一品公开售楼处及样板间,项目即将推出A地块5栋楼,户型建面约97㎡、110㎡、135㎡,毛坯限价28000元/㎡,会配有升级装修包。
5、近日,城北葛洲坝幕府创新区G70地块规划出炉,共打造11栋小高层住宅,毛坯限价40500元/㎡。
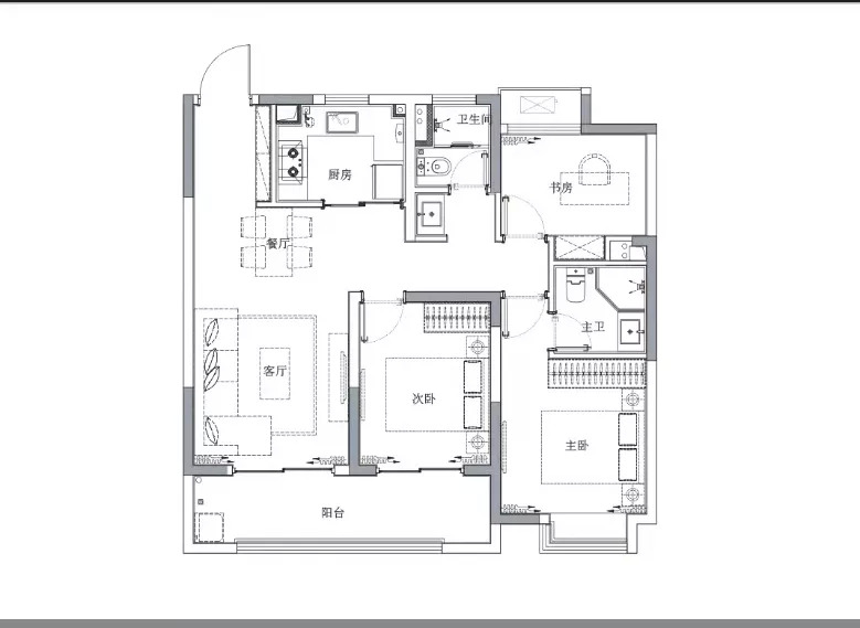
01、晴翠府今日公开建面143㎡样板间 本月下旬首开
12月12日,同样位于江北的纯新盘晴翠府于今日公开项目建面约143㎡样板间。
项目由卓越、旭辉、金地商置联合开发,卓越操盘,旭辉物业。据悉,项目预计12月下旬首开400多套房源(以销许最终信息为准),建面约112/127/129/143/165㎡等多种户型,据置业顾问透露首开含升级装修包价格预计不超过4万/㎡。
户型图参考如下:
项目前身是卓越江核G12地块,2021年5月20日,该地块(定山大街以北、浦滨路以西地块)被卓越以43.8亿拿下,未来最高毛坯销售限价35000元/㎡。
项目位于江北新区顶山街道,定山大街以北,浦滨路以西。位于江北核心区正中心,地段非常优越,与华润国际社区一路之隔,是4号线2期地铁上盖物业,未来直达鼓楼龙江。
根据规划,项目分为A、B、C、D四个地块,项目规划18栋15-26层的高层住宅,住宅共分部在A、B、D三个地块,打造卓越高端产品系——晴翠系,毛坯限价35000元/㎡,有升级装修包。
此外,项目还将打造一座大型商业综合体“卓越汇”,其中医疗健康,文化,娱乐,展览展示,生活配套等服务型业态约5万方,外加总高约 150米的公寓楼,商业计划在48 个月内开业,还会引进京东 mall。
02、汇通路中南君启今日公开 毛坯限价27500元/㎡
同样,今日汇通路中南君启公开售楼处,项目主力户型建面为99㎡、117㎡、130㎡,毛坯限价27500元/㎡,但项目今年预计没有上市计划。
项目前身是中南G83地块,该地块为商住混合地块,根据规划条件,分为A、B、C三个分区,总用地面积35246.77平方米,后期将打造住宅、酒店式公寓以及商业。拟建8栋17F住宅、3栋20F住宅、一栋3F商业。
项目由中南、银城和绿都联合开发,银城负责建筑和装修部分,采取银城物业。至于户型面积上,项目打造户型建面约99㎡、117㎡、130㎡以及少量跃层产品;毛坯房限价为27500元/㎡,加精装包价格预计在3.5万/㎡以内(具体价格以销许公示为准)。
除中南君启外,汇通路目前在售润岚府、万科紫辰光年、新城铭著风华三个项目,还有纯新盘黑牡丹G91地块,短期内汇通路板块是不缺房源了。
正荣润岚府
项目在售少部分跃层房源,户型建筑面积约250㎡,全装修均价24000元/㎡。
万科紫辰光年
项目刚于11月28日首开入市,在售1、4、8号楼,户型建面115㎡(3室2厅2卫)、143㎡(4室2厅2卫),精装交付,销许均价30457元/㎡。另有精装升级包3000元/㎡。两梯两户,没有连廊。
新城铭著风华
在售2、3、7、10、11号楼,户型建筑面积97、115、125㎡,精装销许均价约30555元/㎡,另有升级装修包2800元/㎡,首付最低3成。
黑牡丹G91地块
今年9月,汇通路G91地块历经40分钟27轮竞价达到最高限价,后经摇号,被常州黑牡丹集团以总价21亿元拿下,楼面地价20039元/㎡,未来毛坯限价28500元/㎡。
03、翡丽铂湾下周三公开 马上首开
南部新城四叶草项目之一的翡丽铂湾,预计本月15号(下周三)公开售楼处和样板间,比起本周陆续入市的周边三个项目,翡丽铂湾推盘节奏相对要慢一些,但项目很快首开建面约162-189㎡房源。
项目由深圳振业&新城控股联合开发,新城操盘,共建5栋18-19层、户型建面约162-189㎡六恒科技系统住宅,定位纯改善高端社区。
项目的外立面采用大面积整幅玻璃幕墙设计,边框设计几乎趋为0,做到了区域内最大窗墙比0.7(南向),还将打造270°环幕瞰景阳台,基本除了底部的少量建筑框架,整体看上去全是玻璃幕墙。
户型图一览:
04、华昌金沙一品公开 全装修约3万/㎡
12月11日,江北直管区的纯新盘华昌金沙一品公开售楼处及样板间,项目即将推出A地块5栋楼,户型建面约97㎡、110㎡、135㎡,毛坯限价28000元/㎡,有升级装修包,预计价格为2000元/㎡(具体以开发商公布为准)。
户型图参考如下:
金沙一品位于江北国际健康城板块花园路旁,项目为地铁4号线二期珍珠泉站上盖,未来地铁出行很方便。根据规划显示,项目共分为A、B、C、D四个分区打造:
A分区为二类居住用地,打造13栋18F的高层住宅(包括部分养老用房)以及相关配套
B分区为商住混合用地,打造酒店、商业以及相关配套
C分区为二类居住用地,打造5栋17-18F的高层住宅(包括部分养老用房)以相关配套
D分区为二类居住用地,打造6栋10-11F的高层住宅(包括部分养老用房)以相关配套
项目共打造24栋总高10-18层的高层住宅,两栋总高56米、14层的酒店,同时还有多栋3-4层的商业街区。
商业部分,将打造6.8万方商业街区,规划文旅、休闲、社区生活三大主题区,将填补区域内的商业空白。
05、城北幕府创新区G70规划出炉 拟建11栋住宅
近日,城北葛洲坝幕府创新区G70地块规划出炉,共打造11栋小高层住宅。
葛洲坝幕府创新区G70地块位于鼓楼区幕府山街道,东至幕府花园,南至格林东苑小区,西至五塘新村南汽二村小区,北至规划道路。2021年9月26日,经过29轮竞拍,葛洲坝以总价316000万元拿下幕府创新区G70地块,楼面地价24140元/㎡,未来毛坯销售限价40500元/㎡。
根据规划,项目总用地面积47601.85平方米,由A、B、C三个分区组成,共打造11栋15-20层的小高层。
A分区,用地性质R2二类居住用地,用地面积26641.26平方米,1.0<容积率≤2.75,建筑高度≤60米,建筑密度≤25%,绿地率≥30%;
A分区拟建方案总建筑面积约10.3万平方米,其中:地上建筑面积约7.3万平方米,主要功能为住宅、基层社区中心、物业及相关配套辅助用房;地下建筑面积约3.0万平方米,主要功能为车库、储藏间及相关配套辅助用房。
A分区7栋小高层。
B分区,用地性质R2二类居住用地,用地面积15666.74平方米,1.0<容积率≤2.75,建筑高度≤60米,建筑密度≤25%,绿地率≥30%;
B分区拟建方案总建筑面积约6.3万平方米,其中:地上建筑面积约4.3万平方米, 主要功能为住宅、商业、物业及相关配套辅助用房;地下建筑面积约2.0万平方米,主要功能为车库、储藏间及相关配套辅助用房。
B分区4栋小高层。
C分区(地下),用地性质R2二类居住用地,用地面积5293.85平方米。
葛洲坝G70地块毛坯最高限价直接突破4万/㎡,加上精装包可能要高于4.5万/㎡。该地块北面是长江,周边老小区比较多,隔一条幕府东路就是长江观音景区的幕府山,但根据出让条件,G70地块限高60米,幕府山远高于这一高度,未来想要看江景可能没希望了。
目前区域内还有中冶锦绣天玺、恒盛金陵湾新组团以及金基鼓楼滨江G109地块。
中冶锦绣天玺
中冶锦绣天玺目前在售1号楼少量精装房源,户型建筑面积约380㎡。精装均价约48500元/㎡(含精装升级包5500元/㎡),全装修销许价均价42934元/㎡,总价1180-2127万(不含装修包),两梯一户,交付时间明年底。
恒盛金陵湾新组团
恒盛金陵湾新组图向人才进行定向供应房源,此前加推了12、13号楼,共66套房源,其中156㎡户型22套,180㎡户型44套。毛坯均价43800元/㎡,首付5成。后期还有两栋楼,不清楚是不是继续给人才进行定向供应。
金基鼓楼滨江G109地块
2021年11月25日,经过竞拍,鼓楼滨江G109地块最终被金基夺得,以底价136000万元成交,楼面地价25331元/㎡,未来毛坯限价不得超过40950元/㎡。


评论