
12月22日,主城又有8盘领证,23日起报名。
包括河西的长江华府,南部新城金陵华夏中心、纯新盘翡丽铂湾,江核的晴翠府,越江时代、铂岸江璟,雨花的中海南山印,迈皋桥的星叶瑜憬尚府领证的8家楼盘均位于之前比较热门的板块。
长江华府领取6、8号楼销许,共233套房源,建筑面积约142、177㎡,销许均价58384元/㎡,首付8成,验资527万,预计2022年交付。
金陵华夏中心南区新领E03(1-22层)、D02(1-21层)号楼销许,共258套房源(人才78套,无房78套),户型建筑面积106、118、124、135、173㎡,销许均价46520-47191元/㎡,全装修交付,8成首付,验资213万起。
翡丽铂湾新领B1、2、3号楼销许,共216套房源(人才65套,无房65套),户型建筑面积162㎡,销许均价46507-46782元/㎡,全装修交付,首付8成,验资400万。
晴翠府领取珑府2、3号楼,翠府1、2、3、5号楼销许,共计498套房源,户型建筑面积约112、127、129、143㎡,首付5成,销许均价35189-37377元/㎡,验资186万元,升级装修包3100元/㎡。
越江时代领取1、6、9号楼销许,共313套全装修房源,面积约110、128、143㎡,销许均价32975元/㎡,首付3成,验资120万。
颐和铂岸江璟新领9号楼销许,共50套(人才房10套、无房15套),全装修房源,户型建面约165㎡,销许均价34748.5元/㎡,首付3成,验资160万!
中海南山印新领1、3号楼销许,共220套房源(人才66套,无房66套),户型建筑面积107、122㎡,销许均价28455元/㎡,全装修交付,首付3成。
星叶瑜憬尚府新领8、9号楼销许,共98套精装现房(人才20套,无房30套),户型建筑面积124-131㎡,销许均价37215-37981元/㎡,首付5成。
报名时间:12.23日上午09:00-12.24日上午09:00
报名方式:报名请关注微信公众号“南京房产微政务”,进入后点击右下角“宁小通”进入报名通道。
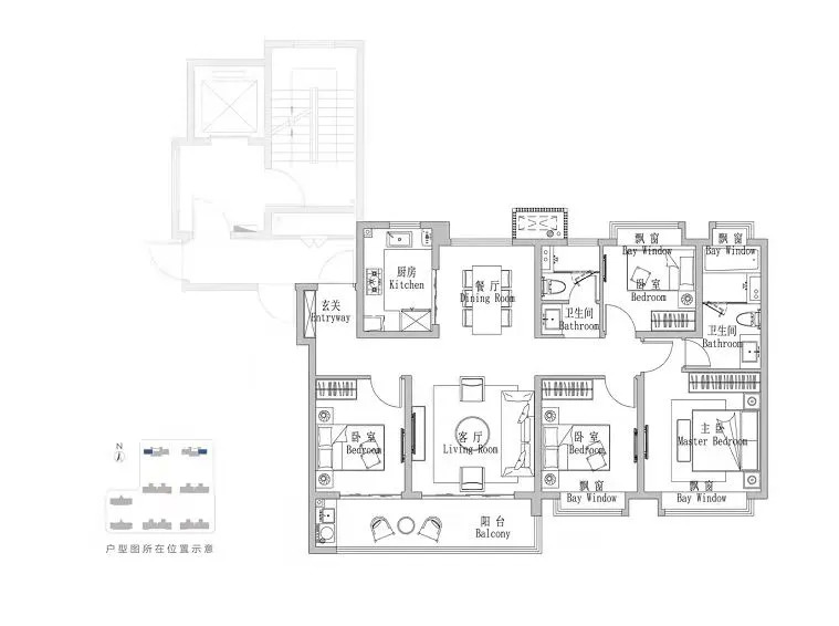
01、首付8成验资527万,长江华府加推
昨晚,项目领取了6、8号楼,共468套房源,户型建筑面积约142、177㎡,毛坯销许均价58384元/㎡,另有装修升级包5000元/㎡,首付8成,验资527万,现房销售。
户型图如下:


项目位于河西中部,靠近地铁2号线和在建的地铁9号线,周边商业氛围浓厚,紧邻万达广场、新城吾悦广场、苏宁广场等配套;项目周边还有苏宁环球国际中心、联创科技大厦、江东软件城体育中心等;距离科睿小学、金陵汇文初中也不远,区位优势明显。
根据南京市鼓楼区2021年招生入学工作实施办法,长江华府位于科睿小学和金陵汇文初中的施教区范围内。但是根据政策施教区范围内未交付楼盘尚不能确定学区,最终学区以交付后官方文件为准。
02、金陵华夏中心本次加推258套房源
金陵华夏中心新领E03(1-22层)、D02(1-21层)号楼销许,共258套房源(人才78套,无房78套),户型建筑面积106、118、124、135、173㎡,销许均价46520-47191元/㎡,全装修交付,8成首付,验资213万起。
户型一览:



华夏幸福文渊府的装修标准也很不错,中央空调与新风选用日立,搭配菲斯曼燃气壁挂炉地暖、3M前置过滤器;卫浴方面,项目选用杜拉维特智能一体化马桶,花洒、龙头甄选汉斯格雅,搭配TOTO台盆、松下暖风机;厨房品牌则以西门子为主,油烟机、灶具、洗碗机一应俱全;可以说既有品质,又有细节。
03、首付8成,南部新城纯新盘翡丽铂湾首开
翡丽铂湾新领B1、2、3号楼销许,共216套房源(人才65套,无房65套),户型建筑面积162㎡,销许均价46507-46782元/㎡,全装修交付,首付8成。
项目由深圳振业&新城控股联合开发,新城操盘,共建5栋18-19层、户型建面约162-189㎡六恒科技系统住宅,定位纯改善高端社区。
项目的外立面采用大面积整幅玻璃幕墙设计,边框设计几乎趋为0,做到了区域内最大窗墙比0.7(南向),还将打造270°环幕瞰景阳台,基本除了底部的少量建筑框架,整体看上去全是玻璃幕墙。
户型图一览:


04、首付5成验资186万,晴翠府马上首开
晴翠府领取珑府2、3号楼,翠府1、2、3、5号楼销许,共计498套房源,户型建筑面积约112、127、129、143㎡,首付5成,销许均价35189-37377元/㎡,验资186万元,升级装修包3100元/㎡。项目由卓越、旭辉、金地商置联合开发,卓越操盘,旭辉物业。
户型图参考如下:


项目前身是卓越江核G12地块,2021年5月20日,该地块(定山大街以北、浦滨路以西地块)被卓越以43.8亿拿下,未来最高毛坯销售限价35000元/㎡。
项目位于江北新区顶山街道,定山大街以北,浦滨路以西。位于江北核心区正中心,地段非常优越,与华润国际社区一路之隔,是4号线2期地铁上盖物业,未来直达鼓楼龙江。
根据规划,项目分为A、B、C、D四个地块,项目规划18栋15-26层的高层住宅,住宅共分部在A、B、D三个地块,打造卓越高端产品系——晴翠系。
05、首付3成,越江时代313套房源马上推
越江时代领取1、6、9号楼销许,共313套全装修房源,面积约110、128、143㎡,销许均价32975元/㎡,首付3成。
越江时代的前身为新城G11,该地块5月21日,经过31轮竞拍,最终摇号被新城拿下,竞得总价36亿,楼面地价约21799元/平,毛坯限价31850元/㎡。值得一提的是,全装修均价为32681元/平起,仅比毛坯限价高了800+元/㎡。
项目由招商蛇口、新城、弘阳、新希望四家品牌房企联合打造,位于研创园青奥板块,与砂之船、丰大国际一路之隔,周边还靠近滨江实验学校。
110㎡ 3房2厅2卫:

A2 110㎡ 3房2厅2卫

128㎡4房2厅2卫

143㎡4房2厅2卫

06、铂岸江璟再度加推,这次只有50套
颐和铂岸江璟新领9号楼销许,共50套(人才房10套、无房15套),全装修房源,户型建面约165㎡,销许均价34748.5元/㎡。
在户型打造方面:
建面约110㎡三房两厅两卫,一击即中买房者们的心。入户玄关保证了私密性,方正的户型,南北通透,客餐厅一体,动线明朗,双阳台设计,增强房间整体通透性;


建面约130㎡的四房,偏改善,适合一家二胎、三胎家庭;三个卧室朝南,一间卧室朝北,均带有飘窗。约6.7米双阳台设计,大大增加了室内采光,厨房设计合理,符合日常使用习惯。主卧自带卫生间,卫浴采用三段式干湿分离设计。

建面约165㎡的四房大平层,适合高端改善人群。独立的玄关,营造了精致的归家体验,户型整体方正开阔,入户有正气与尊贵之感,尽显大家风范。9.8米超大阳台,保证了充足的通风、采光及观景视野,各种对于生活的想象,都能在此得到满足。

在产品内部打造方面:
颐和·铂岸江璟打造了玄关系统、餐客系统、厨房系统、卫浴系统、收纳系统五大实用功能体系。
据悉,升级装修包采用艾迪仕新风系统、东芝中央空调、菲斯曼地暖三大件,甄选国际知名品牌,打造高品质居家体验。
07、220套房源,中海南山印再加推
中海南山印新领1、3号楼销许,共220套房源(人才66套,无房66套),户型建筑面积107、122㎡,销许均价28455元/㎡,全装修交付,首付3成,
项目前身城南G37地块在今年5月份土拍中被中海以总价22.2亿元拿下,成交楼面价19107元/㎡,毛坯限价26260元/㎡,全装修限价26260元/㎡。
根据规划,建设8栋27-32层住宅及1栋两层配套服务用房,户型建面约107㎡(三房两厅两卫)、122㎡(三房两厅两卫)、142㎡(四房两厅两卫)三大户型。
建面约107㎡(三房两厅两卫):

建面约122㎡(三房两厅两卫):

08、首付5成,星叶瑜憬尚府实景现房即将加推
星叶瑜憬尚府新领8、9号楼销许,共98套精装现房(人才20套,无房30套),户型建筑面积124-131㎡,销许均价37215-37981元/㎡,首付5成。
项目由栖霞建设打造,共建设8栋精装高层、小高层住宅,现房销售,配建11000平保障房(2号楼为保障房)。
在装修标准上,包含新风系统、中央空调和地暖三大件,采用杜拉维特、日立、菲斯曼等众多国际一线品牌。
从板块定位来看,迈皋桥板块以宜居为主,周边生活配套较为齐全,环境优美。
项目户型面积段齐全,共打造高层88㎡、110㎡、118㎡、洋房124㎡、131㎡五种户型,得房率约75%-85%,最快2022年上半年交付,现房销售,对买房人来说能减轻租房及生活压力。



评论