01.深圳湾超总将有摩天楼观景平台,南山坪山规划来了
据“深圳市房地产信息网”消息,近日,深圳市规划和自然资源局发布多个通告及公示,涉及深圳湾超总、坪山等项目。
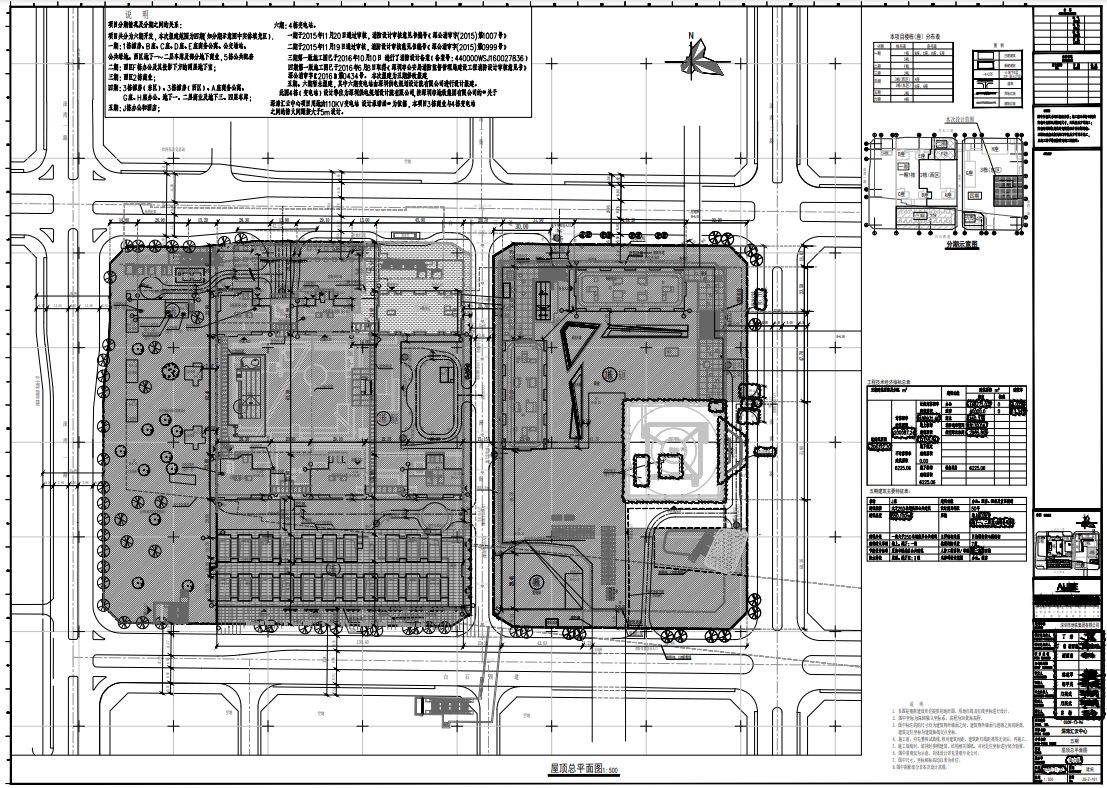
其中,深圳湾超总深湾汇云中心五期总平面图修改,最高层79层调整为78层,78层增加突出建筑主体的观景平台。
另外,坪山安居泰和苑项目总平面图公示。
1、深湾汇云中心五期,顶楼78层将建观景平台
1月22日,深圳市规划和自然资源局南山管理局发布《关于深湾汇云中心五期总平面图修改公示的通告》。
湾汇云中心项目位于深圳湾超级总部基地,宗地号T207-0048,五期于2019年9月取得《建设工程规划许可证》(深规划资源建许字NS-2017-0021(改2)号)。
商业建筑面积由44.43平方米调整为160.37平方米,办公由148773.42平方米调整为148771.03平方米。消防避难空间由9449.93平方米调整为8170.04平方米。架空绿化休闲由1203.17平方米调整为2985.80平方米。
地下核增建筑面积由6231.71平方米调整为6225.06平方米,规定建筑面积、总建筑面积等指标随之调整;建筑层数由79层调整为78层、建筑高度由347.20米调整为350.10米;78层增加突出建筑主体的观景平台。
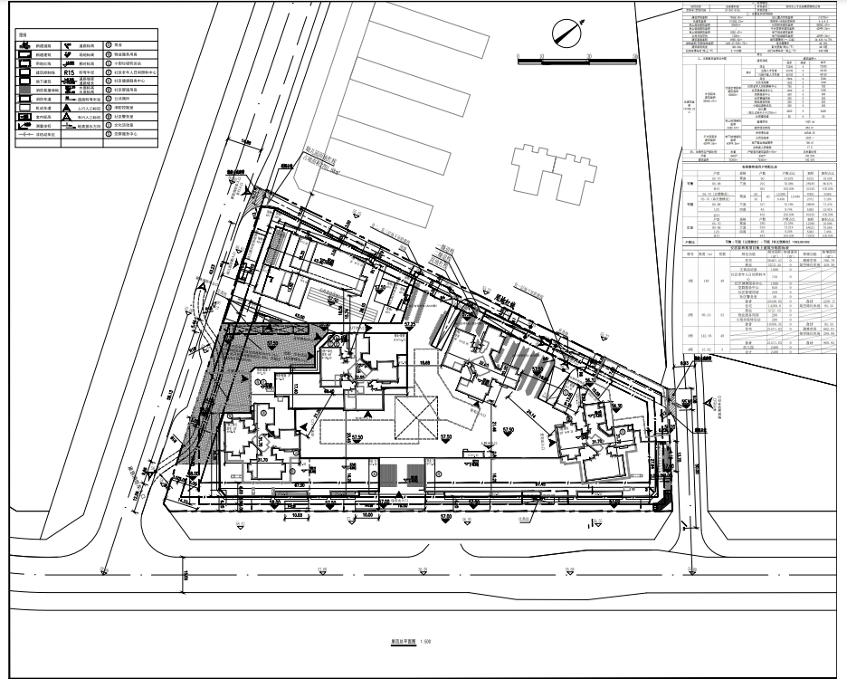
2、安居泰和苑项目总平面图公布
1月21日,深圳市规划和自然资源局坪山管理局发布《关于安居泰和苑项目总平面图的通告》。
深圳市人才安居集团有限公司开发建设的安居泰和苑项目位于坪山区马峦街道体育二路与沙岭路交汇处东北侧,总用地面积1.91万平方米,土地用途为二类居住用地。该项目于2022年1月20日取得《建设工程规划许可证》(深规划资源建许字PS-2022-0002号)。
0.2沙嘴村二期旧改更名为尚悦府,总建面16.4万平,预计3月开工
深圳房地产信息网援引家在深圳网友发布的消息,沙嘴村二期旧改已更名为尚悦府,项目总建面约16.45万平,预计今年3月动工。
据资料显示,沙嘴村二期旧改由绿景开发,一期是绿景红树湾壹号,上一批产品开盘是在2019年3月,推售户型为170-260平,单价8万-10万元/平方米。
尚悦府位于沙头街道,沙嘴路与福荣路交汇处东北角。项目拆除用地面积23492平方米,规划功能为住宅、商业和配套设施。
x换一张
项目建设用地面积1.76万平方米,总建筑面积16.46万平方米,计容建筑面积10.96万平方米,容积率6.23,规定容积率6.08,不计容建筑面积5.5万平方米。地上最大层数32层,99.95米高;地下最大层数4层。
其中住宅8.7万平方米,包括商品住宅1.01万平方米,回迁住宅7.68万平方米;商业1.14万平方米,物业服务用房203平方米。
自行车停车位:地上30个,地下309个;机动车停车位:地上0个,地下881个,其中充电桩停车位265个,占比30.08%,按100%预留建设安装条件。
公共配套:社区健康服务中心1000平方米,托老中心1000平方米,居住小区级文化室2000平方米,社区居委会200平方米,社区服务站300平方米,社区警务室100平方米、地下商业3000平方米等。
x换一张
项目所在的片区为福田的大金沙片区,周边如上下沙旧改、金地工业区旧改等都在进行。根据更新蓝图,大金沙片区将打造为多元复合功能区,改造后,该区域将成为集产业、文化、商贸、办公、住宅为一体的综合型产业集聚区、生态滨海城区。
界面楼谈 扫描二维码,一起买房吧!



评论