雨山路板块作为南京江北发展较早的板块,居住氛围浓厚,交通便利。但雨山路板块也有其短板,那便是周边商业、学校等配套资源匮乏。
不过近日,南京市规划和自然资源局发布《北花园路规划中、小学建设工程规划设计方案》,方案里对选址、建筑面积、效果图等都有了明确的规定。
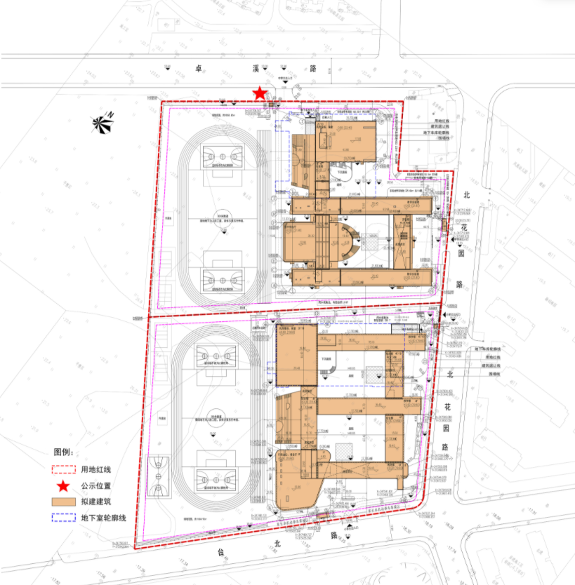
01、最新规划出炉:北花园路中、小学规划有调整
项目位于浦口区,台北路北侧、卓溪路南侧、北花园路以西(具体范围以用地红线为准),规划用地性质为A33a小学用地/A33b中学用地。
根据最新规划显示,小学占地约3.29万㎡,容积率≤1.2,绿地率≥35%,建筑高度≤24m,建筑密度≤30%。拟建总建筑面积约2.69万㎡。其中:地上建筑面积约2.29万㎡、地下建筑面积约0.40万㎡。主要建设内容为教学楼、综合楼、行政办公、报告厅、风雨操场、食堂、地下车库等。
中学占地约3.01万㎡,容积率≤.2,绿地率≥35%,建筑高度≤24m,建筑密度≤35%。拟建总建筑面积约2.62万㎡。其中:地上建筑面积约2.24万㎡、地下建筑面积约 0.38 万㎡。主要建设内容为教学实验楼、图书报告厅、风雨操场、食堂、行政楼、地下车库等。
事实上,北花园路中小学的规划早在2021年3月,北花园路中小学项目就出过相关批前公示。
而从两版批前公示对比来看,此次新版方案在原来基础上有一定扩增,小学和中学的建筑面积都相对扩大了。
外立面上来看,楼顶、外墙等色调发生了变化,新版更加简洁大气。
新版效果图:
旧版效果图:
此项目从亮相到一步步实施,真的是一波三折。
北花园路配建中小学项目最早亮相是在2018年3月浦口重大项目开工仪式上,当时规划的地址是在花园路旁,紧邻融创臻园和北江锦城,周边住宅小区众多,因此关注度颇高。2019年6月,因该片区规划调整,花园路中小学规划地址发生变更,暂停启动建设。之后,浦口区召开北花园路中小学建设启动推进会,标志着项目终于正式被提上日程。预计在2020年推动该校建设,此时选址变为初始地址,即卓溪路和北花园路交汇处的西侧,紧邻融创臻园、北江锦城两个小区。2020年7月24日,北花园路中小学项目开始进行工程总承包招标。同时预计的竣工时间也得到了曝光,该项目预计2022年4月30日竣工。可后续,预计竣工时间一再推迟,项目也迟迟没复工。
据前期信息,北花园路中小学将建设的是36班小学、24班初中,建筑高度控制在24米,该项目投资总达2.6亿。
02、被低估的雨山路板块,终于要“翻身”了?
熟悉雨山路板块发展较早,居住氛围浓厚,但区域内大型商业体较少,目前区域内基本都是底商,并不能满足区域内市民的高端购物需求。
去年4月,南京规划和自然资源局公布了《关于浦口区2019G31综合体开发建设项目规划设计方案》。并在公示中写出:2019G31综合体(雨山广场)开发建设项目毗邻雨山路换乘中心,集商业、酒店、办公多功能为一体,并公布了规划效果图。
酒店部分已签约“金帆万源酒店”,将全力打造成为浦口区酒店品牌最具代表性系列之一,目前雨山广场的商业部分正在招商及招聘部分岗位,这也意味着距离项目明年开业更近了。
另外,还有龙湖天曜自带的商业体龙湖天街。
目前区域内新房较为稀缺,板块内保利云禧、中海原山、招商雍宁府等项目均已收官,在售的仅有龙湖天曜和北江锦城两大楼盘。
北江锦城
上个月,超级大盘北江锦城领到30套住宅的销许,毛坯均价约2.8万/㎡,户型建面约100-142㎡。
据“宁小通”显示,报名未达到摇号要求,也就是说报名人数还没超过30组,报名情况十分惨淡!
北江锦城位于江北雨山路板块,由福建力标集团打造,总建筑面积约54万/㎡,素有江浦“旗舰大盘”之称,最早对外的楼盘名为北江豪庭。产品类型包括洋房、小高层、高层和别墅,聘用了银城物业管理。
项目于2008年10月首开,目前还有669套房源未售,时隔14年,居然还有新房没卖完。
项目最近一次开盘是在2022年1月3日,平推60号楼共30套房源,据南京网上房地产显示,目前还有26套未售,毛坯均价约2.8万/㎡,户型建面约100-142㎡。
二手房方面价格更是比新房价格还低,据链家网显示项目二手房挂牌均价24196元/㎡,成交单价在22000-24000元/㎡之间,最近的一次成交价格为25361元/㎡。
之所以去化艰难,主要有两大问题:首先便是区位问题,项目位于雨山路板块,而同一板块内有纯新地铁盘龙湖天曜,8-11层的低密楼盘,紧邻地铁10号线雨山路地铁口,周边还有17万方的龙湖天街,虽然比北江锦城贵了2000元/㎡左右,但无论是从户型设计,还是从居住的舒适度来说,北江锦城都比不过龙湖天曜。
其次项目2004年拿地,土地使用年限缩水17年,新房价格并无任何优势,且与周边二手房无倒挂,甚至比二手房均价还要贵4000元/㎡左右,因此此次报名情况也在意料之中。
龙湖天曜
龙湖天曜主力在售3、4、6、9、10号楼,共184套房源(人才56套、无房56套),建筑面积约101、122、137㎡,销许均价30868元/㎡。项目共规划20栋8-11F的小高层,龙湖·天曜是雨山路板块首个“双限价”项目。
项目位于江北中央居住区的核心位置,是龙湖集团在南京打造的首座天街TOD综合体项目,融合自己运营的约17万方的商业-龙湖天街、少量销售型商业、公寓、以及低密洋房于一体。
2021年1月28日,经过5轮竞拍,江浦G115地块被龙湖拿下,成交总价26.4亿,最高毛坯限价2.8万元/㎡。

户型图一览:
101㎡三室两厅两卫
该户型布局设计精巧,宽幅阳台+主卧飘窗很好的保证了采光,U型厨房,方便使用,主卧套房设计,尊享品质。

122㎡四室两厅两卫
该户型整体南北通透,三开间朝南,超大阔景阳台,卫生间干湿分离,超大主卧,独立卫生间,很好的保证了私密性,

137㎡四室两厅两卫
该户型整体方正,南北通透,270°阔景阳台,厨房餐厅一体化,超大主卧空间,尽享品质生活。

项目的精装标准也首次公开,包括基础精装包(跃层)、升级精装包(跃层)和升级精装包(非跃层),升级精装包为2000元/㎡,包括:日立或同等品牌中央空调、百朗或同等品牌新风、方太或同等品牌的烟机灶具、摩恩或同等品牌五金等。
项目周边的配套也是非常好,自带17万方的龙湖天街商业中心,周边还有金陵中学浦口分校、南京工业大学、江苏审计学院等高校,距离汉开学院、明道中学等大概3公里;
周边还有江苏省人民医院浦口分院、浦口中心医院、鼓楼医院江北国际医院;交通更是不用多说,10号线羽山路站就在家门口,距离长江五桥仅1公里,自驾也非常方便,直抵河西繁华,已然是难得的超配枢纽。
样板间一览:
雨山路板块的短板,如教育资源、商业体等资源的匮乏,如今都已经逐步完善之中,此外,雨山路板块距离五桥互通非常近,往返河西、雨山路比较方便…总的来说,雨山路板块的综合实力还是可以的,继江北核心区、城南浦口中心、五桥板块后,在各项基础配套逐步兑现的过程中,雨山路板块实现了逆袭。随着周边小区陆续交付入驻,周边居民对于教育资源的需求势必会更加强烈。


评论