近几年,燕子矶板块的房源备受关注,板块内的万科燕语光年、万象天地四季等盘基本是逢开必火。而随着这些房源的收官,燕子矶板块陷入“房荒”,目前仅有宝能滨江府还有少量房源在售,再者就要等华发G82和颐居G119两幅新地块上新了。
而就在昨天,城北燕子矶华发G82地块传来最新动态,案名公布。
part 1
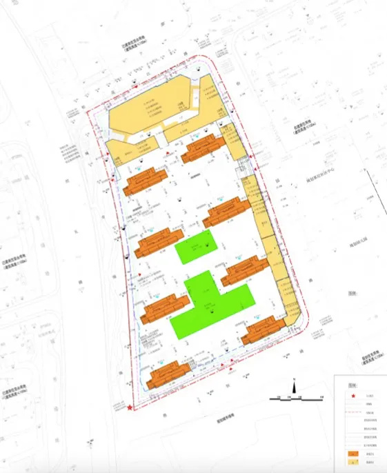
城北燕子矶华发G82地块案名曝光:华发·四季雅筑。共规划10栋27-32层高层住宅,建筑面积约99、119、140㎡,预计4、5月份上市。
地块位于南京市栖霞区燕子矶新城,北侧为松花江路,南侧为燕恒路,西侧为怡园路,东至规划绿地和河道。
在去年9月26日土拍中,NO.2021G82地块经过35轮竞拍,被华发拿下,成交总价29.6亿元,楼面价21200元/平,最高毛坯销售限价32000元/㎡。未来加包后预计均价在3.7万/平左右。
该地块规划用地性质为R2二类居住用地,占地面积约:49865.63 平方米,1.0<容积率<2.8,绿地率≥35%,80米≤建筑高度≤100米,建筑密度<25%。
项目规划设计方案总建筑面积201673.76平方米,其中:地上建筑面积约139623.76平方米,主要功能为住宅、物业、养老及配电房等相关配套设施;地下建筑面积约62050.00平方米,主要功能为地下车库、其他配套设施等。
G82地块被中海燕矶听潮、刚刚收官的燕熙台以及海赋尚城三个小区包围,距离在建地铁6号线燕江新城站直线距离约1km左右,周边底商覆盖还可以,基本的生活配套还是可以满足的。
part 2
目前,燕子矶板块万科燕语光年、燕熙台、万象天地四季等楼盘均已收官,燕子矶板块将进入“房荒”状态,目前板块内纯新盘除了宝能滨江府还有少量房源在售外,就得等待华发G82和颐居G119地块的入市。
宝能滨江府
宝能滨江府在售A5、A6、B6-9号楼房源,户型建筑面积约80、89、109㎡,93、108、122、128、140㎡,精装修交付,销许均价约36011元/㎡,首付3成。
值得注意的是,宝能滨江府作为燕子矶新城的重要地标,宝能滨江金融中心的战略地位毋庸置疑。未来,宝能金融中心整体将打造约60万㎡滨江TOD综合体,总投资约240亿元,计划引入宝能集团华东区域总部、金融总部、科研总部等产业项目以及部分长三角世界500强企业,打造南京的金融新中心。
项目此前一共开盘过4次,首开于去年2月初,当日劲销12.8亿,开盘房源为B地块1-5号楼,户型建筑面积为79-140㎡,共计406套房源,销许均价为35663-36362元/㎡,当时的首付为三成。
户型参考:
建面约128㎡:三房两厅两卫
建面约140㎡:三房两厅两卫
颐居G119
根据规划,项目为商住混合用地,住宅部分将打造8栋28-33F住宅,另外还有1栋3F商业和部分沿街商业。项目为栖霞区燕子矶新城,北侧为松花江路,南侧为燕恒路,西至现状绿地,东至怡园路。
该地块于2021年11月25日,经过竞拍,最终被颐居以总价22.1亿元拿下,成交楼面价17923元/㎡,未来毛坯限价32000元/㎡。项目是颐居在燕子矶继燕熙台之后的第二个项目,据悉项目预计将由颐居、华发联合开发。
该地块为商住混合用地,总建筑面积174804.65㎡,其中地上建筑面积约123304.65㎡,主要功能为住宅、商业、物业、养老及配电房等相关配套设施,地下建筑面积约51500㎡,主要功能位地下车库、其他配套设施等。1.0<容积率≤3,绿地率≥30%,建筑高度≤00米,建筑密度≤30%。根据规划,项目8栋28-33F的高层住宅楼和沿街商业。
二手房方面,根据链家数据显示,融创玉兰公馆、弘阳燕江府、金浦紫御东方等小区成交价已经突破4万/㎡。
其中,融创玉兰公馆去年5月一套101㎡的二手房成交单价更是已突破4.5万/㎡,后续新房上市后,房价会存在一定的倒挂。
part 3
如今的燕子矶,发展飞速!生活氛围正在逐步形成,配套也在不断完善中,尤其是商业资源,迭新速度迅速。目前板块内核心商业配套招商花园城已投入使用,盒马X会员店已正式开业;另一商业综合体万象天地,其商业部分万象汇预计今年就能正式营业。
交通上三条地铁交汇,分别是6号线、7号线和1号线北延。近日,1号线北延线也传来新动态,预计今年年底建成通车。
地铁1号线北延,南起迈皋桥站,北至二桥公园站,线路全长6.54km,包括晓庄站、吉祥庵站、燕子矶站、笆斗山站、二桥公园站。据地铁族消息,截止到12月底,在建的5个站点,已经有4站全部完工,目前只剩燕子矶站洞通未铺设。
商业方面有宝能金融中心、万象天地、招商花园城等,未来还将有大型酒店等;
教育方面有目前已投入使用南师附中燕子矶新城学校,南外仙林分校燕子矶校区、泰晤士国际学校、南京晓庄学院附属小学等文教资源等,未来区域将有46所学校。
医疗方面,栖霞区人民政府已与江苏省人民医院签订共建燕子矶新城医院合作协议,打造约13万方的综合性医院。今年7月,随着燕子矶新城医院最新规划及效果图出炉,项目已开始进入实质性建设阶段。


评论