深圳新房市场似乎已经熄火。从春节前夕至今,入市项目不仅数量少,而且热度也未能引起人们的关注。
据深圳中原研究中心数据,2月7日至今,深圳无住宅项目入市;而同时,目前在售住宅项目却进一步增加至82个。但从2月1日至2月27日,深圳仅成交1954套一手住宅房源,较上个月下跌约45%。
由此可见,深圳购房者目前并非无房可买,而是希望等待更优质的项目入市。
2022年,深圳待入市项目数量多达140多个,而作为销售情况最为看好的片区,南山潜在入市项目数量为29个。数量不多,但关注度依然居高不下,或许南山新盘入市时,可为深圳新房市场带来更高热度。
23个住宅盘,含小户型、地铁盘、海景房
在南山这29个新项目中,其中23个是住宅盘、27个为地铁盘,更有多个新盘拥有看海的条件。
作为深圳经济第一区且拥有较成熟的城市配套,南山的新房向来受欢迎,尤其是面积较小的刚需盘,往往处于供小于求的局面。
比如,在2021年,位于南头古城旁的南城小筑备案入市,均价8万元/平方米,户型42-50平方米,上车的总价仅250万元/套左右,因而尽管周边环境一般、户型一般、梯户比宛如公寓,也依然开盘即售罄。
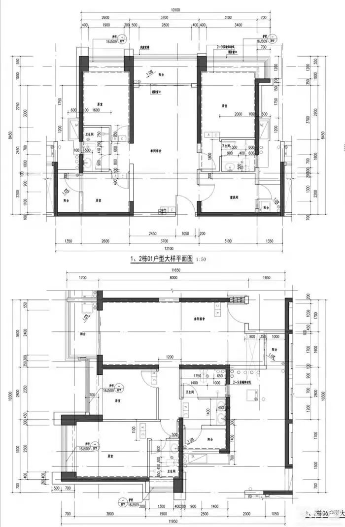
而在这次待入市的29个新盘中,也的确有数个面积段对刚需非常友好的新盘,它们分别是鸿荣源尚璟公馆、金桃园大厦二期、正东名苑和丹华公馆。
不过,这四个项目中,有两个项目一些拥有不利因素,购房者可提前了解后再综合考虑。
鸿荣源尚璟公馆
片区:南头
户型:60-80㎡
地铁:12号线同乐站(今年通车)
周边二手房指导价:约9万/㎡
项目位于南坪快速和前进路交汇处的北侧,属于南头片区。同时,由于这一片区靠近宝安中心区,基本可以享受两个片区所带来的配套。
在项目周边,有宝安区人民医院、海雅缤纷城、宝安中学外国语学校、新安公园、中山公园等配套。驾车十多分钟,也能前往壹方城、南科大医院、欢乐港湾等地。
而鸿荣源尚璟公馆自身也是个地铁上盖物业,在建的12号线同乐站就在旁边,非常符合刚需的出行需求。
根据规划信息,项目占地0.72万平方米,总建面6.77万平方米,由两栋51、52层的高层住宅组成,带来679户房源(含55户人才房)、300个停车位。

房价方面,项目旁边的小区豪方天际花园、前海东岸,参考价在9-9.9万元/平方米左右。而南头片区上一次入市的新房南城小筑,备案均价8万元/平方米。
正东名苑
片区:南油
户型:42-90㎡
地铁:南山书城站、南山站、南光站
周边二手房指导价:约9.5万/㎡
项目位于海德二道、南光商业街交汇处,属于南油片区。这一片区发展较早,因而周围城市面貌并不算崭新,而正东名苑则在居民区内,周边住宅较为密集。
配套方面,项目与11号线南山站、9号线南山书城站的直线距离都只有500米,步行时间约7-8分钟,距离12号线南光站(今年通车)也是10分钟步程。
商业方面,片区有华彩新天地,更大型的商业需要去到海岸城。此外,项目的学区也值得关注。项目周边的小区划在向南小学和学府中学学区内,这两所学校的升学成绩较为不错(仅供参考,具体的学位信息请以开发商公布为准)。
根据规划,正东名苑占地1.85万平方米,总建面约15.94万平方米,规划建设3栋3高层,含办公、居住、商业等功能。
而项目最吸引人的,则是它所带来的小户型房源。根据深圳中原研究中心的信息,正东名苑将带来42-90平方米的住宅户型,而目前网上也传出项目59-143平方米的户型图,但暂未确定图片的真实性,仅供参考。



房价方面,项目旁边的南光城市花园参考价格为9.47万元/平方米,而片区内上一次入市的新盘中泰印邸,备案均价为10.5万元/平方米。
丹华公馆
片区:西丽
户型:56-100㎡
地铁:不靠近地铁
周边二手房指导价:约8.4万/㎡
项目位于打石一路南侧,在玖裕名苑旁,属于西丽片区。
西丽是近年来的开发重点片区之一,但目前区内的配套仍不如南山其他片区完善。
目前,丹华公馆并不靠近地铁站,而距离在建的13号线石鼓站,步行时间也需要15分钟左右。此外,项目周边有万科里、悦方广场和天虹商场,周边另有第二高级中学、南方科技大学医院、西丽高铁站、西丽生态公园等配套。
而丹华公馆最值得注意的是,项目的土地性质并非普通住宅。根据西丽中心区法定图则,丹华公馆的土地性质为“R3”,即配套宿舍。
事实上,这一片区周边的居住地性质都是R3,与普通住宅用地不同,R3宗地在学位申请上往往处于劣势。
项目用地面积4.03万平方米,总建面31.81万平方米,户数约3000多套,体量并不小。
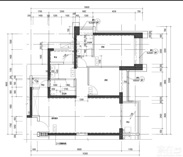
目前,网上传出了项目的户型图,有意向的购房者可以作为参考。



房价方面,万科云城(公寓)的二手房价为8.4万元/平方米,而旁边同为宿舍性质的玖裕茗苑,2021年备案均价为8.5万元/平方米。
金桃园大厦二期
片区:南山中心区
户型:81-118㎡
地铁:1号线大新站
周边二手房指导价:5.9-8.4万/㎡
项目位于桃园路南侧,大新村旁,是早已入住的金桃园大厦的二期项目。
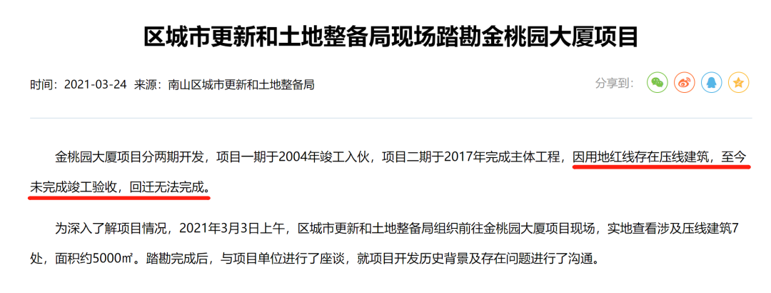
根据政府网站的消息,在2003年,金桃园大厦一期就已建成对外销售,而二期项目也早在2015年就获得施工许可证,如今项目也已是现房。
在2021年,金桃园大厦二期仍然涉及“用地红线存在压线建筑”,未完成竣工验收,后续再无消息传出。
项目属于南山中心区,片区也是发展较早,目前城市面貌较为老旧。但同时,项目的居住氛围也较为成熟。
项目在1号线大新站旁,周边有南山区人民医院、天虹商场、南山图书馆,以及新宇时代和欢乐颂等购物中心。
根据施工许可证信息,金桃园大厦二期建筑规模2.83万平方米,网传户数为190户、车位106个,请以开发商公布信息为准。
房价方面,金桃园大厦一期的参考均价为5.9万元/平方米,旁边的前海金岸均价8.4万元/平方米。


评论