文 | 番茄君
3月13日,网友@光明小董在微博发布了万悦山二期璟庭的户型图。
此次被公开的共有3个户型段,分别为:79平方米的三房两厅一卫;89平方米的三房两厅两卫;118平方米的四房两厅两卫。
作为今年被深圳住建局列入第一季度待入名单的项目,宏发万悦山官方公众号近期也只更新了疫情防控出入要求,3月13日更是直接宣布暂时关闭体验中心。
部分网友对这四张户型“路透”图留言表示,“二期户型没有一期那么香了。”
那么,此番预计推售678套房源的万悦山二期璟庭,户型到底“不香”在哪里呢?
二期首设79平户型,89平只能做三房
先来看看万悦山二期的户型。
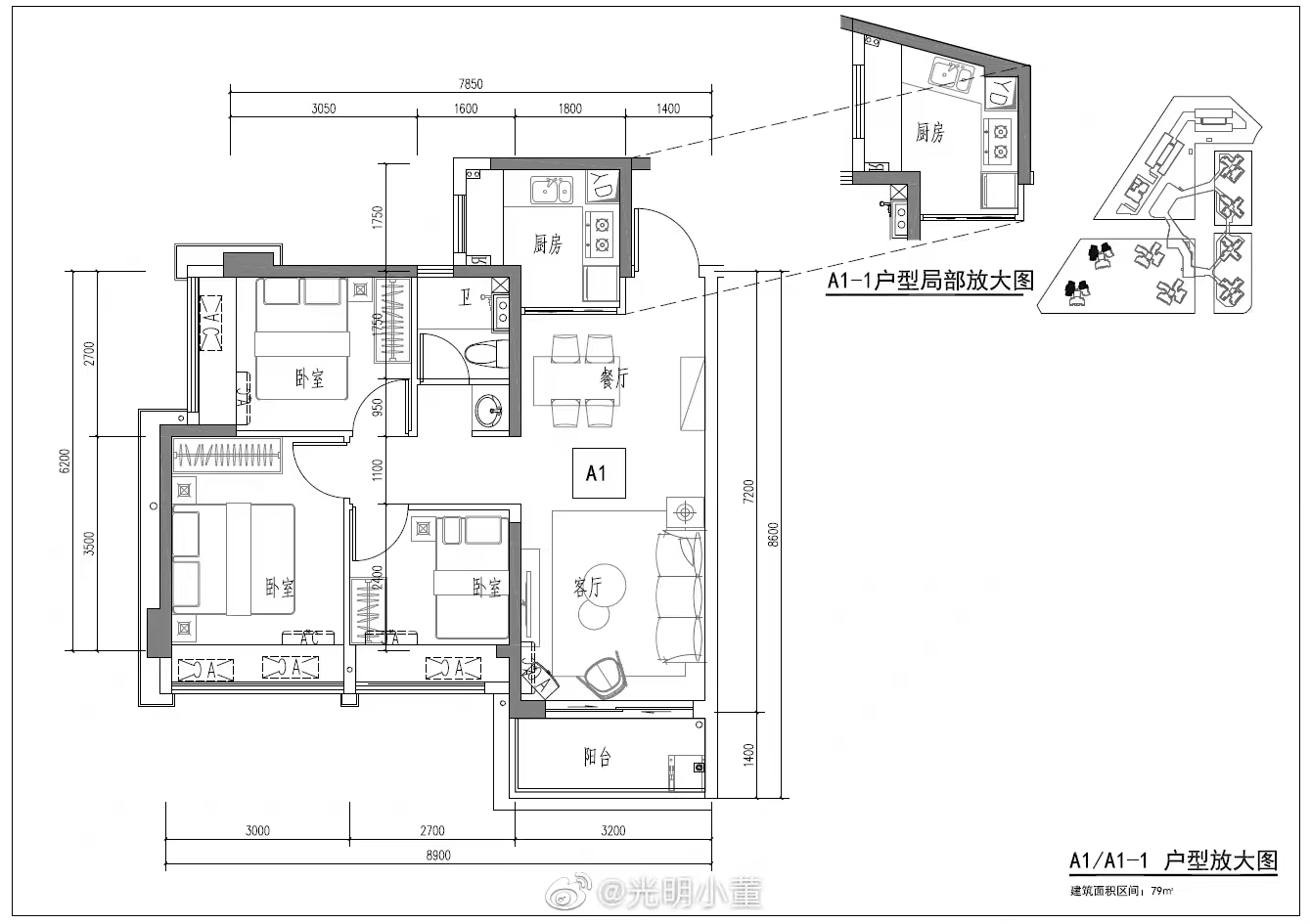
在万悦山璟庭设置的三个户型段里,不同于一期名庭提供的最小的户型段为88平方米,此番二期璟庭将最小的户型设置成了79平方米,更适合刚需族。
据悉,79平方米的户型被设计成三房两厅一卫,客厅配备了一个等宽的大阳台,整体来看空间分布较为合理,但从局部放大的厨房细节来看,该户型的厨房空间不是方正的布局。
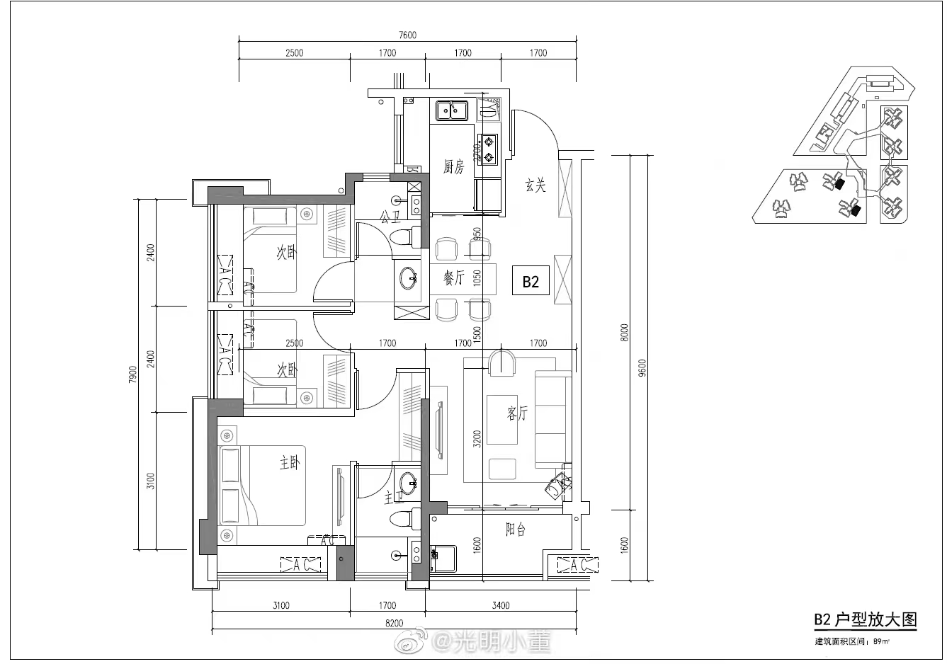
89平方米的户型被打造成三房两厅两卫,共设计了B1和B2两类户型。其中B1户型的厨房空间同样不是方正布局。

这个户型段与一期同等的89平方米的户型可做四房相比,赠送面积少了很多。
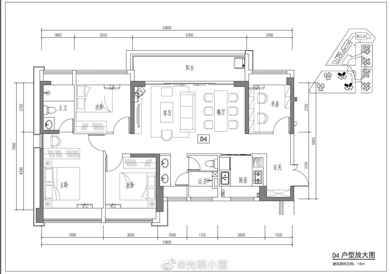
118平方米户型被设计成四房两厅两卫,与一期119平方米的户型没有太大出入,此外二期的户型还被改成横厅设计。
除了户型,另有去过展厅的网友表示,展厅内贴有提示,告知:不得设置小区围墙,公共开放空间需24小时无条件对公众开放。
精装交付?二期均价或为“5字头”
宏发万悦山项目之所受欢迎,除了一期户型使用率高,还和它的配套相关。
该盘位于光明大道与华夏路的交汇处,与6号线光明大街站直线距离约850米,是万丈坡城市更新建成项目。
项目占地面积4万平方米,总建面约21万平方米,规划8栋商品房住宅、1栋保障性住房、2栋高层写字楼和开放式商业街区,可满足日常生活所需,周边还有星河天地、龙光玖龙台等项目商业可互补。
此外,项目1公里范围内,有东周小学、光明中学、实验学校、中科大医院和新城公园,配套较为齐全。
去年2月,一期项目万悦山名庭备案入市,均价4.89万元/平方米,毛坯交付,户型88-209平方米,推售的367套房源。通过严苛的审核,最终共有1070批客户入围认筹,最低入围积分高达72.3分。
此次传出二期推售的678套房源预计装修交付,按照深圳装修交付价格标准,均价最高不超过5.19万元/平方米。
项目目前还在施工建设中,一期交房时间为2022年10月31日,二期目前还未备案。
万悦山二期入市后能否延续一期战绩,界面楼市将持续关注。


评论