01.深圳住建局:二手房参考价会适时调整,近期公布
据财联社3月29日消息,针对日前市场有关“深圳二手房参考价将上调3%-5%”的传言,深圳市住建局在今日进行了答复。
深圳市住建局方面表示:“二手住房成交参考价格的发布是为落实我市房地产调控的工作安排,按照《深圳市住房和建设局关于建立二手住房成交参考价格发布机制的通知》要求定期发布,我们会视调控要求和市场形势适时对价格做出相应调整,并于近期在深圳市住房和建设局官方网站、微信公众号等官方网络平台发布。”
02.推66-165㎡、426套住宅...中洲湾、金地工业旧改最新动态
福田相隔不远的2个大型项目,深圳房地产信息网援引家在网友消息,金地工业区旧改、中洲湾(中洲滨海华府)有了最新进展。
1、金地工业区旧改
金地工业区旧改已经有部分在施工了,另一部分用绿布掩盖起来了。
金地工业区城市更新单元位于福田区金地-沙头片区,南依金地一路,东接沙尾路,北靠福强路,西至沙嘴路。
项目近7号线沙尾地铁口,所处位置属大金沙片区,包括四大城中村、三大工业区和一个旧住宅区综合改造。
项目拆除用地面积11.9万平方米,开发建设用地面积6.2万平方米。计容积率总建面 67.4万平方米,包括写字楼、公寓、住宅、酒店、购物中心及一所九年制公办学校、一所幼儿园、配备3块公园绿地用地。
项目共分为两期开发。其中一期拆除范围用地面积约9.62万平方米,开发建设用地面积约4.13万平方米;二期拆除范围用地面积2.27万平方米,开发建设用地面积2.1万平方米。
其中,二期计容建面24.11万平方米,规划容积率11.4,含住宅6.83万平方米,商业、办公及旅馆业建筑12.55万平方米,商务公寓2.5万平方米,公共配套设施2.23万平方米。
从此前据消息曝光的项目效果图可以看到,项目改造后看着很高大上。
2、中洲湾
中洲湾2期最新进展,部分楼体建设已经出地面了。
项目二期推售新品户型为建筑面积约66-165平方米,共426套。
中洲湾最新一期开盘是在2021年12月,推售建筑面积约为88-165平方米住宅产品,毛坯交付,价格区间为8.1万-10.7万元/平方米。
中洲湾(中洲滨海华府)总占地面积9.7万平方米,总建面约126万平方米,集海景住宅、服务式公寓、写字楼、酒店、16万平方米集中式商业和商业街等多元业态为一体。项目大一期主要由2栋塔楼和3栋服务室公寓组成,项目大二期由沿街商业、商务公寓和住宅组成。
中洲湾(中洲滨海华府)2-4期共有1624套住宅。其中,2期426户、3期1198户,共1624套住宅,4期为保障房和回迁房,共1356户(保障房240户,回迁房1116套)。
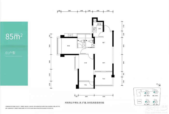
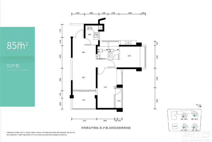
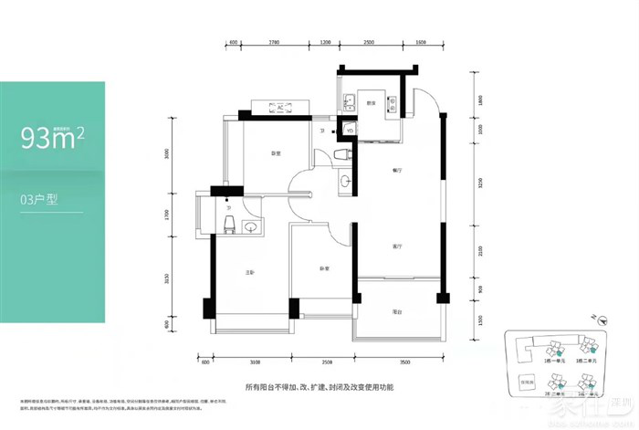
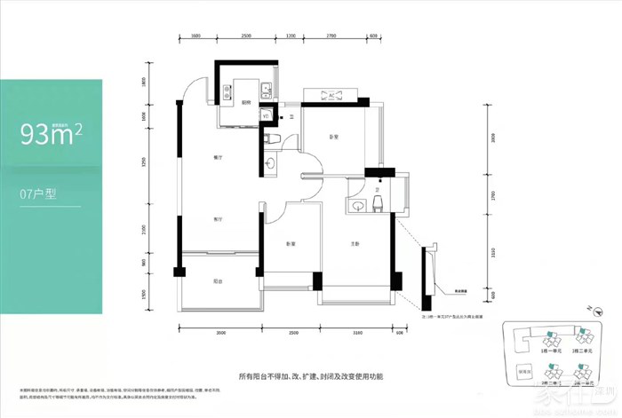
03.1056套,建面约85-93㎡,壹成中心十区5大户型图曝光
据深圳房地产信息网援引家在网友消息,壹成中心十区的5种户型图曝光。
壹成中心十区本次共推1056套,建面约85-93平方米精装住宅,主力3房2卫户型产品。项目前9区已全部推出,目前壹成中心十区已经建到22层高,展示空间也已于3月26日开放。
户型图:




壹成中心见证了龙华从工厂林立到如今十四五规划的都市区的蝶变,以60万平方米壹方天地繁华商业之资,引领约550万平方米龙华商圈焕发深圳中轴城市生活。
壹成十区距离地铁4号线龙华站不远,全新打造1056套建面约85-94平方米精装住宅新品,产品全面升维,实现生活方式的再度进阶。
04.南山区发布2022年第一批城市更新单元计划:拆除用地约10.9万㎡
据“深圳市城市更新网”消息,3月25日,福城街道福城南产业片区土地整备利益统筹项目土地整备规划(草案)公示,实施范围约77.0万平方米。
3月26日,南山区城市更新和土地整备局发布了2022年城市更新单元计划第一批计划,本次计划仅有1个项目,即富通新一代信息技术产业园城市更新单元。

1.富通新一代信息技术产业园项目
项目位于南山区西丽街道坪山路与朗山路交汇处,拆除范围用地面积10.9万平方米,拟更新方向为新型产业功能,申报主体为富通光纤光缆(深圳)有限公司。

拆除重建用地范围内应落实不少于3.81万平方米用地用于建设城市基础设施、公共服务设施或城市公共利益项目。单元规划阶段按规定落实深圳市城市总体规划等相关法定规划的管控要求。
更新单元计划有效期2年,自2022年3月26日起至2024年3月25日止。
2.福城南产业片区地整备利益统筹项目
项目位于龙华区福城街道,实施范围77.03万平方米。
经规划研究,项目总留用土地面积18.31万平方米,规划容积102.05万平方米。
其中住宅29.46万平方米(含公共住房4.11万平方米),商业2000平方米,厂房57.1万平方米,产业配套用房11.85万平方米(含小型商业服务设施3500平方米,配套宿舍11.5万平方米),公共配套设施(含地下)3.43万平方米。另配建3处社区体育活动场地共占地6400平方米。

界面楼谈 扫描二维码,一起买房吧!



评论