文 | 番茄君
深圳将在4月29日迎来今年首次集中供地拍卖,这8宗宅地总建面达107万平方米,分别位于宝安、光明、龙华、龙岗、坪山和深汕。
回顾去年的宅地拍卖,深圳一共出让了39块住宅用地,其中除了光明A646-0083在建的龙光玖瑞府项目已经入市之外,剩余地块都还在开发建设中。
就在大众把目光集中在光明时,殊不知去年出让了7宗宅地的龙岗,也有了动静。
其中,位于南湾街道的一宗限价地被命名为特发香阅四季园,界面楼谈昨天去实探了项目,目前工地内正在进行基坑建设。
周边多小区和学校,居住氛围较好
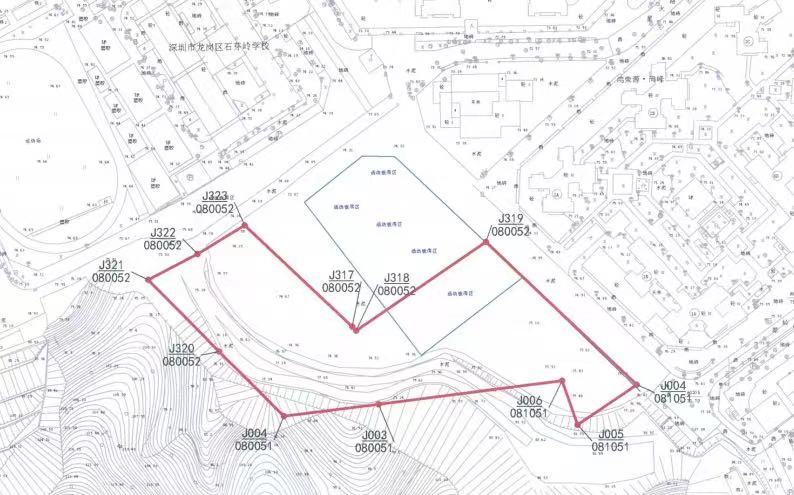
香阅四季园位于龙岗区香阅路和星火路交汇处,是龙岗G06301-0416宗地在建项目。
据悉,该地块占地面积为1.37万平方米,总建面为6.15万平方米,去年9月被深圳市特发衡佳房地产投资有限公司以12.07亿元拍下。
界面楼谈搭乘地铁3号线至大芬地铁站下车,项目虽然与地铁站直线距离有900米,但两地之间没有直行通道,步行至项目工地,花费了近20分钟。
项目目前正在进行基坑建设,工地内时不时传来钻地的噪音,施工围墙上还安装了喷头降尘,除了工作人员,出入频繁的还有黄色的泥头车。
由于香阅四季园在香阅路和星火路交汇处西侧,在香阅路的东侧的中海阅景花园、鸿荣源尚峰和宇宏健康花城,又是另外一种光景。
这三个小区整齐排列在香阅路,目测都是30层+的高楼,楼层的阳台上挂满了晾晒的衣物,看起来入住率很高。
除了东侧的小区,在星火路的北侧,排列着九年一贯制的石芽岭学校、慢城小区以及深圳实验承翰学校,香阅四季园与它们的距离最远只有400米。
而在项目的西侧,还修建了石芽岭信义体育公园,是休闲放松的好去处。
整体来看,项目周边市政面貌较新,居住氛围还算不错。
商业氛围弱,限价入市,价格倒挂空间大
香阅四季园虽说周边的居住环境不错,但目前没有能在十分钟内到达地铁站是硬伤。
不过,这个硬伤也即将在今年年底被治愈了。项目西侧有正在修建中的地铁14号线,该路线的石芽岭地铁站就设在距离项目600米的盛宝路上,香阅四季园与石芽岭地铁站仅隔着宇宏健康花城小区。
作为首条东部快线,14号线起点为福田岗厦北站,共设置了18座车站,终点站为坪山沙田站。开通运营后,片区居民从石芽岭站上车,搭乘4站即可到达福田。
地铁问题解决了,剩下的还有商业氛围。
根据土地出让合同,香阅四季园自身只配建4524平方米商业,项目周边的小区虽然各自配建了底商,基本能满足日常生活需求,但缺乏大型集中商业,整体氛围较弱。
医疗配套方面,项目旁有尚峰社区医院,另外在1.2公里内,还有深圳市第三人民医院和百合医院。
综合来看,香阅四季园还算符合刚需群体的居住需求。目前,与项目只有一路之隔的鸿荣源尚峰花园,二手房参考价都已达到6万元/平方米,实际成交价更是远在参考价之上。
而香阅四季园是限价地块在建项目,根据土地出让公告,未来毛坯入市均价最高不超过5.1万元/平方米,如果日后开发商选择装修卷交付,根据深圳精装价格梯度,入市均价也不能超过5.4万元/平方米,价格倒挂空间较大。若项目户型设计实用,未来有望成为石芽岭片区的热盘。
不过,目前项目还在基坑工作,根据施工规划,桩基工程将在今年9月竣工,今年内入市希望不大。


评论