01.推337套119-175平户型,福田湾尚庭玺预计年中开盘
近日,深圳房地产信息网援引家在网友消息,福田湾尚庭玺家园预计年中要开卖了,共376套住宅(含保障房),预计对外出售有337套住宅,户型为建筑面积约119-175平方米。
该项目前身为水围旧改,分为南北地块。其中:
北地块湾尚庭玺住宅共376套,套内面积小于90平方米的302户,占比比例80.75%。
南地块湾尚骏玺住宅共321套,其中保障房150套,套内面积小于90平方米的319户;商品房171套,套内面积小于90平方米的169套,占比98.83%。
项目简介
湾尚庭玺骏玺家园原为水围村旧改,位于福田区福田街道,福强路和皇岗公园一街交汇处,距离地铁福民站约500-800米左右。总建筑面积近24万平方米,集住宅、商业等功能于一体的综合社区。

开发建设用地面积约2.4万平方米,计容建面约15.5万平方米,其中:
住宅7.3万平方米(含保障性住房9640平方米);
商业、办公及旅馆业建筑合计5.4万平方米;
商务公寓1.2万平方米(含人才公寓2370平方米);
公共配套设施1.6万平方米(9班幼儿园建筑面积3000平方米)。
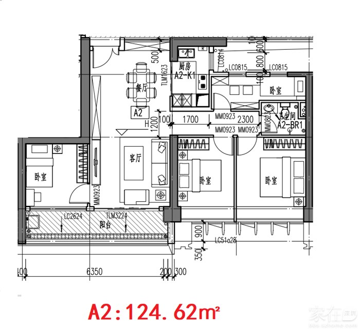
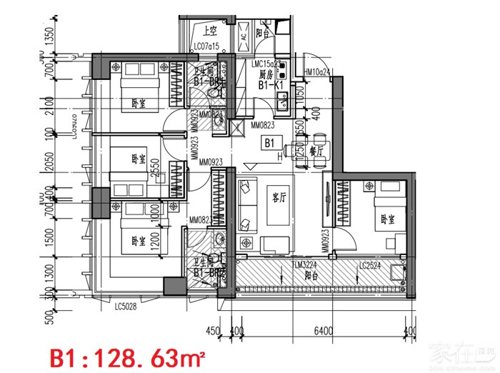
户型图



02.均价2.9万/㎡,总价218万起,满京华云曦花园最新备案价出炉
满京华·云曦花园获批预售许可证,并在住建局官网公示,本次可售房源804套,位于项目的2/3/4/5/7/8/9/10栋,建面约63-95平方米,均价约2.9万/平方米,总价区间为218-350万/套。
项目基本信息:
满京华云曦花园位于大鹏新区的迎宾北路与迭福路交汇处东南侧,属于大鹏中心区域。
项目占地面积约3.8万平方米,总建筑面积约16.4万平方米,涵括了住宅、公寓、商业等多重业态。整体容积率3.0,低密属性,在当前深圳新房市场中实属难得。车位比约1:1.12,可满足全住户的基本停车需求。
社区共规划有10栋楼,均为18-22层的高层建筑。其中可售住宅800户,位于2-5号楼及7-10号楼(具体分布楼层以开发商公布为准)。
其余的为综合楼、回迁楼及一所占地2400平方米的9班幼儿园。
另配备了文化活动室、便民服务站、社区老人日间照料中心等重要公共配套,以及占地1800平方米的公交首末站,居家、出行等需求都能较好地满足。
03.共990套,龙岗超大盘又一栋住宅将动工!
日前,深圳房地产信息网援引家在网友消息,龙岗超级大盘信义金御山居1栋建设规划许可证和平面图公示。
据悉,信义金御山居项目为原龙岗园山DY01片区旧改,该项目共23栋住宅(包含2栋保障房),可说是一超级大盘。
信义金御山居项目2-11栋桩基础工程建设已于今年2月发证并动工,本次公示的为项目1栋。
也就是说继2-11栋动工后,该项目的1栋也即将动工了。
信义金御山居1栋用地面积1.69万平方米,建筑面积14.25万平方米,容积率5.5,层高157.6米、49/3层,绿化率40%,车位910个(充电273),990套住宅,套内小于90平方米960套,占比96.97%。
项目参数表显示,信义金御山居1栋总共5个单元,其中1单元49层,2-5单元32层,共990套住宅。
信义金御山居项目距离3号线永湖站较近,周边配套齐全,除了有地铁外,还有安康学校,保安学校,四联小学,康乐中英文学校等学校;
目前周边在售新盘有星河盛境去年5月备案住宅382套、商铺56套,位于1、2、3栋,均价5.32万元/平方米,均为精装交付。
界面楼谈 扫描二维码,一起买房吧!



评论