
核中核重磅纯新盘花语天境户型图流出!
刚刚,从置业顾问处得到最新消息,花语天境项目户型图基本成型,分别为建面约143㎡和168㎡两种户型图。
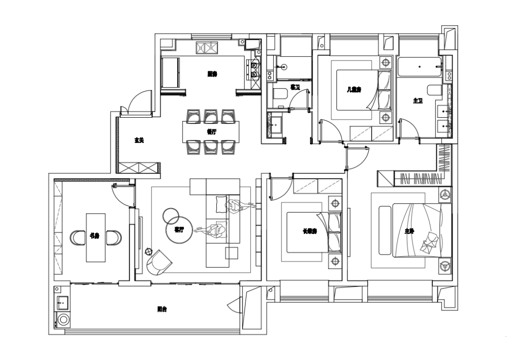
建面约168㎡户型:

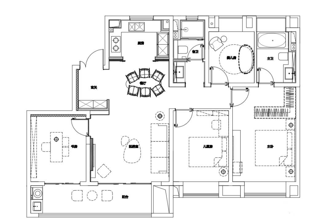
建面约143㎡户型:

乍一看,两款户型基本相同,但项目置业顾问表示,两款户型大致格局是相同的,仅有部分细节处有些出入。
经过对比,发现以下几点:
1、首先从阳台可以发现,进深不一样,143㎡户型台盆和洗衣机尺寸卡的刚刚好,而建面约168㎡的户型除台盆和洗衣机外,还有一小块空余的地方;
2、建面约168㎡的客卫多了一个飘窗,而建面约143㎡的则没有飘窗;
3、建面约168㎡的主卫有两个台盆,而建面约143㎡的只有一个台盆。
项目预计本周公开售楼处,毛坯销售限价为38000元/㎡,预计未来房价超4.3万/㎡,将打造江北第一个5恒科技系统住宅。
项目前身为江核G19地块,2021年9月26日被中铁建以底价拿下,成交总价16.8亿,最高毛坯销售限价38000元/㎡。
根据规划,项目分为 A、B、C(地下空间)三个地块,本次公示内容为A、B、C三个地块。
A地块:规划用地性质为Bb商办混合用地, 用地面积17068.48㎡,容积率≤5.9,建筑高度≤150米,拟建总建筑面积约139968.7㎡,其中地上建筑面积约103074.7㎡,地下建筑面积约36894㎡。
主要功能为办公、商业、酒店式公寓、配套用房、地下停车库及其他配套设施,地上建筑面积占比:办公≥60%(其中自持办公用房≥20%)、商业≥10%、酒店式公寓 ≤30%。
B地块:规划用地性质为R2二类居住用地,用地面积20667.75㎡,1.01≤容积率≤2.8,建筑高度≤100米,拟建总建筑面积约75879.92 ㎡,其中地上建筑面积约59171.62㎡,地下建筑面积约16708.3㎡,主要功能为住宅、配套用房及地下车库,0≤AB地块综合容积率≤4.2。
项目的住宅体量较小,只规划了4栋24-25层住宅,其余为办公、商业、酒店式公寓、配套用房、地下停车库及其他配套设施。
C地块:规划用地性质为S1城市道路用地(地下空间出让),用地面积2137.08㎡,主要功能为地下停车库。项目位于江北新区顶山街道,紧邻七里河大街北侧、横江大道东侧,属于江北核中核地段,位置优越,值得一提的是项目离江很近。
附近有规划的地铁15号线沙滩广场站、地铁4号线北延线滨江站,出行便捷,距离滨江公园约400m,正对绿地工农红军小学,一街之隔便是绿地海悦、扬子江金茂悦。
另外,项目还紧邻江苏省肿瘤医院,鼓楼医院江北国际分院、扬子江会议中心,江北图书馆,南京美术馆新馆,青奥体育公园等优质的配套资源。
此前,花语天境为江核毛坯限价最高的项目,但经过上周五土拍后,江核毛坯限价被刷新。
江核G03地块底价成交,最终被颐居建设拿下,拿地总价约22.7亿元,毛坯限价40000元/㎡,楼面地价23644元/㎡!

目前江核在售的新房众多,目前,中海观江樾和保利阅云台正在报名;
另外,还有花语熙岸府、佳源玖棠府、颐和铂岸江璟、越江时代、晴翠府等新盘在售。
花语熙岸府:项目主力在售14-20号楼,建筑面积约97、117㎡,销许均价34592元/㎡。
佳源玖棠府:还剩最后2栋住宅楼,加推时间待定。
颐和铂岸江璟:主力在售2、3、4、6、7、8、9号楼,建筑面积约110、130、165㎡,销许均价33957元/㎡
越江时代:主力在售1、2、3、6、9号楼,建筑面积约110、128、143㎡,销许均价33274元/㎡,首付3成。
晴翠府:建筑面积约112、127、129、143㎡,目前多套房源主力在售中,销许均价37020元/㎡。
来源:推广


评论