01.华富北棚改最新专规出炉!安置房外全部人才房、保障房
今日(6月6日),福田区城市更新和土地整备局公示《华富街道华富北片区棚户区改造项目专项规划(草案)》(以下简称规划)。
华富北棚改项目位于笔架山公园附近,涉及多个小区,项目将为市二院扩建改造贡献用地。改造后将在华富北片区汇聚一流的教育资源、一流的医疗资源、一流的生态环境,打造一座国际化、现代化、生态型的新住区。
值得一提的是,项目住宅部分除用于搬迁安置住房外,应当全部用作人才住房和保障性住房。
这一项目改造范围用地面积18.28万平方米,拆除用地面积16.35万平方米,开发建设用地面积9.92万平方米,规划容积为53.02万平方米。

其中住宅45.87万平方米,商业4.1万平方米,公共配套设施3.06万平方米(最终配建规模以政府批件为准),另配建社区体育活动场地占地6000平方米。
项目住宅部分除用于搬迁安置住房外,应当全部用作人才住房和保障性住房。

将建成新住宅区,还为市二院扩建改造贡献用地,以及两所幼儿园。
据了解,项目占地约14.7公顷,涉及多个小区,拟拆迁建筑面积约25.1万平方米。项目由人才安居集团旗下福田人才安居公司担任项目实施主体。
02.华润城润玺2期收官之作,预计6月入市?
深圳房地产信息网援引家在网友消息,华润城润玺二期还有一批住宅,称是收官之作,位于4栋,总共354套,其中350套120平方米户型,4套叠墅,预计6月份入市。
相关信息显示,华润城润玺二期1-3栋已经售罄。
这一批住宅于2021年12约开盘,共1024套房,分别为120平方米、185平方米、270平方米的三种户型,均为精装交付。
备案价格最低12.2万元/平方米起,最高13.9万元/平方米;均价约13.2万元/平方米。
项目简介
华润城位于南山区深南大道与铜鼓路交汇处,是大冲旧改项目,涉及改造的各类建筑物达1400多栋,体量之大,名列深圳在建城中村旧改之最。
润府共分5期开发,以半围合式布局沿华润城外围而建。前几期均已卖完。
据披露的信息显示,华润城润玺二期位于深圳南山区粤海大涌三路以东,为大冲村改造专项规划02-04地块(宗地号T306-0042);
建设用地约2.4万平方米,总建面约28.6万平方米,容积率8.53;住宅1374户,其中超过83%为小于90平方米户型;停车位1734个。
项目设计有6栋建筑,1-4号楼为60-62层的住宅,高近200米;5号楼同为住宅仅4层,楼高13.45米,建筑面积约2016.6平方米;6号楼为商业+文化室。
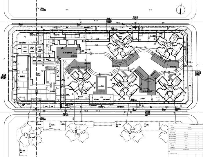
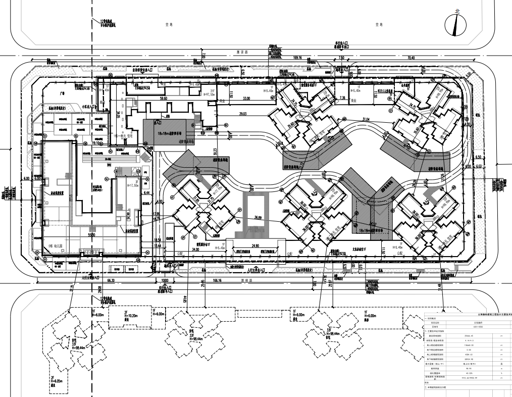
03.沙井云海臻府规划许可公布!今年或入市
6月2日,深圳市规划和自然资源局宝安管理局公布了“云海臻府”项目《建设工程规划许可证》及总平面图。

项目位于宝安沙井国际会展中心片区(宝安区沙井街道展景路一侧)。项目用地面积约29.6万平方米,规定建筑面积约11.87万平方米,规定容积率≤4.00,建筑限高100m。
其中,包含住宅10.98万平方米(其中普通商品房7.28万平方米,安居型商品住房1.1万平方米,市场租赁住房2.6万平方米),商业1100平方米,18班幼儿园5940平方米。商品房住宅户数为744套,其中90平方米以内为558套;自持租赁住宅为560户,均为90平方米以内户型;安居型商品房为144套;均为90平方米以内户型。

云海臻府项目是2021年9月28日第二批集中供地的拍卖地块(A301-0583),由特建发以22.5亿元+2.6万平方米人才房面积竞得。按照此前拍地的公示,该宗地普通商品住房销售均价不得高于4.61万元/平方米,安居型商品房平均售价不得高于2.3万元/平方米、最高售价不得高于2.42万元/平方米。
项目位于宝安沙井西北部,受深圳国际会展中心、海洋新城两大重要规划包夹。区域以东为沙井先进制造业集合区,向北跨越海上田园为东莞滨海湾新区。项目旁边就是深圳国际会展中心。地块与融创华发深圳冰雪文旅城项目(开发单元二)地块相邻,文旅城将作为未来项目联系最为紧密的配套。
界面楼谈 扫描二维码,一起买房吧!

评论