深圳“棚改第一村”的未来面貌终于面世。
6月6日,深圳市福田区城市更新和土地整备局公示《华富街道华富北片区棚户区改造项目专项规划(草案)》,公布项目未来将建成53万平方米体量的综合体。
追溯来看,包含华富北棚改项目在内,深圳自启动棚改以来,已有23个棚改项目在各区展开、完成,它们不仅为原住民带来全新的家园,也为深圳带来更多保障性住房。
棚改6年,23个项目获推进
界面楼市统计发现,自2016年启动棚改以来,深圳已有15个棚改项目已动工/完工,另有8个棚改项目正在进行前期工作。


早在2016年,深圳借助罗湖“二线插花地”改造整治的契机,出台了《深圳市政府购买棚户区改造服务管理办法》《深圳市棚户区改造项目界定标准》文件,也标志着深圳棚改进程正式起步。
后续,在2018年,深圳再次发布《关于加强棚户区改造工作的实施意见(征求意见稿)》及政策解读,进一步明确了棚改和旧改的区别。
一是范围不同。棚改适用于老旧住宅区,尤其是楼龄超过20年、居住功能不完善的房屋或危房,而旧改的范围更广,包括旧住宅区、旧工业区、旧商业区、城中村和旧屋村等。
二是补偿奖励标准不同。棚改的产权调换,按照套内建筑面积1:1或建筑面积不超过1:1.2的比例执行,允许增购不超过10平方米的建筑面积;旧改的补偿标准由项目实施主体与业主进行协商,无统一标准。
三是实施模式不同。棚改以公共利益为目的,采取政府主导,以人才住房专营机构为主,其他企业可以参与。并且,除回迁房外,其余外的住宅部分全部用作人才住房和保障性住房;旧改采取政府引导、市场运作的模式,除搬迁安置住房和按比例配建的人才住房、保障性住房外,全部用作商品性质住房。
除了政府作为实施主体、补偿标准有章可循外,在当时,棚改的签约率达到“双95%”就可以进一步推进。甚至,在龙华“双90%”就可以申报棚改项目,盐田更是“双85%”就可以申请,也使得棚改的推进过程会较旧改更顺利。
2020年,据深圳住建局对外公开的数据显示,深圳符合棚改条件的老旧小区约700个。
但同时,住建局也透露,由于棚改难以实现盈亏平衡,导致持续性不足,实质推进的项目数量较少。对此,深圳也不断优化和探讨新的棚改措施,目前有多个棚改项目取得实质性进展。而部分项目也开始引进市场主体作为建设方,如福田绿洲花园棚改项目,就以招标的形式面向市场寻求实施主体。
深圳“棚改第一村”,一年内完成签约、清拆过程
在上述多个棚改项目中,华富村棚改项目的关注度格外高,甚至被誉为“深圳棚改第一村”。
一方面,因为项目是深圳2016年出台棚改文件,即“棚改新政”后,由政府主导的首个棚改项目;另一方面,华富村的进展堪称“神速”——项目从启动到拆除,用时不足一年,尤其是项目原有约2400户住户,却仅用时17天,签约率便突破95%。
这个小区始建于1987年,是深圳市最早的政策性住房小区之一。占地约14万平方米,有住房建筑40栋,共2343套。由于楼龄超过30年,小区设施老旧,安全问题凸显,也因此被列入福田区首批十个试点棚改项目。
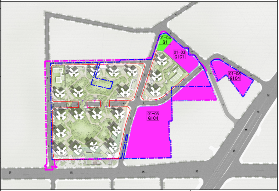
目前,华富村分为华富北片区项目、华富村东西区项目进行。
其中,华富北片区棚改项目的拆除用地面积达16.35万平方米,开发建设用地面积9.92万平方米,规划容积为53.02万平方米。规划建设住宅45.87万平方米,商业4.10万平方米,并配建12班幼儿园、社康中心、菜市场等,共计20栋25-48层的高楼。同时,深圳市第二人民医院也将跟随重新建设,医院建筑面积将新增14.4万平方米,病床数增加1636张。
华富村东、西区棚改项目拆除用地面积约14万平方米,开发建设用地面积9.3万平方米,计容积率建筑面积为64.2万平方米。其中,住宅43.3万平方米,带来15栋超高住宅,含13.5万平方米的人才住房和保障性住房,占比达31%。
此外,项目规划建设商业、办公及旅馆业建筑面积18.52万平方米,带来1栋358米、65层的超高层塔楼,并配建21班幼儿园、54班九年制学校等公共配套。

目前,华富北片区棚改项目已开始进入主体建设阶段,而华富村东、西区棚改则分别在基坑、出地面数十层的状态。
从地理位置来看,华富村在福田中心区周边,区位较优,居住配套纯熟。项目背靠笔架山,左邻中心公园,紧靠华富中学、体育中心、深圳市第二人民医院,周边1公里内还有深业上城、百花小学、实验学校等配套。
并且,项目靠近地铁7号线横木岗站,未来也将是地铁口项目,加上将规划写字楼、酒店、学校等业态,未来环境及配套将更为看好。

目前,片区内缺乏新房供应,周边近年仅岁宝壹品这一个公寓项目开盘入市,备案均价为8.2万元/平方米。
二手房方面,华富村周边指导价最高的小区,为2009年建成的海馨园,指导价为10.4万元/平方米,最低的是1998年建成的依山居,指导价6.5万元/平方米。
而华富村在2017年的货币补偿标准为5.5万元/平方米,其在2016年时的成交价也多在5.5万元/平方米上下。


评论