今朝所鉴,历经时光精心酝酿
非凡时刻,一城目光尽落于此
2022年6月17日19:00
锦云天府二批次媒体答谢宴暨三批次亮相发布会
在在来福士·观雲·27楼隆重举行
这是一次期待已久的聚会,不负一城久候,盛启锦云新篇章
全城目光汇聚于此,共鉴传奇

对话锦云 共襄天府
这是一次与城市的巅峰对话,字节跳动、购房通、房小团、锐理数据等20余家主流媒体菁英荟萃一堂,共话城市未来、共同见证锦云天府启程新篇。
锦云天府礼待各界媒体朋友,至善臻意,这注定是一次情浓味美的聚会。觥筹交错间,老友邂逅新朋,推杯换盏,把酒言欢,叙饮抒怀,共瞻锦云美好。
三倍熔断,火热售罄
作为怡心湖第一个刚四三倍熔断的项目,5月22日,锦云天府二批次盛大开盘,创下3小时劲销5.8亿的销售奇绩。锦云天府备受广泛关注与热情期待,火热售罄,引领全城。锦云天府火爆的背后,除了离不开各界人士的支持与厚爱。更是其在怡心湖板块内,难寻敌手的核芯地段价值及硬核产品力。
望怡心湖内外
难寻敌手
怡心湖板块作为成都继浣花溪、锦城湖、兴隆湖之后,又一个临湖高端居住区,周边二手房及新房价格均已双双破2万,高端楼盘更是突破3万+,2022年第2批次供地公示怡心湖清水限价已达27000元/㎡,由土拍可窥见区域的价值,怡心湖是当之无愧的城南置业热土,对于购房者来讲,置业正当时。
而在寸土寸金的怡心湖板块,锦云天府二批次以13888元/㎡起,首付仅50多万起的劲爆价格,让高冷的国际城南,怡心湖畔,给予了大众购房者上车城南的机会。
锦云天府作为区域内最后的在售项目,已然绝版,错过再无。
锦云天府难寻敌手除了劲爆的价格之外,更难得的是锦云天府占位怡心湖片区成熟居住板块的核心腹地,因其地理优势,全天候一站式的醇熟配套,繁华兑现,无须等待。
【怡心湖畔,公园藏品】
锦云天府用1条府河+3座公园的自然资源,诠释美好生活真谛,享约1000亩怡心湖生态环境,约540亩三江公园,约6000亩南湖湿地公园,藏在公园里的大城。
【醇熟兑现,内外繁华】
锦云天府除自带约60000㎡的商业体,外部举步即达华汇天地二期商业mall、中海右岸环宇坊等商业旗舰,入住即享便利生活。
【全龄教育,巅峰成长】
锦云天府拥有丰富的教育资源,双流区棠湖中学,怡心第一实验学校,双流区协和实验小学,双流中学协和实验初中等,一站式全龄成长教育系统。
【邻双地铁,咫尺高新】
锦云天府享5号、19号线(在建中)双地铁赋能,轻松抵达高新区大源、金融城等核芯区域,19号线更是无缝串联双流机场、天府国际机场。
【高端医疗,守护一生】
项目周边拥有华西川府医院、成都第七人民医院、华府医院、天府新区人民医院……优质医疗,为健康之路保驾护航。
城南难得
大城更难得
纵观成都,近年来土拍市场百亩级地块已成罕见,而在寸土寸金的国际城南,怡心湖畔,锦云天府约299亩的恢弘巨著,一经面世,便从小盘扎堆的怡心湖板块内脱颖而出。
大盘规划之上,锦云天府围合式布局,打造出约7000㎡公园式中庭,并实现部分楼栋约180米奢阔楼间距。在后疫情时代,最大程度保证业主居家生活与社区生活的多样性,以及充分保证私密性及采光度,居住品质全面跃级。
不负一城厚望
三批次荣耀加推
锦云天府乘势而上,三批次即将荣耀加推。本批次主推44号楼、45号楼,以109-139㎡/141㎡舒居三房及大四房为主力产品,楼栋朝向、户型空间、产品配置多维度跃级,更加深入洞察居者的美好生活向往。本批次仅推出仅447套房源,单价13888元/㎡真香价格,巨大剪刀差,醇熟的区域发展,优质的四房产品,必定受到市场极高关注。
单价13888元/㎡起
买怡心湖阔景四房
如若在同区域购买3房,在锦云仅需首付多3万,直接跃级变四房,锦云天府阔景四房,不仅能满足房子的舒适需求,更彰显了房主的大家气度!约9.2米的超大阳台设计,让每一户业主都私享空中花园,约25㎡酒店式套房主卧,大飘窗+衣帽间+独立卫浴,闲适从容,张弛有度,约9.2米大宽厅,轻松容纳家庭聚会、朋友派对。同时,四房的设计也能满足三代同堂的需求,非常适合现在二孩家庭,也能满足三胎家庭需求,一步到位,不用换房。
单价13888元/㎡起,买怡心湖阔景四房
建面约109-141㎡阔景平层
二批次3倍熔断 三批次加推在即
户型鉴赏
C1户型 建面约109㎡
三室两厅两卫

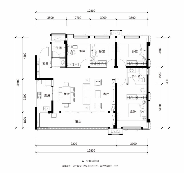
C2户型 建面约139-140㎡
四室两厅两卫

来源:推广


评论