6月22日,江北核中核纯新盘-花语天境重磅亮相!
该项目由中铁建打造,整个项目共打造了4栋住宅,最高毛坯销售限价38000元/㎡,加上基础装修和升级装修包,预计未来均价要卖到4.4万/㎡,总价600万起。
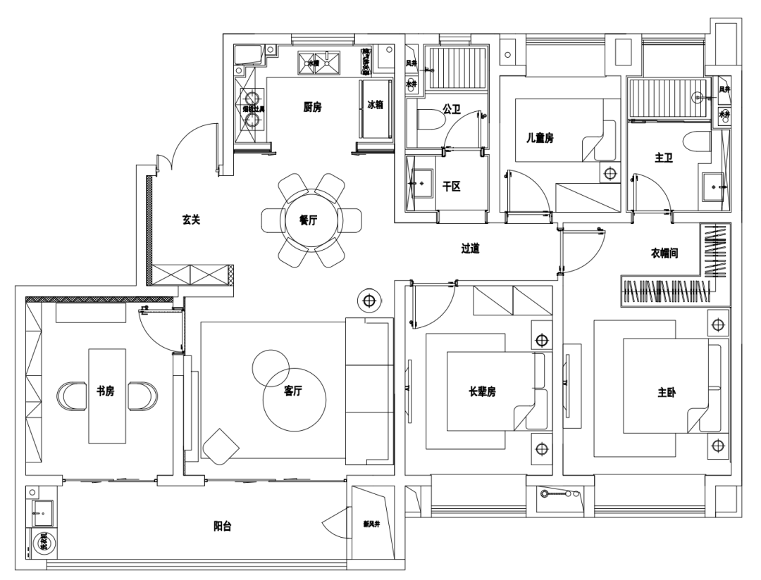
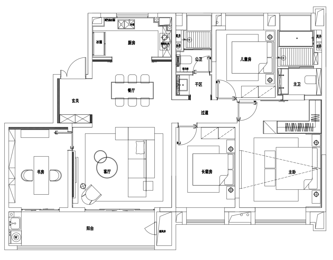
从公开现场得知,项目预计将于本月首开1、3号楼,共计192套房源,户型建筑面积为143㎡、168㎡,两梯两户。
01、花语天境住宅仅4栋高层!毛坯限价3.8万/㎡!
花语天境只规划了4栋24-25层住宅,其余为办公、商业、酒店式公寓、配套用房、地下停车库及其他配套设施。
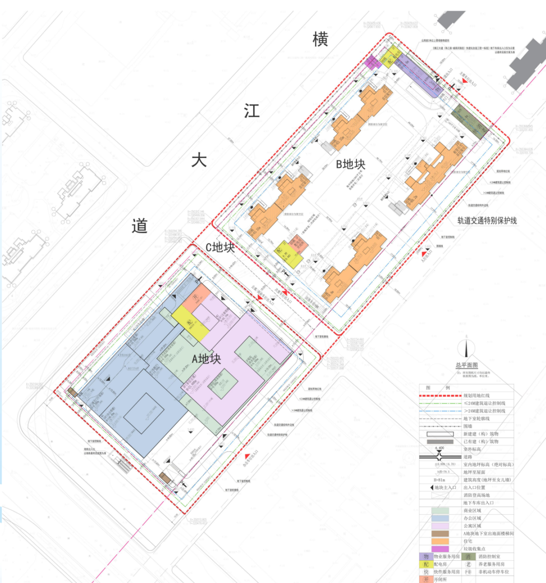
项目前身为江北核心区G19地块,2021年9月26日被中铁建以底价拿下,成交总价16.8亿,最高毛坯销售限价38000元/㎡,这也是目前江北新区最高的毛坯销售限价。
根据规划,项目分为 A、B、C(地下空间)三个地块,本次公示内容为A、B、C三个地块。
A地块:规划用地性质为Bb商办混合用地, 用地面积17068.48㎡,容积率≤5.9,建筑高度≤150米,拟建总建筑面积约139968.7㎡,其中地上建筑面积约103074.7㎡,地下建筑面积约36894㎡。
主要功能为办公、商业、酒店式公寓、配套用房、地下停车库及其他配套设施,地上建筑面积占比:办公≥60%(其中自持办公用房≥20%)、商业≥10%、酒店式公寓 ≤30%。
B地块:规划用地性质为R2二类居住用地,用地面积20667.75㎡,1.01≤容积率≤2.8,建筑高度≤100米,拟建总建筑面积约75879.92 ㎡,其中地上建筑面积约59171.62㎡,地下建筑面积约16708.3㎡,主要功能为住宅、配套用房及地下车库,0≤AB地块综合容积率≤4.2。
其中涉宅部分,根据规划,4栋住宅楼层高为24-25层,其中2-4号楼为首层架空设计。
C地块:规划用地性质为S1城市道路用地(地下空间出让),用地面积2137.08㎡,主要功能为地下停车库。
02、精装细节曝光!颜值品质双双在线!
项目本次公开共打造了两个样板间,同时所打造的五恒科技系统的住宅也是江北首个,项目共打造了143、168㎡两个户型,主打改善。
花语天境的外立面在整个江核很有辨识度,大面积采用金属一体板,给人一种十分高端的感觉。
样板间客厅开间约4.9米,层高3.15米,空间感十足,客厅的背景墙和格栅为交付标准,背景墙旁边设置了隐形门。
阳台为宽约1.8米,长8米的跑道式阳台,采光和通风俱佳!
值得一提的是,项目的客厅、卫生间、厨房等公区都是大理石地面,凸显美观的同时,直接将豪宅气质拉满!
厨房采用了花岗岩的水槽,德格的油烟机和灶具,还预留了双开门冰箱的位置。
卫生间镜柜、门框均采用了罕见的金属包边,另外主卧和客卧的卫生间配备了杜拉维特的悬浮式马桶、台盆、花洒,汉斯格雅的五金和电热毛巾架,细节十分到位。
主卧的衣帽间是交付标准,这在整个南京都很少见,另外主卫配备了“魔镜”,可以连接蓝牙,播放歌曲、预告天气等。
项目最大的亮点在于所打造的五恒科技系统,即恒温、恒湿、恒氧、恒洁、恒境,采用了采取江水源热泵,相较于使用地源热泵、空气源热泵的科技住宅,更加节能环保。
03、配套完善!目前板块还有这些可选…
项目位于江北新区顶山街道,紧邻七里河大街北侧、横江大道东侧,属于江北核中核地段,位置优越,值得一提的是项目离江很近。
附近有规划的地铁15号线沙滩广场站、地铁4号线北延线滨江站,出行便捷,距离滨江公园约400m,正对绿地工农红军小学,一街之隔便是绿地海悦、扬子江金茂悦。
另外,项目还紧邻江苏省肿瘤医院,鼓楼医院江北国际分院、扬子江会议中心,江北图书馆,南京美术馆新馆,青奥体育公园等优质的配套资源。
目前江核在售的新房众多,目前保利阅云台正在报名,另外,还有花语熙岸府、佳源玖棠府、颐和铂岸江璟、越江时代、晴翠府、中海观江樾、万科首开新悦光年、晴樾府等新盘在售。
花语熙岸府主力在售14-20号楼,建筑面积约97、117㎡,销许均价34592元/㎡。
佳源·玖棠府预计7月加推9、14号楼,建筑面积约89、102、112、113㎡,共268套房源。
颐和铂岸江璟建筑面积约110、130、165㎡,项目主力在售2、3、4、6、7、8、9号楼,销许均价33957元/㎡。
越江时代建筑面积约110、128、143㎡,目前主力在售1、2、3、5、6、9、12号楼,销许均价33387元/㎡,首付3成。
晴翠府建筑面积约112、127、129、143㎡,目前主力在售珑府1、2、3、4、6号楼,翠府1-6号楼,销许均价38513元/㎡。
中海观江樾目前主力在售10、12号楼,共196套房源,销许均价34430元/㎡,首付3成。 万科首开新悦光年建筑面积约135㎡,目前主力在售4、5、7、8号楼,共102套房源,销许均价32844元/㎡。
晴樾府主力在售5号楼,共120套房源,建筑面积约112、129㎡,销许均价36855元/㎡,首付8成,验资330万元。
来源:推广


评论