根据南京网上房地产数据显示,上周(7月4日-7月11日),南京新房累计认购1088套,累计成交1592套,相较于上上周(6月27日-7月3日)南京新房累计认购2757套,累计成交1869,认购量下降约60.5%,成交量下降约14.8%。
part 1
新房方面,上周仅有3盘领取销许,分别是高淳的仁恒海和院、嘉璟峰和华发四季雅筑,其中仅有嘉璟峰达到摇号要求。
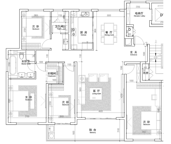
7月11日上午,嘉璟峰报名结果出炉,本次加推的64套房源,共吸引444组买房人报名,综合中签率14.4%。
嘉璟峰本次新领F10号楼销许,共64套住宅(人才13套、无房20套),户型建面160㎡,全装修销许均价45716元/㎡,另有4000元/㎡装修升级包,首付8成,验资542万元。
虽然嘉璟峰每次只推一栋楼,但项目整体加推速度较快,6月29日刚刚加推,7月初就再次申领销许,而且每次中签率都很低。
两次去化成绩都不错,据南京网上房地产官网数据显示截至目前共加推了2次,124套房源,仅有4套未售出。
值得一提的是,本次推出的是建面约160㎡的房源,但有两个全新户型,其中西侧为167㎡的四开间朝南户型,东侧为169㎡带L型转角阳台的户型。
据悉,带本次加推结束后,140㎡-160㎡的房源基本已经售罄,接下来可能在7月-8月上市建面约100㎡-120㎡小户型,而且,目前嘉璟峰200㎡户型样板间正在搭建当中,预计很快就会公开。
167㎡户型:四开间朝南,四室两厅三卫
该户型四开间朝南,采光面极佳,三卧皆有飘窗;这个户型的卧室紧凑度较低,个人空间私密性更强;

169㎡:四房两厅三卫,L型观景转角阳台
这个户型分布于10号楼、12号楼,双卧朝南,皆为套间设计,主卧空间比较大。这套个户型最引人注目的就是带有270度L型转角观景阳台,面向东北侧的南京国际友谊公园;

part 2
至于待售的新盘方面,江心洲纯新盘江尚紫薇和南部新城G121两个项目户型图于近日传出。
江尚紫薇项目预计8-9月公开样板间,四季度首开上市。
项目面积段为143㎡-205㎡,项目预计总房源量不到500套,打造纯改善社区,含装修包预计未来卖到5万/㎡。
建面约143㎡三房两厅两卫A户型:全部为边户,格局方正,270°环幕方厅,主卧套房双台盆、双飘窗、超大衣帽间。

建面约143㎡四房两厅两卫B户型:四开间朝南,全屋带有飘窗,主卧卫生间双台盆设计。

建面约173㎡四房两厅三卫:三间卧室朝南,其中两间卧室带有独立卫生间。

建面约206㎡四房两厅三卫:四开间朝南,南向开间约18.6米,横厅约7.2米,双阳台设计,而且还是双套房设计。

该项目位于建邺区江心洲梅子洲路以东、文萃街以北地块,东至汇德路,北至文治街。项目总用地面积29287.46平米,用地性质为二类居住用地,定位为高端住宅标杆,注重小区整体品质打造以及内部环境营造。
项目整体体量并不大,一共只有5栋25F高层住宅,共计不到500套房,定位为高端住宅标杆。
根据效果图可以看出,项目的窗墙比很高,从置业顾问处了解到,项目在园林设计上,将打造“自然森林居所 + 酒店化轻奢私享”的模式。
该项目于去年9月27日被奥体新城以总价23.5亿元拿下,楼面价32096元/㎡,毛坯限价42850元/㎡!当时江心洲G71地块作为开发商报名最多的热门地块之一(约15家),经过27轮竞价,仅5分钟便触顶最高限价!并且当时的出让条件明确要求,该项目不得合作开发。

其实从区位来看,奥体建设G71地块位于岛南。目前江心洲岛南还在发展建设中,配套还在不断完善中,项目周边目前只有洲岛和园一个已经交付的安置房小区,不远处就是仁恒江湾世纪,整体生活配套较为欠缺。
但随着五桥的开通,岛南可以更加便捷的串联起河西、江北,这里与河西南隔江相望,出行便捷,而且项目距离夹江隧道口很近,开车出行更加方便。
此外,项目周边自然文化景观配套比较多,如,大明文化旅游度假区、青奥森林公园、南京眼步行桥等;地块旁边就是在建的金陵中学高中部,东北侧就是江心洲中心小学,周边教育资源丰富。
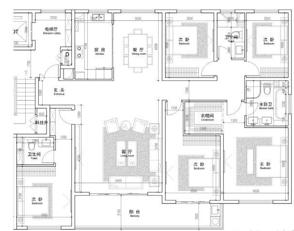
与此同时,近日南部新城G121地块的户型图也同步公开。
据悉,项目最大户型为建面223㎡的科技房,目前项目销售团队已组建好,预计最快三季度首开,户型建面分别约142、176、179、223㎡
根据规划,项目住宅部分将拟建8-18层洋房、小高层,建面约142、176、179、223㎡,层高约3.1米,得房率预计全部在80%以上,其中洋房得房率超85%,小高层得房率超81%。
142㎡3房2厅2卫

176㎡4房2厅2卫

179㎡4房2厅2卫

223㎡5房2厅3卫

该项目位于南部新城南部,地块北至机场四路,南至机场六路,西至国西路特色街巷,东至国际路。这里也是南部新城最核心的机场跑道板块,集浓厚的历史积淀和超前的板块规划于一体,区位优势明显,紧邻金地大成汇文府。
地块东侧有规划地铁5号线,并在地块内设有地铁5号线大校场站,地块东北方向有已建110KV变电站、规划公交首末站、消防站、能源中心,地块西侧为规划12班幼儿园,地块东侧国际路为城市主干道。
总用地面积 61965.45平方米,其中:
A、B分区用地性质为Bb商办混合用地,用地面积分别为10289.83 平方米、11004.57 平方米。
C、D分区用地性质为R2二类居住用地,用地面积分别为15408.66平方米、16517.44 平方米。根据规划,项目将拟建12栋住宅,其中6栋8F小高层和6栋17F高层。
E、F、G分区(地下空间出让),用地性质为Bb商办混合用地,用地面积分别为1132.85 平方米、1260.47平方米、6351.63平方米。
地块位于土山机场净高保护范围内,在土山机场未搬迁或未得到部队书面同意意见前,建构筑物最高点绝对高程不得大于72米。
从图片上可以看出来,建筑外立面是全玻璃幕墙,立面极具现代化,豪宅感满满。据了解,奥体建设将把南部新城G121项目打造为区域高品质典范住区!
去年出让时,G121的地块的限制还是非常高的,需引进1家科技类企业、1家商贸类企业、1家物联网企业,对于3家企业的具体要求如下:


评论