进入下半年,深圳新盘的入市脚步开始加快,按照往年新盘入市的节奏,预计下半年新盘将密集来袭。
据深圳住建局公布的《2022年三季度计划预售商品房情况》,接下来或将有35个新盘入市,涵盖深圳“10+1”区,共20536套房源。其中,福田、罗湖、南山三大关内房价较高的片区,合计仅6个新盘入市,可见三季度刚需新盘占据主要位置。
对此,界面楼市筛选了配套条件较优的刚需新盘项目,为大家提供参考。
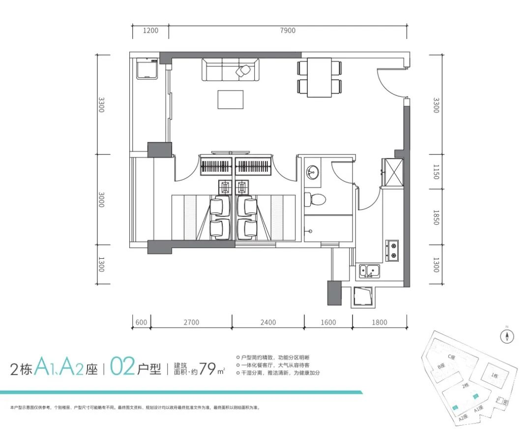
南山正东名苑:小至59㎡
这个新盘位于南山南油片区,海德二道西侧,向南小学旁。项目早在2021年就已封顶,几次传出入市消息,但未见实际动作,目前已是现楼。
正东名苑周边有三条地铁线,其中,与11号线南山站、9号线南山书城站的直线距离都只有500米。今年内,项目南侧还将迎来12号线,距离南光站也是10分钟步程。
商业方面,正东名苑和海雅缤纷广场、茂业百货直线距离500米以内,能享受其带来的集中商业,更大型的购物中心海岸城也不过1公里左右距离。但项目周边的商铺较低端,有待项目1万平方米的商业做补充。

学区方面,小学为隔壁的向南小学,初中为直线1.2公里外的学府中学。其中,学府中学隶属南山区第二外国语学校(集团)。
正东名苑占地1.85万平方米,总建面约15.94万平方米,规划建设3栋3高层和一栋低层建筑。项目未来将提供住宅6.1万平方米、共628户,办公3.77万平方米,1万平方米商业,共628户住宅,容积率6.4,停车位862个,车位比约为1:1.4。
项目的户型图已曝光,为59-102平方米单位、127-143平方米复式产品,共494套。整体来看,59平方米的户型为一房一厅,或可改为2房;78平方米为2房1卫,90平方米为三房一卫,得房率均一般。而复式方面,由于二层挑空,得房率也并不高。

房价方面,周边的二手房指导价在8.5-9.5万元/平方米区间。而据乐有家房价数据,南油片区的均价为10.4万元/平方米。
整体来看,正东名苑在居民区内,位置和视野较为一般,部分户型的得房率也并不高。不过,作为南山少有的小户型楼盘,预计项目小户型房源会较为抢手。
光明宏发万悦山:已开展
宏发万悦山是光明的“网红盘”,从一期开盘“日光”之后,外界就一直非常关注二期的入市时间。
项目在光明大道与华夏路交汇处,二期产品命名为“璟庭”。由于在6号线光明大街站与凤凰城站之间,项目可以享受两大片区带来配套,包括中科大深圳医院、COCO City、光明新城公园、深圳实验学校(光明部)、光明中学等等,而接下来万达广场也将开业,进一步丰富周边的配套。

璟庭占地约1.6万平方米,总建面约10.2万平方米,由4栋29-30层的住宅和低层商业组成。住宅分别为8栋、9栋、10栋1单元和2单元,共678户,759个车位,车位比约为1:1.2。
据悉,璟庭将推出79-118平方米的3-4房产品,共计678套。从已曝光的户型图来看,项目的刚需属性依然明显,使用率较高,79平方米的三房产品在市场上较为少见。
项目的一期在2021年3月入市,推售375套房源,户型约88-209平方米,均价约4.89万元/平方米,开盘即售罄。
综合来看,项目的优点是大体量产品,自带商业配套,户型方正合理,并且所在片区是光明配套较好的区域。但项目距离地铁站并不算近,到最近的光明大街站需要12分钟。此外,本期项目两面靠近马路,也会面临噪音及扬尘问题。
光明金地峰境誉府:已开样
金地峰境誉府的前身是“原光明农场职工诉求土地”,整个项目分为4个地块建设。其中,金地峰境瑞府于2020年10月、2021年9月分别备案629套、583套住宅,均价5.13万元/平方米,两度开盘“日光”。
目前即将入市金地峰境誉府,位于光侨路和碧竹路之间,距离在建的6号线二期支线的光明小镇站约600多米。项目周边配套一般,需要依靠光明大街站旁的商业、学校等配套。

金地峰境瑞府占地面积1.5万平方米,总建面7.9万平方米,由4栋楼组成。目前,项目未有户型信息流出,也仅1、2张效果图曝光。
光明中海观园:毛坯4.44万/㎡
除了上面两个光明新盘外,中海观园也值得关注。项目位于光侨路与凤兴路交汇处,距离光明城高铁站直线约500米,目前周边的生活配套不多。
项目占地3.2万平方米,总建面25.8万平方米,由6栋商品住宅楼、1栋自持租赁住房、1栋公共住房以及1所幼儿园组成,将带来1265套可售商品住宅。

户型方面,中海观园主推建面83-128平方米的三房住宅产品,户型较为方正,空间设计合理,部分户型南北通透。由于项目前身是A503-0093宗地,根据土地出让要求,毛坯销售均价不高于4.44万元/平方米。

除了上述几个新盘外,同样位于光明的松茂御城也值得关注。项目在13号线二期北延线月亮路站旁,分2期建设,共2126套住宅房源,一期或现楼交付,这在新房市场上非常少有。而改善家庭则可关注位于龙华的深铁珑境花园、中海闻华里、大悦铂悦苑等项目。


评论