01.1575套房源,4.2万/平起!光明中海观园获批预售
光明中海观园获批预售,项目于8月18日起意向登记。
预售房源共7栋住宅,其中1栋、2栋、5栋、6栋、7栋、8栋为普通商品房,1265套;3栋为安居型商品房,276套。
本次预售房源包括1262套建筑面积约83-128平方米住宅产品,均为精装交付;均价约4.73万元/平方米。
项目销售流程:
意向登记:8月18日-24日
意向登记人名册公示:8月25日
公证摇号:8月26日
线下选房:8月27日-31日
项目位于光明凤凰城片区龙大高速和光侨路处,项目旁边有特发观月台、龙光玖瑞府;背靠在建的百花公园。
中海观园占地3.2万平方米,总建筑面积约18万平方米,由8栋高层建筑组成,分别为6栋高层住宅+2栋人才房,配建幼儿园及商业等。
02.共724套住宅,宝中都市茗荟花园2期最新平面公示
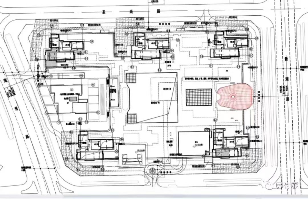
近日,深圳润恒集团有限公司开发的“都市茗荟花园(二期)”(宗地号:A004-0155)进行了总平面图修改。
项目位于宝安中心区,用地面积3.29万平方米,容积率≤3.25。
主要修改内容(详见图中云线圈示部分)如下:
坐标系修改为2000国家大地坐标系;南侧车行出入口处增加水景,车行流线相应调整;中部城市公共广场内增加500mm覆土并调整消防车回车场位置,楼梯玻璃顶轮廓调整;
小区主出入口门楼顶盖与泳池的轮廓及标高调整;东侧商业入口异形玻璃屋顶轮廓调整,裙房局部幕墙轮廓调整;补充标识冷却塔平台上空标识;
C座出入口由南侧调整至西侧;塔楼屋顶构架取消,修改为斜撑;经济技术指标表修改:经进一步核算,各个分项核增建筑面积修改,建筑面积合计数据相应修改,绿化覆盖率由40%修改为30%;
经核查,修改后仍符合规划要求。

都市茗荟花园(二期)建设用地面积3.29万平方米,总建面约20.4万平方米,计容建面12.8万平方米。
规划停车位900辆。

户总为724户,其中,小于90平方米的543户,占比达75%;
项目详情
都市茗荟花园在2019年8月备案房源位于一期ABCD栋,共413套,均为住宅产品,均价约10.9万元/平方米,总价在448-5071万元/套,目前已售罄。
项目二期是由1栋A、B、C、D、E五座及底层商业组成,和一期类似也配备有幼儿园、游泳池,但二期是呈现凹字型排列,中间部分为城市公共广场和商业休闲街道,使得小区花园并不大。
二期占地面积约为3.3万平米,与一期一路之隔,总建面约20万平方米,容积率3.82,含住宅8.8万平米,商业1.6万平米(附菜场),其余为幼儿园、城市公共通道、地下车库和设备用房等。
03.沙井中粮凤凰里2期要来了?规划调整,宅地大增4万平!
近日,中粮凤凰里2期传来实质进展。
该项目用地规划于近日发生调整,深圳市规划和自然资源局宝安管理局对相关地块规划调整进行了公示,调整后:宅地建面大增4万平方米,配建学校由27班增至36班。
中粮凤凰里2期地块规划调整,宅地建面大增4万平方米
8月,深圳市规划和自然资源局宝安管理局发布《关于[立新水库片区]法定图则02-18、02-19、02-30地块规划调整公开展示的通告》。
经规划主管部门审议并原则通过,拟对[立新水库片区]法定图则02-18、02-19、02-30地块规划进行调整。调整后:
- 宅地地块规划调整,宅地用地面积减少,容积率增高,调整后建面增加约4万平。
- 教育设施用地面积增加,原27班九年一贯制学校,调整为36班九年一贯制学校。
- 在原规划中,提及“三个地块为中粮集团历史遗留问题处理方案的一部分”,调整后,这句话没有了,仅表示“建设前须开展充分的规划环境影响评价”。

界面楼谈 扫描二维码,一起买房吧!



评论