今天,南部新城两幅热门地块规划出炉!共将新增18栋高层、小高层!
据本站统计,在距离2022第二批次集中出让地块不到2个月时间里,目前42幅出让的地块已经有14幅出规划,不少地块都已经开始发布招聘广告,进展神速!
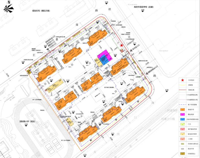
本项目位于南部新城南部,地块北至汇景南路,南至夹岗门路,西至规划小学用地,东至祥天路。
地块东侧隔祥天路为在建南部新城南京外国语学校,地块南侧有现状绕城公路,规划用地性质为R2二类居住用地(100%),总用地面积约:29998.68平方米。
根据规划显示,项目拟建9栋18F高层住宅及相关配套设施,地上建筑面积约为7.84万平方米(含地上计容建筑面积约 7.8万平方米),主要功能为住宅、物业、养老及其他配套用房;地下建筑面积约为 2.97 万平方米,主要功能为配建停车库及相关配套辅助设施。
从效果图看,外立面灰色墙面搭配白色线条,顶部搭配了还金色,项目窗墙比较高,社区景观别致。
今年7月12日,南部新城G24,经过3轮竞拍,最终被华润拿下,毛坯限价48000元/㎡,拿地总价约24.3亿元,楼面地价31155元/㎡!
值得一提的是,G24是南部新城目前最高毛坯限价地块,较于今年4月拍出的三金G02地块(毛坯限价45800元/㎡)上涨了2200元/㎡,也是华润在南部新城落下的“第二子”。
该地块东侧一路之隔就是今年9月将开展招生的南京外国语学校(南部新城校区)以及在建的全民健身中心,地块西侧规划有48班小学、24班初中,未来将享受完善的教育配套。
就在前段时间,华润南部新城G24发布招聘海报,招聘岗位包括:营销、销售、策划类。
02、拟建5栋17F-18F高层!4栋6-8F洋房!保利G26规划出炉!
与华润G24地块周边还有同期出让的金基G25、保利G26、金茂G27三幅地块。目前,保利G26规划也已经出炉!
南部新城G26地块,经过2轮竞拍,最终被保利拿下,毛坯限价47500元/㎡,拿地总价约21亿元,楼面地价30684元/㎡!
该地块位于秦淮区南部新城,东至特色街巷,南至夹岗门路,西至神机营路,北至汇景南路。
地块西侧为规划15班初中用地,北侧为规划12班幼托用地。地块南侧隔夹岗门路有规划加油加气站和规划有轨电车。规划用地性质为R2二类居住用地,用地面积为2737627平方米。
根据规划显示,该项目将拟建5栋17F-18F住宅,4栋6F-8F洋房,总建筑面积约为 8.90 万平方米,其中:地上建筑面积约为 6.84 万平方米,主要功能为住宅、商业、物业用房、社区养老服务用房等其他配套用房;地下建筑面积约为2.06万平方米,主要功能为配套停车库及相关配套辅助设施。
项目外立面是大面积玻璃幕墙,顶部有设计感,窗墙比较高。
沿街的洋房还有社区商铺,极大的方便业主们日后的生活。
G25和G26两幅地块位置相邻,位于南部新城大校场片区的中央活力住区,未来形成面对面竞争的局面。
另外,这两幅地块与G24地块仅隔了一个规划中小学用地,未来与G24地块共享配套。其中,G25地块距离在建的地铁5号线神机营站更近一点。
这两幅地块北侧为奥体建设G121地块和金地大成汇文府、在建地铁5号线神机营站。
目前,同期出让的仅有金基G25地块和金茂G27两幅地块规划未出。
南部新城G25地块,经过一轮竞拍,被金基以27亿总价拿下,成交楼面价为29960元/㎡,未来毛坯销售限价47500元/㎡;
金茂G27地块,成交总价45.4亿元,成交楼面价约15176元/㎡,该幅地块为大校场唯一一幅不设毛坯限价,实行差异化定房价的地块,而且此幅地块也为第二次土拍的“地王”。目前,大校场新房均价在5万/㎡左右,待后续G27地块入市,将直接把大校场的跨度拉高!
据本站不完全统计,目前片区内有在售10家楼盘,分别是:金陵华夏中心、华润·润淮府、金基璞悦和园、翡丽铂湾、锦云台、云萃府、云锦四季、南宸紫阙、金地大成汇文府、金地大成雅境。
另外待售的也有9家楼盘,分别是:边城G124、中北金基G125、云尚紫薇、琥珀云台、三金睿境以及第二批次集中出让的4幅地块,另外,今年第三批两集中土拍中,南部新城预计还有1幅涉宅用地、1幅商办混合用地将要出让,近20个项目贴身肉搏。
从户型来看,目前大校场在售房源的主力户型仍然是140㎡左右,但从待上市的9个新盘中,3个纯新项目的主力户型降低至100㎡左右,其中琥珀云台105㎡户型最小,这几款小户型预计入市都会比较抢手。
在售的项目中,南部新城面积最小的为金基璞悦和园95㎡户型,但目前该项目仅剩少量房源在售,金陵华夏中心、华润·润淮府有100㎡左右户型房源在售。
在待售的几个纯新盘中,边城G124起步180㎡,但项目体量较小,仅有2栋住宅100多套房源,如果品质做得好一些基本也不愁卖。
中北金基G125地块据悉将打造100㎡左右小户型,并且项目体量也较小,仅2栋住宅,一侧还有沿街商业,后续应该也会很抢手!


评论