文 | 深圳买房计划 过云雨
深圳楼市真是越来越卷了。
9月已过半,光明的宏发万悦山、深业颐瑞府、联发悦尚居、花润里四大刚需盘进入“混战”模式。
而另一边,南山豪宅盘也齐齐冒头,招商玺家园日前已备案604套住宅产品,位于项目的2、3、4、5、6栋。住宅建面约124-424平方米,均价约12万元/平方米,单价区间约10-1612万元/平方米,总价区间约1244-6904万元/套。
天健悦湾府、万科瑧湾悦、颐城栖湾里、招商玺家园四大豪宅盘,掐指一算,这次会带来超过1900套、价格千万起步的豪宅。
有意思的是,这四大豪宅都在前海、蛇口片区,都是国企打造,也有面积段比较接近的户型,预计售价也都是千万起步。
那么,如果回归到大家最关心的户型方面,谁最能打呢?
01.天健悦湾府 户型最小、资金门槛最低
天健悦湾府有三个户型,为01的164平方米户型、02/03的113平方米户型、04/05的113平方米户型。
不仅有四大豪宅里最小的户型,连价格也都很可能是当中最低的。


02/03户型为113平方米的3房2卫。
这是比较典型的竖厅设计,动区和静区分明,对家人休息、隐私友好。
两个卧室带飘窗,一个卧室连通阳台。

阳台面积接近11平方米,可以在享受景观之余,承载一部分家政功能。
户型朝西南,阳台、主卧向阳,日光充足。
04/05的户型也打造成113平方米的3房2卫,竖厅设计。
相比起02/03户型,这个户型更显狭长。
户型朝东,客厅、主次卧室都在主要采光面上,室内更明亮。

比前面的户型增加2平方米的玄关区域,让空间更游刃有余,便于设计,餐厅区域更开阔。
01户型为164平方米的4房2卫。
户型朝东北,最大的亮点是双阳台、实现南北通透,全户型无暗室。
由于面积大,这个户型有独立的玄关,更能保护隐私,而玄关也有飘窗,采光通风更好。
户型是LDKB布局,设计上可以更加灵活,客厅面积也更开阔。
2个房间设计为套房,4个卧室都带有飘窗,主卧更有2个飘窗,空间大,可以享受私人时光。
02.万科颐城·瑧湾悦 115㎡4房的“刚需”户型
目前颐城·瑧湾悦只流出了2个户型,分别为115平方米、170平方米。
因为连115平方米的户型都能设计成4房,可以说是“空间管理大师”。

115平方米的户型设计成4房2卫,有点类似“双龙戏珠”设计。
入户为独立玄关,U型厨房操作起来也更流畅。
横厅的设计让会客区更开阔大气,也减少了走道面积,最大程度上利用空间。
阳台空间也比较开阔,可以承担一部分的家政功能。
整体上看,115平方米的户型能设计为4房2卫,将空间利用了到极致。
170平方米㎡的户型设计为4房3卫,同样是横厅设计。
从入户玄关就能看出,这个户型的空间要更开阔,玄关的收纳空间非常充裕,厨房面积也更大。
横厅设计让开间达到6米,带来大阳台和良好的采光效果。
同样是4房设计,这个户型更注重享受:2个套房,主卧有独立的衣帽间、可配浴缸,拆掉隔壁的墙,能把旁边的房间也归入主卧里,进一步增大主卧空间。
从颐城·瑧湾悦目前流出户型图和平面图看,两个户型都是东南、西北朝向。
有说法称西北朝向的高层有机会看海、看水廊道。
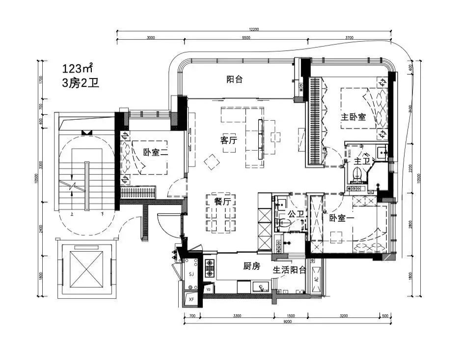
03.颐城栖湾里 前海唯一200+㎡户型
作为颐城·瑧湾悦的“兄弟项目”,颐城栖湾里早早就流出了户型图和平面图,为117-121-123-262平方米。
这也是前海四大住宅中,唯一一个曝光了200+平方米户型的项目。

117平方米户型打造成3房2卫。
这个户型近似LDKB布局,业主可以灵活根据自己的需求设计。
厨房带有生活阳台,让阳台的晾衣服和景观功能可以完全区分开来。

客厅、主卧、卧室二的朝向都是东南,卧室一为东北,三个卧室都带有飘窗,采光方面较为不错。
121平方米户型为3+1房2卫。
这个户型最为亮眼的是客厅区域非常开阔,开间5.4米,进深6.4米,完全可以再隔出一间书房。
同样是景观阳台+生活阳台的配置,景观阳台还是270°带转角的,采光和赏景都非常美妙。

户型朝东北,客厅和2个大卧室都是这个朝向,小卧室朝东南,可以看到花园或前湾水廊景观。
123平方米户型同样是3+1房2卫。
这个户型和121平方米户型非常接近,基本等于后者逆时针旋转90°。
区别在于这个户型的餐厅区域空间大概宽了2米,其他基本大同小异。
262平方米户型为4房4卫。
这个户型是2梯2户,设计上更像独梯独户的感觉,电梯外的空间基本可以当做一户的私人空间,隐私性非常好,没进门就看得出是豪宅的配置了。
进门后还有大概4米的独立玄关,收纳空间巨大。
餐区也可以分为中餐区和西餐吧台。整个餐客区域开间7.3米、进深8.2米,约60平方米,是非常奢侈的家庭共用空间了。
主卧也特别豪,有L型衣帽间,卫生间可设双洗手盆、浴缸、淋浴区等。
次卧1也是套房设计,同样有衣帽间、卫生间。
就连生活阳台的面积也都比一般的要更宽,还有单独的储存间,收纳、家政区域比较多。
从曝光的平面图来看,262平方米的户型朝东北,有说法称这个朝向可以看海景。
04.招商玺家园 一个客厅的面积=一套房?
招商玺家园是最近热度非常高的项目,是很典型的海景房。
项目传出了罕见的400+平方米超大户型,设计上真的是“壕无人性”。


123-127平方米的A1户型打造为2房2卫。
这个面积和房间数量,明显可以看出项目走的是享受型路线,更看重舒适度。
而LDKB布局,让这个户型可以在客厅隔出一间房,相当于2+1房。
长5米多、宽近2米的阳台,也提供了灵活使用的可行性。
30+㎡的主卧,配有L型转角飘窗,还可以设衣帽间、浴缸等,私人空间非常宽阔。
这个户型基本是朝东、东南、正南,客厅和2个卧室都是同一朝向,采光非常好。
124-127平方米B户型为3室2卫。
这个户型也可以根据需要,保留或去除多功能室,打造为2房或3房。
作为现在少见的3面采光户型,客厅双面采光,通透性很好。

主卧依然是L型飘窗设计,面积足够开阔,看海景也会非常舒适。
户型基本朝东、东南、正南,光照充足。
425平方米C户型打造为4+1房6卫。
这个近年来非常少有的400平方米住宅产品,关注度非常高,空间也特别“壕”,但目前只有网传户型图。
户型为4梯2户,业主和佣人用梯分离,让家政和会客通道在最大程度上分离开来。
入户区不单设置了鞋柜,还有自由支配空间,可设为衣帽间、展示区、酒柜等等。
客厅开间超过10米,整个餐客区面积达到了90平方米(相当于一套刚需房的面积),西北侧的卧室区还有空间,足够设个家庭厅。
厨房配有生活阳台,还可以兼具中西厨,在家开个几十人的Party也轻轻松松。
主卧和客厅朝向一致,都是朝东南,可以看海。有双人衣帽间、看海浴缸、淋浴区、双洗手盆,完全感受不到空间的拥挤。
其他3个卧室都是套间设计,配有衣帽间、卫生间,次主卧还另外配了阳台,可以做老人房或儿童房。
因为招商玺家园整体是东南面看海,所以基本A、B、C户型的朝向都能看海。
可以看出,招商玺家园是往“壕”的方向去设计的,所以设计上没有非要把每一寸空间都利用到极致,但会带来更好的空间享受。
最后放张太子湾·泓玺的样板房实拍图,大家可以感受一下同款海景。
来源:深圳买房计划


评论