01.前海颐城栖湾里今日开盘,262平超大户型是目前成交主力
今日(9月28日),位于前海的颐城栖湾里开盘。
预售房源共3栋(1栋一单元 1栋二单元 1栋三单元、2栋一单元 2栋二单元、3栋),本次预售房源共计352套住宅,包括建筑面积约117平方米 、121平方米、 123平方米、262平方米四种面积段产品,单价9.3万元/平方米起,均价10.25万元/平方米,均为毛坯交付。
据咚咚消息截至12:02,1栋、2栋的262平方米大户型仅剩约9套;1栋成交最多,262平方米大户型和122平方米户型是目前成交主力。
02.4.2万/平起,推575套住宅!沙井恒兴御景园销售方案公示
9月28日,恒兴御景园销售方案公示。本次共备案共推575套房源,其中住宅532套,商业43套。
户型建面约65-182平方米,住宅单价约4.2-5.5万元/平方米,均价约4.79万元/平方米,总价288万起。
销售方案显示:
9月28-30日为意向登记阶段,
10.1-10.2日为意向登记人名册公示及摇号阶段,
10月3日线上选房。
恒兴御景园,位于宝安区沙井街道和一片区,锦程路与和二一路交汇处,临近新国际会展中心,周边有地铁12号线、20号线和穗莞深城际等多条轨道交通,距离最近的站是地铁20号线科技馆站,距离有点稍远。
项目占地面积2.56万平方米,总共6栋,1栋A座27层,1栋B座27层,2栋29层,3栋31层,5栋31层,6栋31层,4栋幼儿园4层。
03.670套房源,特发香阅四季园户型图公开
特发香阅四季园又有新动静了,此项目是2021年第二批集中供地所拍地块,也是特发地产首个在深圳拍地的项目,建成后普通商品住房销售均价不得高于5.1万元/平方米。
近日,深圳房地产信息网援引家在网友发布的消息,特发香阅四季园项目的户型图,主要为89-126平方米的3-4房为主;项目毛坯限价5.1万元/平方米。
项目后侧即为石芽岭公园,一路之隔处为石芽岭学校,周边还有多所学校,上下学方便,但是项目距离地铁站较远,出行不是很方便。
根据规划,项目占地约1.37万平方米,总建面约6.15万平方米,由3栋建筑组成,其中1栋为2层商业,2栋分为四个单元,安居房位于2栋一单元,自持租赁房位于2栋二单元,商品房位于2栋三单元和四单元,3栋则为一所6班幼儿园。
项目于今年4月取得建设工程规划许可证,5月底取得建设工程施工许可证,建成后将提供670套房源(保障房180套),套内小于90平方米412套,占比87.66%。
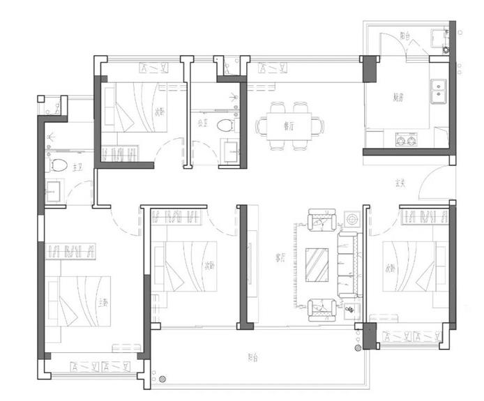
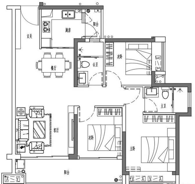
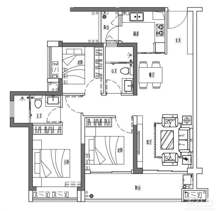
附户型图:
约126平4房2厅2卫

约96平3房2厅2卫

约89平3房2厅2卫
界面楼谈 扫描二维码,一起买房吧!



评论