01.4.6万/平起,特发香阅四季销售方案公示,今起登记
12月16日,特发香阅四季发布销售方案,项目共备案469套房,其中商品房住宅289套;商品房备案均价5.08万/㎡,户型89-126㎡3-4房单位,区间价格412-702万/套,单价4.6~5.58万/㎡。
根据销售方案显示:
12月16日-20日,进行意向登记;
12月21日-12月23日,意向登记人名册公示及公证摇号;
12月24日,正式选房。
资料显示,特发·香阅四季项目占地面积约1.3万㎡,总建筑面积约8.9万㎡,容积率为4.5,由一栋安居房及自持租赁住房和2栋商品住宅组成,最大层数为31层,最高高度为97米,配建幼儿园一所,地下室一层半至两层的主要功能为商业、车库用房。
项目总房源670户,其中安居商品房180户,配有车位666个,车位配比充足。此外项目自带的一栋2层商业楼,提供建面约4500㎡商业配套。
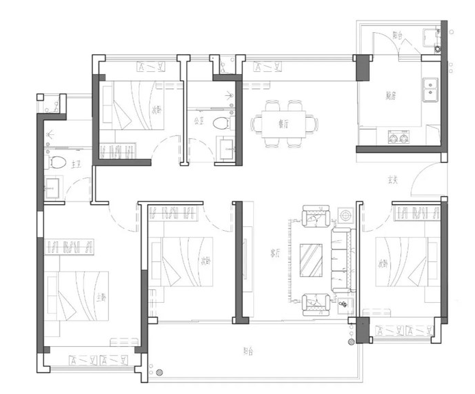
主推建面约89-126㎡住宅,共有3种户型分别为:建筑面积约89㎡、96㎡、126㎡户型。
户型图


02.均价约7万/㎡,推售54套住宅,皇嘉珑府获批现售!
据“深圳市房地产信息网”消息,位于龙华区民治街道的皇嘉珑府获批现售许可证,并在住建局官网公示,本次可售房源54套。
本次推售建面约56-114㎡住宅单元,备案均价约7万/㎡,单价区间约6.6-7.4万/㎡,总价区间约402-851万。
项目简介
皇嘉珑府用地面积4540.14㎡,计容建面约1.5万㎡,容积率3.31。总建筑面积约2.53万㎡,由1栋30层约百米高的住宅楼及3-4层商业裙楼构成。
其中住宅建面约1.04万㎡,商业建面3500㎡,其它包括物业服务用房、社区居委会、垃圾收集站等常规物业配套。另设有3层地下室,包括停车库、共用设备用房等物业设施。地下车库规划共设机动车停车位160个。
规划住宅户数130套,户型建筑面积<90㎡的104套,占比约8成。
项目备案名为“皇嘉珑府”,原为轨道交通4号线白石龙补偿安置用地,用地单位是深圳市民治白石龙股份合作公司,在2002年通过协议出让取得。
皇嘉珑府具体位于龙华民治街道民塘路与宁远路交汇处的东南侧,距离地铁4号线白石龙站约300米(百度地图测量,仅供参考)。
户型图



03.11月份一线楼市降幅略扩,深圳新房价环比跌0.5%
据“深圳市房地产信息网”消息,12月15日,国家统计局发布了11月份房地产行业相关数据,同时,2022年1—11月份全国房地产开发投资数据也已经出炉,下降9.8%。
11月份一线城市商品住宅销售价格环比降幅略扩
2022年11月份,各线城市商品住宅销售价格环比下降,一线城市同比涨幅回落、二三线城市同比降势趋缓。
一、一线城市商品住宅销售价格环比降幅略扩,二三线城市环比降幅收窄或与上月相同
11月份,70个大中城市中,新建商品住宅销售价格环比下降城市有51个,比上月减少7个;二手住宅销售价格环比下降城市有62个,个数与上月相同。
11月份,一线城市新建商品住宅和二手住宅销售价格环比分别下降0.2%和0.4%,降幅比上月均扩大0.1个百分点。
二线城市新建商品住宅和二手住宅销售价格环比分别下降0.2%和0.4%,降幅比上月均收窄0.1个百分点。
三线城市新建商品住宅销售价格环比下降0.3%,降幅比上月收窄0.1个百分点;二手住宅销售价格环比下降0.5%,降幅与上月相同。
二、一线城市商品住宅销售价格同比涨幅回落,二三线城市同比降势趋缓
11月份,70个大中城市中,新建商品住宅和二手住宅销售价格同比下降城市分别有51个和64个,个数均与上月相同。
11月份,一线城市新建商品住宅和二手住宅销售价格同比分别上涨2.5%和1.2%,涨幅比上月均回落0.1个百分点。
二线城市新建商品住宅销售价格同比下降1.2%,降幅比上月收窄0.1个百分点;二手住宅销售价格同比下降3.2%,降幅与上月相同。
三线城市新建商品住宅销售价格同比下降3.9%,降幅与上月相同;二手住宅销售价格同比下降4.8%,降幅比上月扩大0.1个百分点。


评论