近日,仙林中、江北浦口城南中心两大纯新盘正式对外公布案名!值得一提的是,这两个盘都是刚需盘。
01、美都·星屿熹!仙林中纯新盘案名正式公布!
仙林中纯新盘南京地铁G44案名正式公布为:“美都·星屿熹”。
从开发商处了解到,美都·星屿熹,秉承为城市带来美好生活的初心愿景,深度剖析当前市场人居需求以及未来人居生活方式,汇聚时代美好之光,让向往的理想生活照进现实。
据悉项目将打造建筑面积约75㎡(2+1房)、89㎡(LDK时尚3房),总价段约220万-280万。
虽然总价不高,但项目品质保证并未放松,产品力超级能打。
据悉,项目立面采用仿石材一体板搭配大面积玻璃窗,极简时尚的室内设计风格,窗墙比较高。在仙林中心内部,这样的外立面已经站在了前沿。
并且不卖升级装修包,从源头上节省买房成本,因此均价相比周边楼盘要便宜!
基础装修交付标准包含了中央空调、地暖、新风三大件,厨房还配备了洗碗、客餐厅地面交付标准也使用了仿石砖,装标品牌均选用了国内外一线品牌。
根据规划显示,城东汇通路G44地块将拟建8栋高层住宅及相关配套用房。
该地块位于南京市江宁区麒麟街道,东至经三路、南至纬八路、西至经二路、北至纬七路规划用地。
去年7月,仅1轮报价,汇通路G44地块被南京地铁小镇开发建设集团有限公司以底价11亿拿下,成交楼面价约17527元/㎡,毛坯销售限价28500元/㎡。
汇通路可以称得上是一个黑马板块,从板块概念提出至今,目前区域内已聚集了万科、新城、正荣、中南等品牌房企,加之在政府规划下,各项利好不断!
交通上,地铁2号线、4号线与主城绑定,并且项目就在4号线汇通路站地铁口,刚刚确定规划的8号线又实现了城东与城南的联通,交通网络四通八达。
教育方面:项目旁边,规划建设1所4轨12班幼儿园,及1所5轨30班小学。去年6月,南京地铁小镇公司就与南京外国语学校仙林分校、江宁区教育局签订合作办学协议,确认引进了公办南外(包含幼儿园、小学),目前已经正在建设当中。公办南外加持,对标河西南、大校场。
商业方面:项目2公里内可享受到九霄梦天地、金鹰湖滨天地的商业配套;还有在建的苏宁广场、仙林德基广场。而在项目周围,也布局了社区商业:从汇通路地铁口出站即是社区中心,买完菜即可步行回家。
目前,该板块并不缺新房,目前还有2盘待售(南京地铁G44、G45),4盘在售(润岚府、新城振业铭著风华、万科紫辰光年、牡丹大观天下)。
2022年7月12日,汇通路G45地块经过1轮竞拍最终被南京地铁底价拿下,成交总价3.9亿、楼面地价15517元/㎡、毛坯限价28215元/㎡。
铭著风华:主力在售4、8号楼,共144套,户型建面约97、115㎡,精装销许均价约29593元/㎡,另有升级装修包2800元/㎡,首付最低3成。
万科紫辰光年:主力在售3、5号楼,户型建面约115、143㎡,精装修销许均价约30866元/㎡,另有升级装修包3000元/㎡。两梯两户,没有连廊,首付最低3成。
牡丹大观天下:在售5、9号楼,户型建面均为103、125㎡,精装房源销许均价约29989元/㎡,另有2800元/㎡装修升级包,首付3成。
润岚府剩余少量跃层,户型建筑面积约250㎡,全装修均价24000元/㎡。
02、海信·慧园!浦口城南中心纯新地块案名正式出炉!
近日,浦口城南中心的纯新地块释放出新消息。
海信地产通过其官方视频号公布了去年7月海信拍下的城南中心G55地块的案名,为海信·慧园。
2022G55地块位于浦口区江浦街道,东至康安路,北至迎江路,西至现状住宅,北至规划配套用地。
去年7月,南京二批次土拍,仅1轮报价,浦口城南中心G55被海信地产以5.2亿总价成交,成交楼面价约15964元/㎡,毛坯限价31000元/㎡。
从官微释放的消息来看,这将是海信在南京第一个独立操盘的项目。
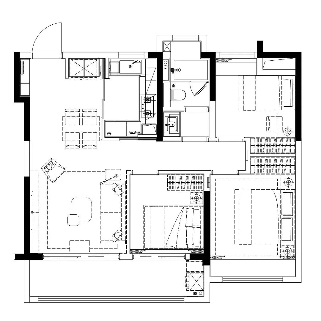
根据规划,G55地块拟建5栋17F住宅及其配套用房,其中1#、2#底层设置了架空层,户型89-107㎡。
建面约89㎡户型:
海信·慧园约89㎡设计成了A、B两个户型,都为三室设计。户型整体比较方正,三开间朝南,双联阳台设计,南向主卧和北向次卧都配备了飘窗。


建面约107㎡户型:
建面约107㎡户型四开间朝南,餐客厅一体化,双阳台设计,连接客厅和次卧;主卧套房设计,配有大面积飘窗,加上独立卫浴系统;主卫和公卫也做了飘窗设计。

规划用地性质为R2二类居住用地,用地面积16286.75㎡,1.0≤容积率≤2.0,建筑高度≤60米,建筑密度≤20%,绿地率≥35%。
现规划设计方案总建筑面积约4.70万㎡,其中:地上建筑面积约3.33万㎡,主要功能为住宅及其配套用房;地下建筑面积约1.37万㎡,主要功能为车库。
项目外立面效果图:
项目小区效果图:
浦口城南中心位于长江五桥以及长江隧道之间,总面积2.75平方公里,从空间来说,左侧靠研创园、背后是核心区青奥板块,右侧则是大热的江核。
起初很多人认为浦口城南中心,是在“夹缝”中求生存,因为它周边全是大火的板块。
但近几年,浦口城南中心成了整个江北近两年发展、规划兑现比较迅速的区域,甚至在某个阶段楼盘去化成绩超过江北核。
浦口城南中心虽被热门板块包围,但同时,它还处于新城与老城的交汇点,因此板块定位“因地制宜”,既延续着老城文脉,又与中央商务区互为补充,同时还为研创园提供了配套支持,同时也能为板块聚合高净值精英人群,被称作“城市新客厅”。
从交通配套来看:城南中心沿着浦滨路、浦云路向外扩散,北侧与浦口大道、长江隧道相连,南侧与五桥接壤;另外,板块内还有号称“换乘王”的地铁11号线(在建),可与3、4、10、11、13、15、17等多条地铁线路换乘,未来,城南中心将是江北地铁最为密集的区域之一。
从教育配套来看:城南中心片区规划设置了1所高中,2所初中,3所小学以及5所幼儿园的教育规划用地,有着全龄化的教育配套。(项目具体学校以政府最终划分为准)而且随着一中、中华优质教育资源的进驻,城南中心与江核“平行”。
从商业配套来看:有大悦城(城南中心)、金陵星图(城南中心)、砂之船(江核)。
海信选择了一个潜力板块,若G55能打造得好,海信将在南京一战成名。据悉,项目刚组建好团队,展厅预计在本月中旬公开!
目前,浦口城南中心的新房储备较为充足,对于买房人来说,选择性多,容易“上车”。
城南中心在售项目有4个:金陵星图、天悦锦麟、星河时代、天悦风华。待售项目有3个:中垠臻悦府、浦口国资G59地块、海信G55地块。
金陵星图
项目有充足房源在售,主力在售1、6、9号楼,两梯四户,建筑面积约89、113、139㎡,全装修交付,销许价约30136元/㎡,另有2500元/㎡的升级装修包,首付3成。


天悦锦麟
天悦锦麟户型建面约97、135㎡,主力在售B2、B5号楼,全装修交付,销许均价约30505元/㎡,另有2500元/㎡升级装修包。


星河时代
在售少量尾房,户型建筑面积约128㎡,全装修销许均价29566-29915元/㎡,具体一房一价,另有2165元/㎡升级装修包可选。
天悦风华
天悦风华西苑主力在售1号楼,共60套全装修房源,建筑面积约89、105㎡,销许价约30700元/㎡,另有2500元/㎡的升级装修包。
89㎡户型:三开间朝南,入户玄关,餐客厅一体化,U型厨房,客厅开间约3.6米,约6.45米双阳台,连通南向次卧。

105㎡户型:三开间朝南,入户玄关,U型厨房,餐客厅一体化,约3.7米开间客厅,外连6.7米宽屏大阳台;主卧为套房设计,带飘窗,预留衣柜空间;

中垠臻悦府
项目预计今年入市,已经公开3大户型图,建面分别约98、88、83㎡。项目拟建设6栋17-18F住宅楼,该楼盘的毛坯限价为28188元/㎡,后期全装修价格预计约29688-30188元/㎡,再加上升级包,未来售价预计在3万/㎡以上。
其中98㎡户型三开间朝南,入户玄关、主卧套房设计;88㎡户型与98㎡布局相似,面积有一定差异;83㎡户型布局方正,大开间阳台、宽幕横厅。
值得一提的是,这是城南中心继望江悦府76㎡的后,又一次诞生两房户型,届时又能吸引一大波刚需客群。

浦口城南中心G59地块
去年7月12日,浦口NO.2022G59地块被浦口国资拿下,成交总价23.8亿,楼面价15469元/平,最高毛坯销售限价30500元/㎡,项目拟规划建设14幢24-26F高层住宅,将由仁恒负责代建。


评论