
设计案例
极简主义又称“简约主义”、“极少主义”,主张把表达艺术的方法、手段和内容进行最大限度的削减,追求将最原始的物品自身展现在观者面前。
通俗地说,极简主义就是去掉多余、繁琐、奢华的装饰,用最基本的表现手法来追求其最原始、精彩的部分。
极简主义设计风潮席卷亲子家庭产业。本文阐述了极简主义建筑设计的兴起历程和设计理念,通过解析4个独立而创新的幼儿园样本,展示出行业内建筑及空间设计思维推陈出新的新路径。
指导 | 李筱姝
内容 | 温碧清 肖树
统筹 | 林兰枫
极简主义可追溯到15世纪日本的东山文化(Higashiyama Culture)。其中核心词汇Wabi-Sabi是用来描述优雅简洁和安静恬美的术语。后来,荷兰的风格派运动(De Stihl)在1917年汲取了这个概念,该运动到1931年慢慢消退。
西方建筑史中,德国现代主义大师德维希.密斯.凡德罗(Ludwig Mies van der Rohe,1886-1969)提出的“少即是多(Less isMore)”观点保留并复兴了极简主义,开创了这一重要理念在建筑装饰领域的先河。其作品特点是整洁和骨架明露的外观,灵活多变的流动空间以及简练且制作精致的细部。
而有别于德国人的严谨与理性,极简主义也蕴藏于几千年的中国传统美学和哲学中,见诸诗、画、园林、工艺美术乃至生活的方方面面。中国传统文化中的留白是国画、书法等艺术的精髓,体现出的是虚实相生,留白处皆为妙境。当留白的艺术表现手法与新中式建筑设计相融合,则成就了极简主义的设计观。
《道德经》中说:“万物之始,大道至简,衍化至繁。”从道教、禅宗衍生出的东方“极简”美,更多的是表现静、寂、空的禅意,是一种精神上的超凡脱俗。把一切繁杂加以凝练和简化,从而使作品表现出一种淡泊、宁静、疏朗、清幽的优美意境。这些作品往往被人誉为逸品、清品和上品。
在业界,极简主义的主流设计理念可归纳为:
-
形式简洁化:最大限度地摒弃繁琐细节,外在形式简洁明确,注重了空间和形体本身的整体造型和结构。
-
简单功能化:以简单的设计形式,在满足现代生活功能需求的同时,迎合受众高层次的精神满足感,比如说提升审美、激发灵感等。
-
创作理性化:在创作设计上做“减法“,以最直接的方式传达思想,达到设计简约而不简单,将通俗表象的物体形态高度浓缩,概括成抽象的形式。
极简主义不仅仅是剥去冗余。建筑师力求给予极简设计五大基本特征:
-
由简单的形式结合简单的功能,通常以最基础的方、圆、三角为主要元素。
-
外立面和建筑细部都不做复杂装饰。
-
装饰材料通常用于营造视觉感受,突显质感和个性,但在严格的简约设计中材料拼接需谨慎使用。
-
建筑主体色彩往往选取单一颜色(灰、白最为常见)。
-
室内充满自然采光,空间干净。
上述理念与原则在以下案例中得到了综合体现,但每个项目又侧重不一。
极简主义与色彩结合
极简主义风格惯用整体设计的中性色彩和局部的对比色彩搭配,往往把两种不同事物通过色彩进行对比,如方与圆、大与小、深与浅、粗与细等等明显对立的元素置于同一空间中,经过装饰设计,使其既对立又和谐;既矛盾又统一,在强烈反差中获得鲜明对比,求得互补和满足的效果。
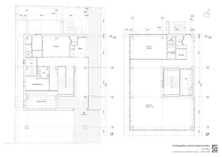
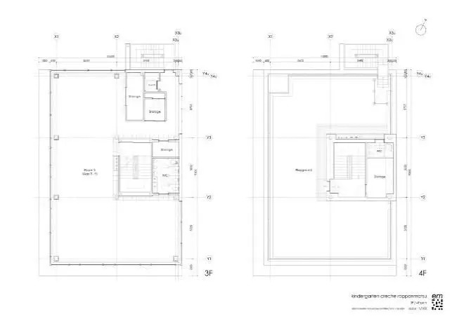
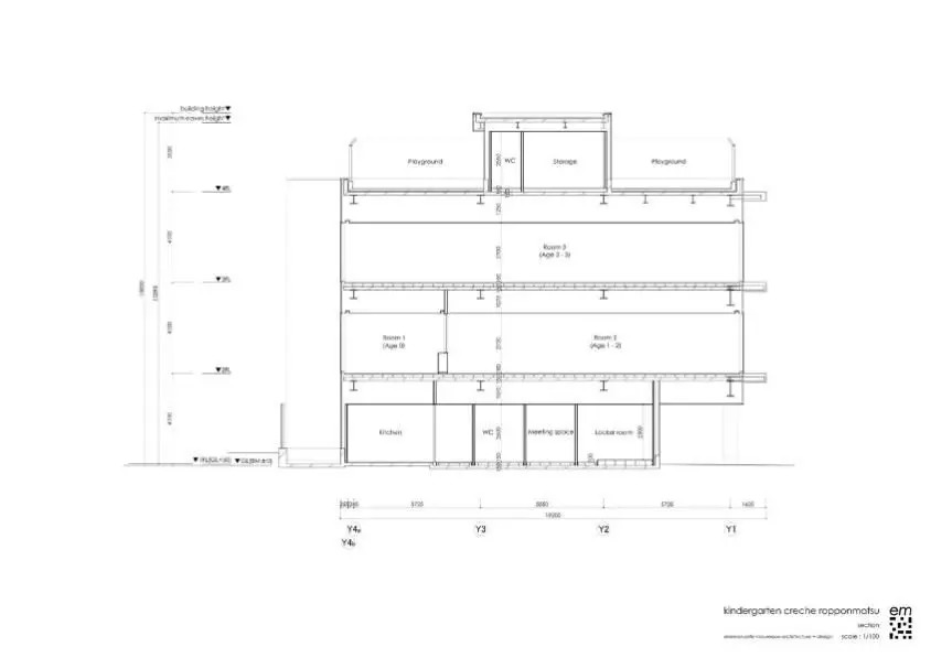
案例1:福冈 Creche Ropponmatsu 幼儿园








设计亮点:
1. 巧妙的将色块与结构联系在一起,让视觉上不会感觉空间割裂,
2. 将200种色调接近的颜色加入到收纳空间中,提高儿童个人动脑、动手能力。
3. 在楼梯处大面积的营造视觉差,是整个内部空间被色彩包围,培养儿童丰富的情绪。


▲ 福冈 Creche Ropponmatsu 幼儿园平面图

▲ 福冈 Creche Ropponmatsu 幼儿园立面图
极简主义与线条结合
极简风格讲究去除复杂,保留原始,尽量在建筑墙面上完全不用纹样和图案装饰,只有线条,色块来区分和点缀,用线条在外立面上勾勒出不同颜色的形状是一种新式的表现形式。
案例2:莫斯科Vashavskoye Hwy 141幼儿园







设计亮点:
1. 整体简约的建筑外立面通过小的细节点缀,将童真与现代建筑结合,使空间在其他建筑物中瞬间跳脱出来。
2. 使用釉色玻璃,利用光线打造彩色阳光房,弥补落地玻璃的单调视觉感。

▲ Vashavskoye Hwy 141幼儿园平面图

▲ Vashavskoye Hwy 141幼儿园立面图
极简主义与功能性结合
极简主义具有极强的功能性特点,强调功能为建筑设计的中心和目的,讲究设计的科学性,重视设计实施时的科学性与方便性,建筑师理性的规划并且极有分寸的进行空间布局才能使整体上呈现出简洁、明快的效果。
案例3:合肥皖投万科天下艺境幼儿园








设计亮点:
1. 在幼儿画作中找到了灵感,将空间分成了7个活泼布局的生活单元,结合树屋般的游戏活动空间,利用颜色本身与体块的虚实对比,实现整个空间的平衡感。
2. 将幼儿园的主色调设定为“留白”,外墙体大面选用了白色和灰色质感涂料,施工工艺细节上为无接缝处理,使得一个个小房子体块更具整体化。

▲ 万科天下艺境幼儿园平面图

▲ 万科天下艺境幼儿园立面图
极简主义与几何造型结合
极简主义风格形式上提倡的简单几何造型,非常推广六面建筑和幕墙架构,在具体设计上重视空间的考虑,特别强调整体布局,主张以模型为中心的整体空间设计规划。
案例4:扬中三环幼儿园







设计亮点:
1. 整体结构为三个同等大小的六边形几何图形,六条边中五条边对应5个班级教室单元,剩下的一条边用于共享空间,使幼儿园既为敞开式空间又拥有很高的私密性。
2. 设计师将三个庭院体块相互紧邻,使其变成三种不同功能的娱乐园,满足小朋友们好动的特点,同时还具备非常强大的实用性,可以当作多功能厅、戏水池等。



▲ 三环幼儿园平面图

▲ 三环幼儿园立面图
本文图片来源:ArchDaily
参考文献:
[1] 樊云龙.(2015.4). 极简主义在当代建筑设计种的运用. qikan.com.cn.
[2] 聂欣.(2017). 合肥皖投万科天下艺境幼儿园 / 上海天华建筑设计.archdaily.com.
[3] Emmanuelle Moureaux. (2017). Creche Ropponmatsu Kindergarten / Emmanuelle Moureaux Architecture + Design. archdaily.com.
[4] Qian Li. (2018). Sanhuan Kindergarten / Perform Design Studio. archdaily.com.
[5] Buromoscow.(2017).Kindergarten Vashavskoye Hwy 141 / Buromoscow . archdaily.com.


评论