
关于停车场的联想词都有哪些?“隐蔽”、“潮湿”、“沉闷”、“阴森森的吓人”,对于购物中心的停车场还得再多几个“停车难”、“找车更难”.....。
设计合理的停车场能给商场带来更多的人流和商机这已经成为共识,如何规划设计优质的停车场,而且地库成本的控制也是项目建设时重点和难点。不同类型的项目在控制成本时也要考虑其设计特点,本文就从商业街区柱网类型分析、地块技术参数总结、地下车库具体设计策略及技巧等三方做一分析。
//商业街区柱网类型分析//
针对商业街区的特点,在确定地库轮廓之后,制定地下柱网基本尺寸是很关键一步,为此我们对国内一些对标商业街项目,相近的商业综合体项目及高端SHOPPING MALL的地块技术指标做一些分析。
- 01 -
上海大宁国际商业广场
本项目总建筑面积约25万平方米,集商务酒店、办公楼、零售、餐饮、文化、娱乐、教育和城市生活配套设施等综合性、多功能的商业房地产开发项目,裙楼以街区商业形式展现。

本项目商业街下方柱网取8.0mX8.0m
- 02 -
广州太古汇
由一座大型购物中心、两栋甲级写字楼、一栋酒店组成的集休闲娱乐、商贸活动和文化欣赏于一体的国际性高端商业综合体项目。地下三层小型机动车停车库层高4米;地下四层货车停车库层高6米;货车设置独立车道直通室外。

柱网特点:主要以8.1mX8.1m为主,柱截面1000mmX600mm,柱网模块如图

对于非标模块,塔楼、裙楼商业圆柱一般每模块减少一个车位
- 03 -
广州珠江新城中轴线地下商业街
本项目总建筑面积达13万平方米,集购物、餐饮、娱乐、文化为一体的综合商业体,与周边40座标志性的公共建筑、商厦、五星级酒店相通,交通网络四通八达,APM线贯通整个商场。


本项目商业街下方柱网取8.4mX8.4m
- 04 -
万象城
(深圳、杭州、沈阳、成都、南宁)
集五星级酒店、甲级写字楼、高尚住宅酒店式服务公寓于一体的超大型综合体项目。


深圳万象城柱网取11mX8.5m,成都柱网取9.0mX9.0m,其它几个都是11mX9m
- 05 -
上海合生国际广场
本项目是一个集五星级酒店、大型高端购物中心和甲级写字楼为一体的大规模、现代化、高品质的城市综合体及一站式消费的复合型商业地产项目。

主要柱网取8.4mX8.4m(餐饮、零售区)及11mX9m(酒店、百货区)
//地块技术参数总结//
通过对上述商业类项目分析,对近年一线商业项目地下室技术参数作简要汇总,列举如下:

从上述表格可以看出,对于高端商业项目,地下室柱网横向以停3~4辆车居多,从而横向柱网一般取8m~9m(停三辆车)或11m(停四辆车),纵向柱网一般根据车道宽度取8.1~8.4m(适用)或9m(高端)。
考虑到商业项目中高端小车较多,其车辆尺寸一般大于规范常见4.8m(长)x1.8m(宽)。具体举例如下表:

根据上述车型控制尺寸,推导出适用型商业停车柱网如下图:

说明:上图为8.1mX8.1m柱网,背靠背停车位基本尺寸为5300mm(长)X2500mm(宽),靠实墙停车位基本尺寸为5550mm(长)X2500mm(宽),车道按5.5m设置,柱子建议做扁柱,如500mmX700mm,留出柱与车位间50mm的富余量作为柱子面层及防撞标志安装的空间。
另外,我们也推导出舒适型商业停车柱网,如下图:

说明:上图为8.4mX8.4m柱网,较8.1mX8.1m柱网可多留出600mm宽人行区域,商业车库较住宅地库最大的差别在于日均车流人流较多,且顾客往往不熟悉车库,留出人行区域,实现局部人车分流,大大提高车库安全性及购物体验。此类柱网适用于大型商业中心或地标性商业街区项目。
而对于高端型商业停车库,柱网可如下图:

说明:上图为9mX11m柱网,较8.4mX8.4m柱网而言,背靠背车尾设置1m多宽人行区域,便于顾客购物后轻松把较大物品放置车尾箱,对于家庭聚会购物、餐饮也便于婴儿车的推、放。
另外,横向4辆车成组设置,柱距增大,往往同时配合较大的层高,形成很好的空间感,在超大型商业购物中心SHOPPING MALL较多使用。同时由于此柱网纵横方向尺寸较大差距,一般建议采用单向板受力体系:

-
考虑跨度较大,不建议采用住宅车库常见的无梁体系。
-
根据项目实际情况,选取合理柱网体系。
-
合理的柱网体系需要解决好地上和地下的柱网关系。
结合本项目地上商业街区形式为联排商铺,商铺开间4050mm为宜;柱网尺寸定为8100mmx8100mm,恰好为两间商铺的开间尺寸。
一方面商业地库无需如住宅地库“死扣”停车效率而采用7.8m柱跨;另一方面,根据本项目商业定位,成本核算,目标客户敏感度等方面,选用适用型商业停车柱网能提高经济性,无须一味追求“大气”的高端型商业停车柱网。

上述实现了地上与地下单元柱网模数一致后,地上大部分结构柱可直落地下室;但部分塔楼柱位与地库大柱网错位(因建筑造型、间距和街区宽度等因素)的情况,可通过地库顶板梁局部托换掉地上结构柱,使地上柱子不直落地库,但此情况要尽量避免,减少转换成本。
为使地库效率不受影响,考虑到地上仅为2~3层的商业,经权衡采用局部转换柱子的形式更有利。经方案对比得出转换后的每层车位能多出23个,合计2(层)x23=46个,且由于此多出的46个车位而避免局部做三层地下室,节省的成本是巨大的。
通过地上地下柱网的协调设计,地库街区商业范围内(办公塔楼投影因体型等原因不含在比较范畴)停车效率可达32㎡/个。

//地下车库具体设计策略及技巧//
1、做好地库的人防选址
从分析本项目三个地块的综合指标得出,地块一、二的开发比地块三要稍早,且用地均比地块三较紧张,更重要的是地块一、二商业价值大于地块三。
综合分析后决定通过人防异地建设的方式,把人防区统一设置在地块三,既减少地块一、二自身地库的压力,统一设置人防又能减少造价(减少人防区与非人防区之间昂贵的人防大门数量,取而代之是人防分区之间成本较低的人防封堵板)。

2、优化支护方案
经分析,三个地块之间的规划路属新建规划路且由保利代建。结合开发情况,设计考虑把三个地块整体开挖,减少地块间支护等成本。

3、利用塔楼投影的层高设置夹层,布置非机动车库
地块一的办公楼方正且轮廓相对较大,对于放置机动车效率较低,投影范围合适作为非机动车库(且投影范围的地下室层高较高,利用层高做了夹层设计,大大提高了地库效率)。
具体做法:首层梁高控制600mm以内,夹层梁高控制在400mm以内;非机动车库净高要求2m,因此,非机动车库内喷淋管需穿梁设置,且不能设置风管,进排风通过侧边进(排)的方式设计;如此造就出2050mm净高的夹层非机动车库(如下图):

地下一层非机动车库局部平面

地下一层夹层非机动车库局部平面

非机动车库夹层剖面示意
4、地下室充分利用退缩条件
地下室的退缩与地上退缩不同,不需考虑日照等情况,可不必跟着地上建筑的控制线来退缩,否则地库轮廓没充分利用,迫使增加建造成本更高的下一层地库面积,导致地库无需成本增加。
充分研读广州规划细则“建筑工程退让规划路边线大于3m的地上、地下空间和消防间距范围外,在符合以下条件的情况下,建筑工程可外伸地下建(构)筑物、步级(含台阶)和外挑构件(含雨蓬)”(如图下图所示)

充分运用这个规划条文,把地库退缩线做到最大(离用地红线3m),能使原一排平行停车优化成效率最高的垂直停车,大大增加停车效率(如下图):

此做法需注意3个要点:
1、外扩部分地下室需满足2m以上的覆土要求用于走市政管线;
2、因外扩部分覆土增大,层高较少,为实现满足停车净高,需设置单向布梁,且该区域不走风管;
3、车位净高需保证满足规范2.2m要求。

5、利用塔楼投影的层高布置电房等、层高要求较大的设备房
电房往往对层高要求比较大,一般需要局部本层降板或上层抬板来满足电房层高要求,若把电房设置在塔楼范围,就能避免局部降板或抬板,降低成本,且减少对上下层功能空间的影响。
如下图,本设计把塔楼投影内靠外围布置车位,投影内靠内部布置电房,既保证停车效率,又保证电房层高要求,一举两得。

地下一层电房区局部平面
6、垂直车道布置出入口坡道
经对出入口坡道与车道位置关系的分析得出,垂直车道布置出入口坡道的效率更高,在本项目其中两个坡道均采用垂直车道布置。


7、剔除无效空间
对于地库中无用的空间,必须剔除掉,不能增加无效成本。

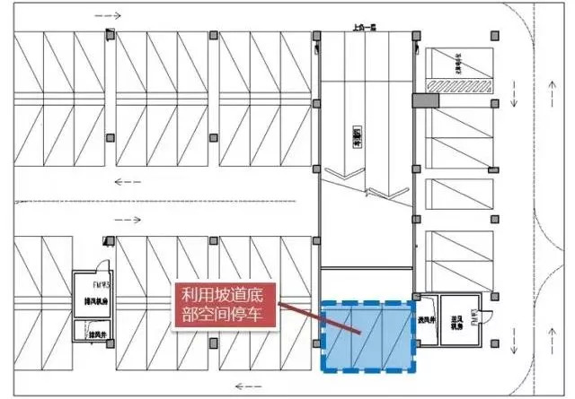
8、利用坡道底部空间停车
如下图位置的坡道底部空间,也要充分利用。虽然净高不高,但若满足停车净高要求,可要求主要管线避开不通过该处顶部,充分利用作为停车位。

// 最后 //
商业街区的地库需根据其项目定位特点进行营销测算,并考虑规划、开发、分期建设、业态等因素对地上、地下空间进行整体设计,设计重点在柱网的兼容性方面。核心要点如下:
1、选取合理柱网形式,尽量地上、地下统一柱网,提高地库效率;
2、做好地库人防选址,把人防区统一设置在商业价值低的地块,人防分区之间多用成本较低的防封堵板代替昂贵的人防大门数量,减少造价;
3、多个地块整体开挖,减少地块间支护等成本;
4、充分利用退缩条件,把地库退缩线做到最大,增加停车效率;
5、利用塔楼投影的层高布置电房等层高要求较大的设备房,避免局部降板或抬板,降低成本,减少对上下层功能空间的影响;
6、采用垂直车道布置出入口坡道,充分利用坡道底部空间停车,提高使用效率。


评论