文 | Power设计
城市经济发展促使农贸市场转型和升级,在城市化进程中,农贸市场一直是城市经济发展的短板。作为一座城市形象展示的一个窗口,农贸市场的发展速度相对比较缓慢,与城市发展对它的要求不匹配、不适应,矛盾开始显现。
这迫使农贸市场必须转型和升级,这也是为什么近些年国内各地区投资大量人力、物力和财力支持农贸市场改造升级。除了产品的新鲜度、丰富性,更是对购物环境以及购物体验提出了高要求。
菜场版本迭代
双创背景下的时代,新消费层出不穷。买菜再不是“菜市场一家独大”的市场局面,菜场如果不转型创新也只能被动地“夹缝中求生存”。如何拓展新客源,如何通过革新,导流年青消费群体,是农贸市场改造升级绕不开的话题。关于菜市场的发展转型之路,其发展轨迹可以归纳为5个版本。
1.0版本:在马路边设摊经营;
2.0版本:进室内经营;
3.0版本:以干净整洁、设立食品检验室为特点;
4.0版本:以市场+超市为特点;
5.0版本:体验性、文化性与休闲性发展。
近两年来,在全国各市都开始升级改造菜市场,一改以往脏乱的环境,分批次分版本的改造整顿为让商户舒心,让顾客满意的菜市场,其中有些菜市场的改造却让人眼前一亮。
围绕社区生活方式达成转型
当城市发展日益成熟,城市越来越趋近“社区”概念。未来的城市,是由一个又一个的小社区组成的大社区,而菜市场则围绕社区生活的方方面面完成自身的转型升级,提供品类细分、专业化和品牌化的服务业态。
原有的满足一站式农副产品购物需求的菜市场开始变成一个个独立的品牌业态,并且与其他生活配套服务业态形成一个满足人的生活需求的“生态系统”,菜市场城市最终融合在一起,回归到“以满足人的需求为出发点”的和谐状态。
而其转型主要体现在以下三个方面:
1、新的购物环境
改造的菜市场为销售蔬菜、小商品等小商户,市场内环境卫生较差。而改造后,对原有经营区域进行重新规划,对不符合区域发展趋势的产业进行全面清退,扩大百姓日常民生服务项目的面积。通过规范升级经营场所,在完成区疏解任务的同时,彻底改善市场脏乱差等环境问题。
2、新的销售模式
改造前的市场为传统菜市场模式,由市场将摊位出租给各商户,商户自己对外销售产品,不仅商品质量得不到保证。而转型升级后,更多的是通过引入统一的供货渠道,搭建供应商与百姓之间的直销平台,从而提高性价比。在销售上一改之前各自独立收费模式,改为商业超市收费模式,使百姓能够拥有较好的购物体验。
3、新的运营理念
诸多菜场是自启动转型升级工作以来,突破原有农贸市场传统经营模式,力求打造成一体化运营的社区生活服务中心。通过引入“一公里”品牌,利用对方成熟的商业理念和资源,使转型升级后的市场成功变身为集菜蔬品销售、海鲜肉食供应、美容美发、早餐供应等经营项目于一身的社区综合生活服务中心,可以为周边百姓提供全方位的生活服务项目。
满足什么样的人的需求
当前很多菜场升级改造容易走偏的误区,便是“打造网红打卡地“,诚然,”网红打卡地“标签确实能为菜市场招徕许多年轻人,但问题的关键在于,这些年轻人拍了照上传至社交网络,热闹过后就会离开,甚至再也不会踏足这家“网红”菜市场。
因此,不管是60、70后,还是80、90后的新兴消费群,菜市场在转型升级过程所需要迎合的便是所在社区中热爱生活的这群人。每个时代的人有每个时代的人的特性。60后一代人更愿意早起去菜场购买新鲜蔬菜,90后一代(需要且愿意自己准备饭菜的)人则更愿意在快下班时通过手机App在线点餐送至家中。
这两种模式同样是体验式消费下的产物,前者更关于选购是感官上的体验,后者则是目标明确的高质量体验。因此如果一心想要通过改造时髦的外形而期望年轻人能够走进菜场,恐怕会失望。
菜市场设计要求
菜市场实际上是市场营销体系的物理表达,涉及到社会、管理和经济等众多因素,是这些因素结合在一起所产生的复杂混合物。菜市场的设计要服从于整体的功能,确定一个好的布局——市场规划的关键步骤之一是设计一个好的商业组合;菜市场布局与设计应与当地街坊邻居和商家意见相结合,从而使规划能够得到大多数人的青睐。
在建造归程中应该充分利用各种建筑语言。许多市场有各种屋顶开口或天窗,以提供最佳自然光照,而且市场建筑应该通过具有吸引力的、友好的、与环境相融合的建筑形式,或者通过质地鲜明,色彩鲜艳、环境可持续的材料来表现自己。
最后,需要精心设计建筑外部与内部之间的视觉关系,这是市场对于周围环境的展现方式。未来菜市场将变得更加灵活多变,即为了满足新的需求进行重新分配和重组。菜市场也将是一种更为复杂的空间。为了能够与不断发展的社会和商业环境竞争,它会包含更多种类的用途、服务设施和产品。
因此要为一个菜市场开发项目做好整体规划、设计及预算分析,必须明确项目设计要求。一般而言,设计要求说明将在项目规划伊始时对政策和操作评估阶段进行。通常来说,准备设施需求说明要以下5个基本步骤:
1、对在项目背景调查中发现的问题进行解析和说明。
2、对进行初步的整体规划和商业预算所要考虑的各类因素进行整合。这个步骤可能会产生一个显而易见的解决方案,也可能是好几个方案。
3、在对所有的解决方案进行评估后,对设计要求说明进行调整,从而得出最终整体方案的基础,同时在后期具体的建筑及设施详细设计过程中发挥作用。
4、设计要求说明需要多方参与(商户、附近居民、负责菜市场运营和设施维护的相关人员)
5、项目用户信息收集(小组讨论和研讨会议、调查问卷等)
设计方法及方案选择
为拟建菜市场提供各类基础设施会产生一系列的设计问题。如果是针对旧菜市场的搬迁项目,设计师还需要考虑商户们在面对菜市场搬迁到新址的问题时,可能会产生的抗拒情绪。其他需要解决的问题还包括:
1)各个菜市场之间和配送渠道之间的潜在竞争;
2)建设超大规模设施的可能性;
3)在制度上主要有哪些针对菜市场新址的约束;
4)与城市及其腹地规模相关的、菜市场未来生存能力的问题。
一般来说,基本的设计方法并不会看到立竿见影的效果,一个项目往往需要多种替代方案,通过评估来确定哪一种更为适合。是针对原有设施进行改造,还是重新修建一个新菜市场,这个决策不能作为权宜之计,更不能在不了解情况的条件下做出决定。
要想顺利地解决这个问题,就必须充分考虑这些设施真正要发挥的功能,从而得出结论——以最简单的设施形势和最低廉的成本发挥其最必要的功能。在开发方案的时候还应当考虑可能的社会经济改变以及潜在的对环境造成的影响。
可行的方案绝对不止一种,而且也很难找出绝对正确的那一种。即便如此,在选择方案的时候也一定要谨慎,以确保有“过度设计”的设施出现。一般来说,菜市场设施的寿命大约在25年以内,其间还不可避免地需要频繁地维护和更换。
选址及规划策略
任何一个菜市场的选址都是最关键的决策之一,无论是城市内的中小型菜市场,还是面对城区的批发菜市场而言。菜市场选址于交通密不可分,因为从本质上来讲,菜市场仅仅是中转站。
运输系统的改变以及不断演化的公路网络系统都会给菜市场的存亡带来巨大的影响——也许是在原址上维持运营,也许要寻找新址修建新菜市场。
优秀的菜市场设计一般要有通往主干道路系统的出入口,同时还能与毗邻土地功能相互兼容。城市零售型菜市场一定要方便消费者到来,最好能够在低收入住宅区域步行可达的范围内,如场地的经济成本、土地所有权、规模、施工的适用性以及服务设施的可行性等。
最适宜的场地会降低买卖双方的运输成本,从而降低成本与售价的差额,最终减少消费者的成本,最好能够在低收入住宅区域步行可达的范围内。这些选址需求需要同其他因素综合考虑,如场地的经济成本、土地所有权、规模、施工的适用性以及服务设施的可行性等。
菜市场布局
菜市场的运营情况受到管理手段和其物理布局的影响,菜市场的布局设计应当满足以下几点要求:
·畅通无阻的交通循环模式和在保证充足停车设施的前提下进行有效的停车控制;
·尽可能促进菜市场用户之间的互动,将会获得最为适宜的价格构成;
·配套设施的提供和充分利用;
·未展示和销售商品提供充足的配置设施,以维持商品的质量;
·高效率的产品处理设备(如货盘和叉式升降机)
场地规模
售卖面积与整个场地面积的匹配比例应在1:4和1:3之间,这意味着每平方米的售卖面积,将需要额外3~4平方米的场地面积。如果场地面积非常有限,可以将这个系数降低到1:2.5,如果大部分的交易可能在露天场合进行的话,就可以增加到1:5。
因此,总场地面积可以通过将总市场面积乘以2.5~5倍来获得,以便进行行车道、停车场和场地的景观美化工作。道路设计、行车道的宽度、停车位的面积和人行道的宽度等决策将是创造一个能达到吞吐量标准的,经济合理布局的基础。
菜市场开发中的设计问题综述
确定了市场的位置、空间利用率和总体规划后,设计要求最终需要包含以下类型的信息。
【场地】
·市场地理位置与出入口的主要特点是什么;
·在地形地势和主要服务设施可用性方面(如排水渠、饮用水、通信和电力等),其主要特点是什么?
·哪些规划、环境和其他限制条件可能影响该项目;
·法定主管机构是否有对建筑物及场地有一些特殊要求,例如视线遮挡限制、建筑边界等。
【一般要求】
·要采用的关键标准是什么
·是否设想了具体的功能分组
·基础设施要求有哪些
-为市场人员提供办公室——开敞布置或分格式布置;
-餐饮设施、医疗急救、银行、邮局(快递点,便民蜂巢快递柜)
-停车位的总位数
-卫生设施和废物处理方法。
·场地出入口与内部交通通道有什么特殊的限制?
·设想了什么类型与品质的内部环境与外部环境
【商户需求】
·是否明确了每个商户的店铺面积
·是否有特殊的需求,例如上线水,电线等
·是否有特定的安全需求,如可上锁摊位
·商户或员工是否有任何特定的停车需求,
【评估与后续问题】
·是否制定了不同的评估方案
·对项目成本是否有可靠的估算
·是否修改了适应性改造概要以反映评估情况和在任何资金短缺情况?
精选案例
北京微风市集
位于北京前门西兴隆街区有一座并不算太老的传统建筑,房子原本由两个体貌趋近但于又不同时期建造的体块组成,且紧邻民居群落。
对于一个复合型的市集而言,各个售卖业态的组合布置可谓重中之重,空间流线的梳理直接关系到人们的购物体验。回到设计的起点,为了实现在外观上对现有长向空间的整合,两个高低错落的白色体块用来连接建筑。
这种关系延伸至室内,成为纵横错落的展示货架,相较街区原有古朴厚重的面貌,新改造的空间如其名,像午后微风拂面一样,为此处带来些许轻松的暖意。

考虑到整个建筑想要营造的丰富轻松的空间氛围,首层各业态的排布呈现开放、半开放的组合,加之以充足的可移动货架,便打破传统菜市场常规布局,让进入市集的客人能感受到更多的展陈购物体验。借此,复合空间的属性也被放大,除日常市集状态外,未来还可承载各类关于食物,关于生活方式的展览、公共活动。
南侧靠窗的部分,一段半透明状的深色楼梯通往二楼的美食活动空间。不同于首层丰富布局,二层用明快的构成、更充足的开窗和传统木结构结合,让市集提供与一层售卖有趣联结的多种可能性。

厦门大学路菜市场
厦门大学路菜市场,经过改造的菜市场内部设计提升,而且颇具闽南风味。不少走进大学路农产品市场的居民被眼前的景象所吸引。各种主题风格的摊位装饰、充满时尚味道的菜单展示,菜市场的“画风”完全变成了另一番模样。


画风新奇,颜色具有跳跃性、视觉上带来冲击感是菜市场改造后的特色,在基本保持原貌的基础上,对菜市场进行了改造提升。在设计中还融入闽南元素,像“好料”“好呷”等词汇,源于生活,点亮生活。年轻人喜欢逛什么样的菜市场?那这里真的可以有。

让我们来看一下变身前后的对比吧,这可绝对没有用过美颜哦!
变身前的过道▼

变身后▼

变身前的花艺店▼

变身后▼

永年菜场。

永年菜场
在老一辈上海人眼中,永年路上除了出名的“四十间”,还有的就是这个出名的小菜场。邻里之间的这条路和这座菜场落下了岁月印记,四十年来,他们依旧保持着这种生活节奏。只是今非昔比,对门马路开始拆迁,一街之隔的菜场,走上了更新之路。

改造前永年菜场外景
菜场业态的更新绝不应该是走向“生鲜超市”,菜场是现代都市人,所剩不多的能够直接接触到“自然”的地方了,其更应该是一种“城市乡野”的存在。
动线是菜场设计里极为关键的一环,减少拐弯抹角、动线直达、视线清晰是其设计原则。此外,根据菜场的使用人群,需要考虑适合的老龄化设计,如栏杆防护,入口缓坡等;也需要考虑货运动线,如垃圾清洁流线等等。

▲改造前菜场平面布置图,流线单一,易造成拥挤。

(▲改造后菜场平面布置图,疏散动线,空间更加流畅。)
归纳罗列了四个可以谨慎改造的设计点以及一条贯穿的设计主线: 外店招,内店招,入口场所营造,空间主材质以及“城市乡野”为主线的空间叙事。
入口的“石笼”的景观立面影射“城市乡野”的仪式感。将石头替换成更有机的松果、麦穗、松木、卵石等重新拼合出一幅断层地质图。石笼里的干蒸松木自身散发出来的木质清香,也是裸筑臆想中的嗅觉上的仪式感,伴随着视觉的体验与水果铺的入口功能,共同创造感知上的“城市乡野”。
全新升级的永年菜场内还开出了一家“巨鹿自营店”,里面是有特色的巨鹿品牌自营产品,满足了顾客对粮油副食的购买需求。菜场中间还隔出一间“爱心小屋”,为工作人员和顾客提供歇脚的场地,里面贴心地放置了板凳、水池、微波炉和书籍,突出浓浓的社区情怀。


对于外店招门头的设计,裸筑在传达“乡野气质”。石棉瓦楞板被作为背景肌理使用在外门头店招上,而该材料是过去农村房的常见屋顶建造材料,屋顶与门头,石棉瓦楞板的场所影射,将“城市乡野”印刻于上海街巷。
外店招的整体,作为一个单独的几何体量,“撞”进大楼之间,有机地“断”开楼上与街道的“乱”。

内店招



用节点思维解决实际内店招笨重的问题。通常的店招都是用石膏板下挂,这样做即浪费材料,空间又十分笨重。而在本次改造中,让空间变得轻盈有序,招牌变得可拆卸替换,灯光更有秩序。


在每跨铺位的平面组织形式里,创造了一种帐篷的“轻盈”, “麻布”作为主布面材料,从自身属性表达一种自然肌理,将 “自然乡野”的气质传达给空间。而带有审美的解决问题,才是整个设计最本质的表达。


内店招在建造属性上是十分出色的。钢索的简单拉结,麻布吸贴的可更换设计,都是针对菜场的特殊环境而设计的。
入口场所营造


用 “石笼”的景观立面做法,影射“城市乡野”的入口仪式感。将石头替换成更有机的,“松果”,“麦穗”,“松木”,“卵石”,来重新拼合出一组“断层地质图”。这样的氛围营造的尺度感,在于对材料本身的研究,自然有机物永远不会带来距离感。
并且,石笼里的干蒸松木自身散发出来的木质清香,也是裸筑臆想中的嗅觉上的仪式感,伴随着视觉的体验与“水果铺”的入口功能,共同创造感知上的“城市乡野”。




空间主材质

空间主材质的选定,也是基于成本及后续运营所考量的。自洁,卫生,经济以及菜场规范要求,导致了“白方砖”成为唯一一种业主认可的立面铺装材料。但我们还是在砖的缝隙上做了设计:将原本的黑灰缝改编成为橙色缝,当每一条橙色缝隐在空间中但又发挥着其“鼓舞人心”的能量之后,整体空间一下子从黑白色的沉闷,转向“视觉跳动”,但由于是缝隙的细微,并不会影响整体空间的洁净与明亮。




菜场内部

针对问题给出解决方案,然后再给一点温度。因此,干净,卫生,美观,经济,在设计层面有“意义”,成为了组织设计逻辑的“关键词”。

统一的摊铺及店招设计,空间更加有秩序

统一的门店规划

立柱被包裹在摊铺内,可安置插座面板等
公共区域开阔流畅,不再被柱子遮挡。

水产摊位有了统一的操作台,台面设计一来便于商家换水拿货,二来防止污水外溢。

摊铺内设计了储存柜,商家收纳更加有序

不同品类的摊铺设计根据功能需求做了区分

鲜肉摊铺配有更整洁卫生的展示冰柜和操作台

宽敞整洁的过道,动线明晰

永年菜场开市场景

永年菜场开市场景
Thailand Food Villa Market
对于一个特别关心用户体验的综合市场来说,曼谷食品市场主要的挑战就是把普通的菜市场变成“我想去的地方”而不是“我该去的地方”。该项目的设计主旨在通过将现代百货商店与更为传统的泰式市场相结合,将这座建筑与公众密切联系起来。
Food Villa市场是一个当地的、日间开放的露天市场,这是一个标准很高的新鲜瓜果市场,提供各种各样的高品质食品和符合生活习惯的商店,而且市场中商品的价格都很合理。规划的项目占地面积约25000平方米,由四个主要建筑体组成:一个有400个摊位的新鲜瓜果市场(占地4000平方米),一个带精品店的两层楼餐厅,和一家二十四小时超市,以及一个宠物、植物花卉区。
主要的市场建筑体量设计于2013年,并于2015年正式完工。这栋建筑体量代表了“食品生产农场”,市场由农舍的形式发展而来,每个单元互相融合,并按照顺序形成了一个整体。建筑体量的外墙是半透明的设计,这使得光线可以进入建筑体量的内部,并使得建筑体量在晚上可以发光。
市场中的通风设备间隙被分成了两层,建筑体量本身人字形屋顶上有一层,每个高度的屋顶的分裂层之中有一层。我们保存了混乱的标志和材料的安排,以便创造出一种泰式市场的氛围。


泰国Food Villa市场平面图

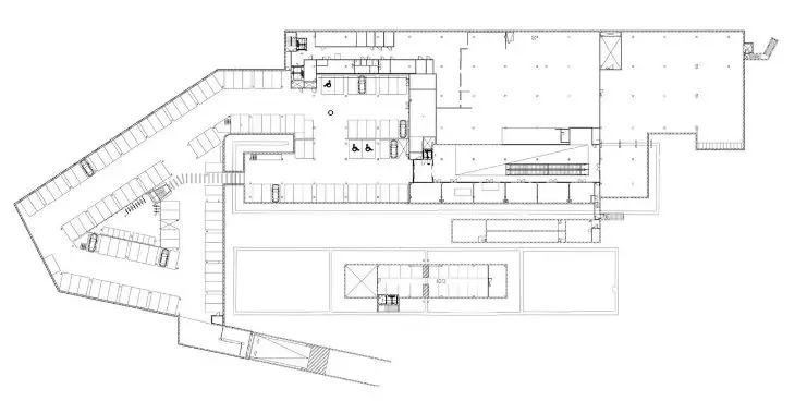
爱沙尼亚波罗的海车站市场
波罗的海车站市场位于塔林市北部,在城市主火车站和人气很旺的卡拉玛加居住区之间。自1993年以来,这里就是以提供独特的后苏维埃时代体验而闻名的怀旧市场。本次改造设计的目标是创建一座现代化和多样性的市场,同时还要保留该市场原有的历史特征,其熙熙攘攘的买卖氛围和嘈杂的环境不予改变。
以便吸引更多的潜在目标顾客,从乘坐火车的旅客到当地居民,从年轻人到游客,甚至任何一位碰巧会穿过市场的人等。
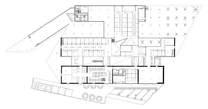
市场的主立面由三个两层高的石灰石仓库(始建于1870年)组成。主要扩建部分则包括用于容纳新功能空间的地下室和一个独立的统一式坡屋顶,其形状遵从原有房屋的形状和尺寸设计。


市场内部的改造建筑中依据三层既有平面和平面之间的空间进行布局。屋顶的前部被保留下来用于组织开放的户外市场,老市场在1993-2016年间就在此处设立了室外市场,人们自然而言就会觉得它就应该设在那里。室外市场的后面是一排排的小木棚,用于诸如面包、糖果、香料等小型商品买卖活动。


前方室外市场的两侧分别是早市广场和夜市广场,二者的名字分别指代了一天当中最好的两段时间。两个广场通过缓坡和露台彼此连接,并在两侧设置有用于餐饮和休息的休闲区、供孩子们玩耍的游乐场和服务于咖啡馆及餐厅的室外露台。

市场首层平面的主要目标是渲染出一种熙熙攘攘的的买卖氛围。这种理想中的环境通过集结各种市场形式并将其聚集于一层内的方式达成。市场中的经典功能模块是售卖肉类、鱼类和奶制品的小摊位,它们与农贸市场、蔬菜摊和中央大街上的街边食品街并排站在一起。将这些功能整合在一起之后形成了一个全新的体验波罗的海车站市场的方式。


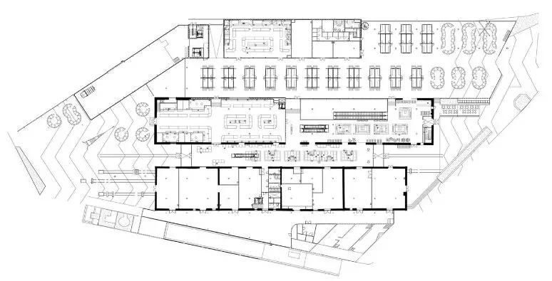
二层平面主要用于容纳原有市场的保留项目,例如古董、二手货和服装等,但是这一层的新建部分还加入了爱沙尼亚风格的设计品、工艺品和家居用品。高大宽敞的木条天花板和充足的自然光在整个二层空间内营造出开放而通风的环境。为了能充分利用首层平面的美丽景观视野,餐馆和酿酒厂设置在这一侧,二者均设有室外露台,朝向正午的阳光设置。

就是建筑内部而言,主要力量集中在如何展示原有市场的历史性和如何有意识地避免创造全新的历史细节上。建材的色调通过各种颜色的砖和与砖大小相同的瓷砖颜色组成。商店的正面和栏杆采用木材和黑金属制造。总体照明采用温暖而稳重的色调,在需要的情况下,特定货品和商业则采用特定的照明模式。

该项目的总体目标是支持和鼓励许多不同的商贩在这里安家落户,使他们能够在此积极地进行各种商贸活动,改建后的市场于2017年5月开放,开放第一周内就吸引了230000位游客前来。



总平面图

地下一层平面图

一层平面图

二层平面图
瑞典马尔默市场
马尔默位于瑞典的南部,作为瑞典的第三大城市,这里是重要的贸易中心。2016年占地面积约1500㎡的马尔默市场隆重开业。他的前身是一个旧货运站,1955年之后Martin and Nina将这座空置的建筑买了下来。在马尔默开一个市场一直是这对兄妹的梦想,他们觉得这座城市缺少这样的东西。


原始建筑


效果图
将当时连屋顶都没有的空壳建筑改造成供大约20个商户和餐馆使用的市场,设计师在原有建筑的基础上模仿它的山墙轮廓进行扩建,为了保留该建筑原有的工业特征,他们使用了红色锈面的波形钢片。“扩建的立面是合理的,使用标准化的波纹钢与突出的、垂直的钢型材相结合,使立面在窗框和门廊上具有节奏和稳定性。”项目建筑师解释说。





马尔默市场大厅的西面是一个公共广场,可以容纳户外摊档和活动,而南部则有一个额外的户外座位区,专门为种植食物而设计。

同时,马尔默市场内部有意保持简单,为了凸显出食品才是市场的主角,设计师选择黑色作为主色调,大面积运用在了市场内部,天花板、各种建筑结构、指示牌等。缤纷多彩的食物蔬果与黑色搭配显得更加新鲜诱人!
市场内的各个商户和餐厅也是经过严格的挑选的,每个候选人都必须有一个关键的品质,就是对他们对自己技艺的热情,由这样一群人组合在一起,共同建立一个让每个人都很享受的地方。


Martin and Nina 说:“当人们的口味融合在一起的时候,这座50米长的建筑开始成为美食家、饥饿的午餐客和热情的厨师找寻美食的目的地” 。

▲平面图
荷兰·鹿特丹拱形大市场
说到菜市场,就不得不提到这座花了16亿建成堪称艺术品的“菜市场”,作为全球颜值最高的“菜市场”,平均每年吸引800万游客前来参观。

市场上方的拱形由228个公寓单元组成,市场内可以容纳96个农产品销售台,20个酒类及其他物品零售台。市场下方的停车场共有四层,能提供1200个车位。

这座“菜市场”开创了“拱形市场+公寓+停车场+艺术品”的先河,一面世就受到世界媒体和城市群众的瞩目,成为了鹿特丹享誉世界的新坐标。
作为荷兰的第一室内市集和首座顶盖式食品市集住宅,鹿特丹市场是结合了居住和购物的新型城市建筑类型。这座占地95000平方米的市场将食物、人与人之间的交流活动联系了起来。来自世界各地的美食产品和当地的新鲜农业产品在拱形市场里汇聚,让人领略到舌尖上的世界风味和健康滋味。

鹿特丹市场就像一剂城市催化剂,带来了某种独有特性,让劳伦斯地区再次变得繁华热闹,为鹿特丹这座荷兰第二大城市带来巨大变化,为城市品牌和形象增添了光彩。

该建筑已经成为了市内绝对的必看一景,鹿特丹市场开放第一周的参观人数就达到了一百万人次。国内外媒体上也发表了数以百计关于鹿特丹市场的积极评价。

鹿特丹拱形大市场将城市功能与艺术展现惊喜融合,真正实现了公共和持久的城市化建设。“菜市场”不再只是嘈杂喧闹的,它也可以拥有层次感、流通感、互动感和艺术感,这座地标性建筑处处流露着不可名状的诗意。
小结
传统菜市场的转型或是新落地新型菜市场作为一种趋势,需要去摸索用户需求的趋势变化,跟着用户的消费场景走。而不能一味得教育用户,或者引导用户跟着你去盲从和嬗变。
在新型菜市场打造中,融入艺术创意元素、符合目标用户定位的场景设计;设置多样互动性设施设备或艺术装置,多业态融入让功能配套更加齐全都是可以使项目成功的要素。
想要做好这几点,就需要熟悉并抓准年轻一点消费者的消费心理。最重要的是回归零售本质,回归商品与服务,模式和技术是手段,而非目的,因为即便未来有非常多的科技和技术,其实用户最关注的依然是是否能够以最高效、最低成本的方式让他获得更好的体验。
素材来源:
Neil Tomlinson、Valentini Alvarez Planas 编,姜楠译,Contemporary Market Architecture Planning and Design
http://bbs.zhulong.com/101010_group_201815/detail10130293/
http://www.archcollege.com/archcollege/2017/10/37581.html
https://www.archdaily.cn/cn/888391/ma-er-mo-zhong-yang-huo-che-zhan-gai-zao-cong-fei-qi-hong-zhuan-dao-re-nao-ji-shi-wingardh-arkitektkontor-ab


评论