口罩还未能完全摘下,8月已到下旬,回顾年初至今南宁楼市,可谓是“南上加难”。
克而瑞数据显示,今年1季度受疫情影响南宁商品住宅成交1488.60万㎡,同比下滑25%;2季度以来,南宁楼市明显回暖,成交量同比上涨1%。但市场从6月开始回落,到了7月更是明显下滑。7月南宁商品住宅成交面积75.98万㎡,环比下降22.85%,同比下降20.46%。
年初疫情铺天盖地的席卷着各行各业,南宁楼市成交“跌跌不休”,西乡塘区更是以同比下降达29.29%跌至谷底。
虽说现阶段处于后疫情时期,各楼盘成交量逐渐攀升,但上升幅度并不激进,一骑红尘的楼盘少之又少。而在西乡塘区众多楼盘成交量低迷的上半年,雄踞广西大学旁、4200亩心圩江生态湿地公园旁的奥园瀚林誉江府,捷报频频,倍受追捧。在销售淡季的7月份,更是交出了一亿多销售额的成绩单,实现逆势热销。
能够逆势而行的楼盘,必定有其独到之处,誉江府有什么让客户选择的闪光点?接下来让我们一探究竟。




01
凭啥热销?先看看外部条件
项目自带铁学商、江园景属性
如果说“学铁商”是一个红盘引得全城争抢的基本要素,那“一线滨江”“双公园环绕”则是畅销的另一张王牌。奥园瀚林誉江府,不仅坐拥这令人艳羡的“学铁商”资源,更是拥揽着4200亩心圩江湿地公园与600亩南宁动物园,如此齐全配套,放眼西乡塘区乃至整个南宁都屈指可数。
一线滨江、地铁上盖、家门口教育、双公园环绕、触手即繁华等能赋予一个楼盘多大的居住价值以及多好的前景?
江未变,江景房价格一直在变
在追求居住品质的今天,景观资源往往成为楼盘定价的一个依据标准。在同一片区,一线江景、二线江景或是非江景房的价值与价格有着很大的差别。在其他因素相对一致的情况下,一线江景房虽说初始价格都贵,但也是升值幅度较大的一类房源。
誉江府东侧直线距离168米就是总投资约26亿元打造的心圩江公园,建成后整体占地面积高达4200亩,将打造成西大板块内大、景观多、生态资源丰富的湿地公园。项目楼栋错落排布,周边没有高层建筑,充分保证了小区每一栋楼的景观视野,坐拥千米楼间距,无遮挡江景视野。
地铁一响 黄金万两
“临铁”作为质优盘标签,在不少购房人心中的地位甚至仅次于“学区”,而远超其他商业类配套。2016年地铁1号线通车后,南宁迎来了地铁时代,而临近地铁线的楼盘价值更是扶摇直上,甩开了同片区非地铁物业。

誉江府咫尺黄金地铁物业。项目门前的大学东路以及清厢快速路,无论是驾车,还是地铁,出行都很方便。
公园住宅 健康人居范本
公园,标志着城市公众生活景观的到来,它不仅仅有景观概念,更富有休闲、健康功能,是实实在在的“健康奢侈”生活的配套。据相关地产机构统计,在上海,同样的小区,看得见公园的房子与看不见公园的房子差价为50%。
项目对面就是600亩的动物园,南宁一环线内只有两个国家级4A级景区,动物园就是其中一个,加上4200亩心圩江湿地公园,视野之处皆为绿植覆盖,看着园景,一切疲惫的情绪都可一一消散。

百米揽江、千米楼间距
一线江景准现房、双公园环绕…
看得见的都市品质人居,畅销只是必然
02
看完配套,再看产品
江景准现房,规划好且精
奥园瀚林誉江府是奥园集团高端产品系——“誉”字系。项目整体采用围合式布局,保证了中庭园林的宽阔视野,楼栋呈东南或正南朝向,楼栋之间做了视线错位处理,保证大部分户型都能享受到动物园或心圩江的景观视野,同时保证了采光与通风。
铝模工艺加持
施工进度快 质量有保障
目前誉江府工程进度较快,目前所有楼栋都已封顶,现在已是妥妥的准现房。据了解其中2、3号楼预计明年6月底就能交房。工程进度快,主要得益于项目采用的建筑工艺——铝模工艺。
采用铝模工艺的好处还不少,除了工程进度快,还能有效保障工程质量:
1、施工周期短,施工方便,效率高。铝模系统为快拆模系统,组装简单,能大大提高效率。
2、稳定性好,承载力高。铝模系统组装完成后,会形成一个整体框架,稳定性更好。
3、拼缝少,精度高,一体成型,拆模后外立面更平整光洁,能够有效防止外墙渗水、返潮。

规划发声 事实说话
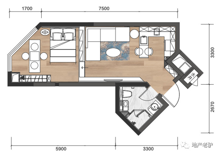
58㎡一房一厅一卫
这个户型位于3号楼,虽然只有58㎡,但整个空间尺寸感给人的感觉一点也不局促。户型整个面宽为6.5米,可做一房,也可隔成两房。客厅开间达3.2米(市面某些90多平的户型客厅开间才3.4米),主卧约12.9㎡,还带一个飘窗保证了采光通风。
这个户型较为吸睛的是带了一个宽2米,长5.5米的景观大阳台(这个尺寸的大阳台,市面上很多90多平的户型都不曾拥有),正对中心园林,视野开阔。这个户型整体舒适度较高,很适合单身、白领,或者用于过渡的小情侣居住。

97㎡三房两厅两卫
过道没有占用过多空间,进门有个玄关连通餐厅,餐厅空间开阔,放下个大圆桌没问题。房间尺寸拿捏到位,每个房间的开间都在3米以上,最小的房间也有9.5㎡,带有飘窗或外通阳台,舒适度高。
此外,客厅与次卧还连接一个宽2米,长7.1米的大阳台,约14㎡全赠送,这个尺寸的大阳台出现在90多平的户型里非常少见,要知道97㎡,市面上大多数只能做到与客厅同宽的阳台。科学户型设计,各个功能空间尺寸舒适,空间使用率高,得房率高,没有浪费多余面积。

129㎡四房两厅两卫是誉江府最大的户型。户型为大横厅设计,客餐厅面积约为33㎡,横厅设计让户型拥有更大的采光面以及更好的通风效果,还能拉宽景观视野。同时横厅设计让空间显得更加开阔气派,可以涵盖家庭聚会、会客、活动休闲等多种功能。
四个房间都带飘窗,保证了采光和视野的通透,而且每间房开间都达3米及以上,最小的房间也有10㎡,舒适度高。
客餐厅还外接了一个宽2米,长7.1米的景观大阳台户型,而客厅、餐厅还有主卧全部面向心圩江,和家人、朋友,茶余饭后,坐在阳台上,就能感受到户外的自然风,享受到开阔的且无障碍的江景视野。


49㎡住宅公寓
项目公寓为70年产权的住宅性质公寓,可落户、可划分学区、可通燃气等。在设计上,誉江府采用的是鱼骨状的设计,整体户型的形状和普通公寓的方方正正的长方形不同,这是项目参考了海南海景房的设计,保证户户视野景观朝向动物园或心圩江而做的特别设计。
外可户户揽景色,内部设计也是科学贴心:因疫情而大热的玄关洗手台的设计,在这个公寓户型就能实现。再小的户型也要形成完整的换鞋、脱外衣、消毒程序。户型的卫生间设计在玄关处,设置换衣区、放置消毒洗手液,进入家门时直接消毒,可以有效防止室外病菌进入室内。
面对疫情,其他楼盘都在研发防疫产品,但项目的住宅公寓凭借超前防疫创新设计,赢得了不少购房者的认可和喜爱,热销也便是水到渠成的事情。

03
感恩回馈,致谢业主
为爱放“价” 一路热销
说完配套、产品,下面来看看誉江府的人性关怀。在2020进入下半年以来,奥园瀚林誉江府为感谢业主的选择与信赖,感谢合作伙伴的鼎力支持,举行了合作商答谢晚宴、业主私家宴、业主代言活动、合作单位团购专场等活动。更是在618、718等购房节为爱放“价”、给“利”到底,一系列暖心活动获得了业主与合作伙伴的高度认可,让热销有迹可循。
府上家宴 邻里归心
暖心家宴,温情直抵心间,往来谈笑风生,席间觥筹交错,这就是美好生活的模样。
6月26日、7月6日,奥园瀚林誉江府VIP业主私享会,在西大好友缘酒店,浓情开席。一场场家宴,不仅是宴请业主,让奥园瀚林誉江府业主团圆相聚,更是为感恩回馈业主的认可而来,不忘初心,砥砺前行。

“我为誉江府代言”
建筑会发声,品质会说话,一处好的居所,不仅有鸟语花香,有欢声笑语,更有一种口碑 叫做“业主代言”。一个住宅项目好不好,能否打动人心,亲身体验的业主才有发言权,作为一种伴随一生的商品——房子,必须经得起高端购房者们挑剔的目光。
为此,项目举行了主题为“我为誉江府代言”活动,让各类型业主讲述选择誉江府的原因。活动一经发起,业主踊跃报名争当项目“代言人”,都想表达出自己内心对项目的认可,以及今后在誉江府大家庭美好生活的憧憬。
04
西城巨变!重点推进“三旧改造”
誉江府坐享区域发展红利,未来可期
近年来,南宁步入“大城时代”,城市发展“内改外拓”。新城区正在建设,老城区正在更新。
其中,值得一提的是,南宁“旧改大区”西乡塘区现有改造项目62个,涉及改造用地24265亩,按“三个一批”开展工作,正在建设的项目有31个,推进项目有18个,储备项目有13个。随着这些项目的推进,城市面貌将焕然一新,西乡塘区也将发生翻天覆地的变化。
醇熟配套、烟火气息
西城旧改项目频获市场高关注度
西乡塘区作为南宁的老城区,经过数十年的发展,交通、商业、医疗、教育等配套已十分成熟。因此,西城几乎每一个旧改地在入市的时候,都能获得较好的市场关注度和推售业绩。
人们对于老城区的情愫,之所以很容易在旧改项目里得到满足。归根结底,还是得益于西乡塘区极具人间烟火气的生活氛围。地铁1、2号线先从西乡塘开始通达其他城区,清厢快速路贯穿城西和城东,拉进了从罗文到东盟商务区的距离。
在教育资源方面,以广西大学为核心的大学城,西大附中、民大附中、三十七中、三十五中、秀田小学......西乡塘区的学区,可以为南宁所有城区打样。
西大商圈旧改项目引人注目
奥园瀚林誉江府C位加持,倍受青睐
要论西乡塘区核芯的板块在哪?必当是西大商圈板块。西大商圈生活氛围醇熟,应有尽有,商业配套、学校配套、公园配套、医疗配套均以建设完善。学区+地铁+公园+商业样样有,一站式生活轻松开启。以广西大学为核心,坐拥着西城便捷交通、商业、医疗等生活配置,自带成熟配套,居住氛围醇熟。
奥园瀚林誉江府,占据西大核芯板块,西城理想人居C位出道,坐享西乡塘区旧改发展红利,未来可期,全城争藏!

58-130㎡头排江景美宅 全新上市
49㎡70年产权城市轻资产 火热在售
地址:南宁市西乡塘区大学东路154号(地铁1号线动物园站旁)


评论