
今日热点:
1.城北“骨灰级”倒挂老盘,今日开盘!
2.江宁地铁盘上宸云际昨日新领销许,今起报名!
3.软件谷华发美的云筑样板间曝光,最小户型100㎡起步!
01、首付6成!大地伊丽雅特湾今日开盘!
今天,城北迈皋桥“骨灰级“老盘——大地伊利亚特湾开盘,这也是本项目的收官。户型建筑面积为109、112、114㎡,共计58套房源,销许均价约29022元/㎡,毛坯交付,首付6成!据现场买房人透露,本次开盘虽有160组买房人报名,但现场弃号较多,仅卖出20多套。
12月5日,项目报名结果出炉,有效报名人数共160组,综合中签率约36.3%。
项目位于城北迈皋桥,地址在栖霞区和燕路329号,今年7月,项目最后一栋27号楼的规划出炉,引起楼市不小的动静,虽然仅约58套房源,但该栋楼是整个小区距离晓庄地铁站最近的一栋,而晓庄站未来将是1号线跟7号线的换乘站点,交通条件还是很优越的。
从效果图来看,项目27号楼总高10层,下层带商业和社区中心。其中1F是社区中心,2F为商业和物业,3F为住宅和公寓,4-10F为住宅。住宅房源共计约58套,户型面积约为110-120㎡,三房设计,一梯两户。
据南京市网上房地产显示,项目是2007年拿的地,至今已缩水超14年,是南京骨灰级老盘之一。
项目最早一批房源要追溯到2008年,当时均价约8500元/㎡;最后一次是2018年,加推的16、17号楼,当时毛坯均价约27000元/㎡。
期间陆续开盘15次,涨幅超过200%,可以说是南京楼市名副其实的老盘,也硬生生的把自己熬成了倒挂盘!
如今,据链家网数据显示,该小区的二手房挂牌均价在31844元/㎡,但有部分房源已挂出超4万/㎡的单价!至于成交价,目前项目最高的一套成交房源为今年4月份的一套82.35㎡小户型,成交单价高达37645元/㎡。
这跟本次最后一栋均价约29022元/㎡相比,一二手房之间的倒挂空间近9000元/㎡,难怪项目沉寂如此之久,依旧有很多买房人在等待!
项目位于迈皋桥板块,整体而言,区域内生活配套比较完善,但整体已老旧小区为主,新房数量有限,对于那些想要3万/㎡左右上车南京主城的买房人来说,是一个不错的机会。
02、江宁地铁盘上宸云际正在火热报名中!
上宸云际12月16日领取9、10号楼销许,共216套带装修房源,户型建面约101、121㎡,销许均价约25729元/㎡,今日开启报名。
报名时间:12月17日上午9点至12月18日上午9点
报名方式:关注微信公众号“南京房产微政务”,进入后点击右下角“宁小通”进入报名通道。
项目无装修包,在基础装修包中配齐了三大件,并采用了高仪、摩恩、海尔、方太等一线品牌。
上宸云际打造三大户型,分别为89㎡三房两厅一卫、约100㎡三房两厅两卫、约120㎡四房两厅两卫,都是双阳台户型。
值得一提的是,本次为项目第二次开盘,上一次首开在11月21日,加推3、4号楼共318套带装修房源,截至目前,据南京网上房地产显示,累计认购87套,累计成交132套,去化约7成。
03、华发美的云筑样板间曝光!最小户型100㎡!
位于软件谷的华发美的云筑样板间近日公开,首开5、6、7号楼,共292套房源,面积100、118、142㎡,含包均价预计4.4万/㎡,首付预计5成起。总价450万起步,上市毛坯限价38500元/㎡。
据置业顾问消息:项目最快预计下周首开!
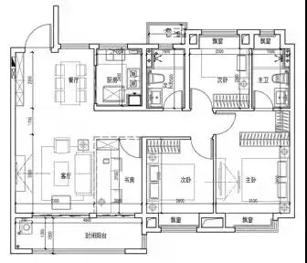
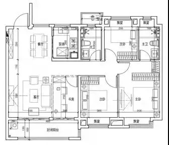
户型图参考如下:
样板间实拍图:
精装标准可参考如下:
华发美的云筑前身是城南G33地块,位于雨花台区铁心桥街道,东至规划迎江路,南至规划翠园路,西至凤翔翠园,北至龙翔快速路。今年5月出让,经摇号被华发拿下,楼面地价28519元/㎡,毛坯限价38500元/㎡,将由华发、美的联合操盘。
7月23日项目规划出炉,根据规划,华发G33地块共打造6栋24-25F的高层住宅、4栋商业以及相关配套。
全装修均价约4.1万/㎡左右,首付预计5成起,以最小户型100㎡计算,5成首付约205万起,若买精装包还需另外加钱。
项目紧邻S3号线、16号线(规划中),通过铁心桥站2站直达南京南,可换乘地铁 1 号线、3 号线、S1 号线等。项目周边有雨花客厅、楚翘城、宜悦城、世茂52+等大型商综。
不仅如此,项目靠近省妇幼保健院总部(预计2024年建成)、南部新城医疗中心、明基医院等生活配套,周边还有中华中学、金陵中学、南师附中雨花校区、规划8轨24班初中及4轨24班小学等优质学府。


评论