
临近年关,近日江宁多家楼盘传来新动态!
1月19日,江宁正方新城的上宸云际以及江宁方山南的山和宸园项目分别领取项目销许,今日开启报名登记;
与此同时,本周六(1月22日)金隅上秦淮G88项目将正式公开项目案名跟城市展厅!

01、江宁两大楼盘突领172套房源销许,今日正在报名中!
1月19日,据“宁小通”显示,南京共3家楼盘领取销许,其中两家来自江宁板块,分别是江宁正方新城板块的上宸云际以及江宁大学城板块的山和宸园。
报名时间:1月20日上午9点至1月21日上午9点;
报名方式:请关注微信公众号“南京房产微政务”,进入后点击右下角“宁小通”进入报名通道。
上宸云际
正方新城地铁盘上宸云际新领1号楼销许,共100套带装修房源,面积约101、121㎡,销许均价约26562元/㎡。
上宸云际位于江宁正方新城,位置就在地铁S1号线正方中路站,毗邻正方大道、将军大道等城市主干道,距地铁S1号线正方中路站非常近,是名副其实的地铁盘。
该项目前身是旭辉G03地块,紧邻龙光G44玖华府,周边区位条件基本一致。
该项目于去年2月的土拍中被旭辉摇号拿下,成交总价15.3亿元,成交楼面价13200元/㎡,未来毛坯限价24100元/㎡。
根据规划,上宸云际共拟建9栋25-27F住宅及商业、社区养老活动用房等配套,项目由旭辉、新城和天安联合开发,新城操盘。
至于户型上,上宸云际打造了三大户型,分别为89㎡三房两厅一卫、约100㎡三房两厅两卫、约120㎡四房两厅两卫,都是双阳台户型。
此次加推有101和121㎡户型,这也是121㎡户型第一次上市。
值得注意的是,项目无精装包,全精装交付,交付时中央空调、地暖、新风三大件齐备,精装品牌也几乎全部采用威能、高仪、摩恩、海尔、方太等国内外一线品牌。
目前正方中路地铁口附近主要有两家楼盘,除了上宸云际,还有一家紧邻的玖华府项目!该项目刚于1月15日正式公开了售楼处!
根据规划,玖华府共打造9栋高层,由龙光、越秀和杭州滨江联合开发,龙光操盘。据置业顾问表示,项目会有升级装修包,毛坯限价在24200元/㎡,预计上市后全装修+升级装修包,均价或在2.7-2.8万元/㎡。至于首开节点,置业顾问表示预计春节后首开。
此外,位于正方新城江苏软件园片区目前在售楼盘也较少,主要有荣盛隽峰雅苑、联发云启以及山语春风等老盘项目。
荣盛隽峰雅苑,在售少量低密多层一楼和顶跃房源,户型建面约115、130、150、178㎡,现房销售,均价约22969元/㎡。
联发云启,在售精装房源,建筑面积98、110、125㎡,销许均价23540元/㎡。
山语春风,在售精装房源,户型建面约79、89、110㎡,销许均价约21000元/㎡。
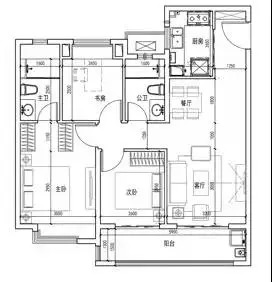
山和宸园
昨日,江宁大学城的山和宸园也领取了项目5号楼的销许,共72套房源,面积约89、105㎡,毛坯均价约27194元/㎡。
户型图参考如下:
项目位于方山南板块,于2020年8月首开入市,至今已经开盘8次,据南京网上房地产数据显示,目前项目整体去化在7.7成。其中得益于项目毛坯交付,均价相较区域内其它精装房源要低,此外项目针对刚需群体,户型面积更小,总价更低,所以更受刚需群体的喜爱。
目前方山南板块内,新房市场竞争也十分激烈,光在售楼盘就有4家,此外,还有待上市的新地块,未来的供应量可以说是相当充足。
远洋万和方山望:在售1-13、15-25号楼带装修房源,户型建面约89、108、126㎡,销许均价约29100-30477元/㎡,拟交付时间为2022年12月31日。
五矿澜悦溪山:在售带装修房源,主要位于1、2、4-12、15、18-19号楼,户型建筑面积约96、107、127㎡,精装交付,销许均价约30645元/㎡,拟交付时间为2022年6月30日。
中海方山印:在售少量带装修房源,户型建面约104、105、107、127、141、208、245、270㎡,销许均价约30138元/㎡。
中海方山大学城G85地块(纯新盘):去年9月26日,经过一轮竞拍,中海以总价21.4亿拿下方山大学城G85地块,楼面地价15205元/㎡,未来毛坯销售限价28000元/㎡。根据规划,项目拟建14栋高层住宅、4栋小高层住宅,预计今年上半年会入市首开。
02、本周六,金隅上秦淮G88正式公开案名&城市展厅!
近日,江宁上秦淮板块由金隅、华发联合打造的G88项目被爆出最新进展!项目预计将于本周六(1月22日)正式公开项目案名和城市展厅!
项目于2021年9月27日最终被金隅摇号竞得,出让面积为69217.02㎡,容积率≤2,成交总价281000万元,楼面地价20298元/㎡,未来毛坯房最高限价32000元/㎡。
根据规划,项目拟建19栋小高层住宅,并与华发合作开发,由华发操盘,预计最快明年3月上市。
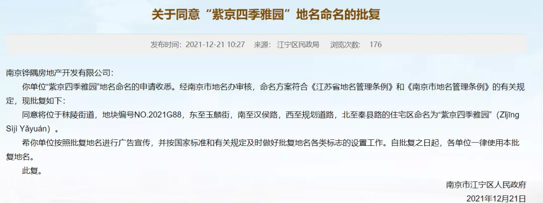
去年12月,金隅G88地块备案名定为“紫京四季雅园”,该项目由华发、金隅联合操盘,预计今年3月上市。
金隅深耕房地产30多年,综合实力位居全国同行业前列,2013年首入南京,在深耕南京8年,更是打造了河西金隅紫京府、江北老山金隅紫京叠墅、金隅紫京熙院、金隅紫京云筑等多个改善高端住宅,口碑、品质俱佳。
从案名“紫京四季雅园”不难看出,项目或将打造金隅高端产品系——紫京系又一作品。
紫京四季雅园(金隅上秦淮G88地块)区位十分优越,西侧靠近双龙大道,以及周边3号线三期和风路地铁站(规划中),未来交通非常方便。
而且根据规划,项目周边多为未出让地块,但据板块规划来看,地块所在云台山河以南仅剩余1幅宅地,其他均为学校、科技+商办等用地,区域房源会越来越稀缺。
项目东侧是在建中的融信秦尚栖庭和芳原。其中,芳原在2020年11月2日被孔雀城以总价15.7亿元竞得,成交楼面价21309元/㎡,毛坯房销售限价32800元/㎡。
目前,上秦淮板块房源稀缺,仅有融信秦尚栖庭和芳原在售。
融信秦尚栖庭:在售17号楼少量房源,户型建面约137㎡,销许均价约34030元/㎡。
芳原:在售带装修房源,户型建面约137㎡,,销许均价约33093元/㎡。项目同时在售叠墅房源,叠墅户型建面约206、210㎡,销许均价约36807元/㎡。
二手房方面,目前上秦淮只有小区翠屏诚园、帝景天誉两个二手房小区,二手房挂牌价在3.7-4.6万/㎡左右。
根据链家网官网显示,去年7月份,翠屏诚园成交的96.99㎡的房子,以总价412万成交,成交价格为42479元/㎡。


评论